查看完整案例


收藏

下载
2020年初,行维新筑接到倍格硅巷的邀请,将西安文理学院一个废弃的校史馆改造成一个满足大学生日常社交,学习,毕业展,竞赛以及创业的复合空间。
▲ 项目前身
当剥离掉那些不属于它的“外皮”后,校史馆露出它原本的样子:一个极对称的盒子。一个大胆又有趣的想法在设计师的心里萌生。当更多的盒子组合在一起又会创造出如何的火花?
▲ 空间演变
在已有建筑外壳下做设计总是充满挑战,考虑到空间尺度,再考虑到项目预算受到了极大的限制。设计需要在保证实现项目功能的同时,又维持整体的概念。设立夹层,利用采光天窗,建造中庭,设计师通过一系列的手法来实现空间的最大化利用。
▲ “情绪大厅”概念图
我们希望为年轻的学生们创造一个盒子的“情绪大厅”,在这里,他们是被信任的,可以毫无顾地展示自己。
▲ “情绪大厅”
沿主入口处的大楼梯一侧为学生作品展台,另一侧由半透明的红色玻璃搭成的两个“盒子”。这两个红色透明盒子成了空间中唯一的颜色,包裹连接着的中央楼梯。
▲ 中央展台
▲ “红色盒子”
设计保持了原建筑的顶部结构,阳光通过中庭挑空洒在后方的社交广场处,学生们喜欢三两聚集在这里聊天。
▲ “社交广场”
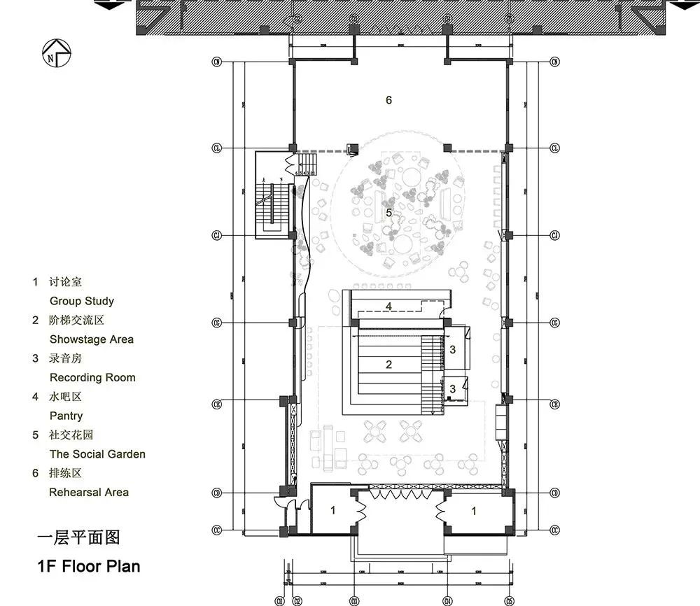
▲ 楼层业态分布图
设计主创:王震君、侯婵
设计团队:马梓菡、李振
地址:中国 西安 西安文理学院
面积:1,500 平方米
时间:2021年
摄影:李胜阳
客服
消息
收藏
下载
最近






















