查看完整案例


收藏

下载
一个盒子就是一个独立的空间,盒子起着空间的分割作用,利于人与人之间的交流的分割,独立思考与头脑风暴的分割。
Brand Story
这是品牌第二次找到任迪希望打造一个全新的办公空间,选址在中国电商第一战区杭州滨江板块。
LOLTHEDICE一直是崇尚自然的,这也是任迪和他所带领的由走空间设计开启构思的源流。
“自然与人的关系,空间与人的关系,人与人的关系“三者互相产生着微妙的化学反应!
我们的设计也由此入手,他说。
Design Innovation
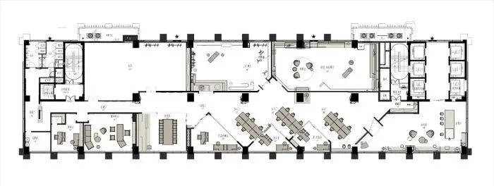
由于这是刚竣工的办公大楼,整体就是一个大开间的毛坯原始状态,设计的动作必须合理且有效。设计师首先排除的就是传统办公空间所谓的前台接待与大量整齐工位方块的模式。
将电梯门厅部分与入口空间整合为连绵的新生。营造一个人与景相移,自然光线错落倾撒,同时兼顾会客洽谈休闲一体的空间。叙事感油然而生。
BOX From BOX
原本凌乱的办公室得以净化,使得每个“盒子”都具有一种特定用途,从而创造宁静又引人驻足的办公与休闲空间。
每个盒子都包含着不同的功能:展厅、“头脑风暴”区、会议室和休闲区等。
一系列的白色体块将原本凌乱的场地净化,
创造出引人驻足的宁静空间。
三个并列的白色盒子由内穿出,
而盒子间留出的‘之间地带’如同空间的延续,
盒子‘之间’以暖灰色调处理,
顶部呈现原有结构,与纯白的盒子形成对比。
根据对功能需求和周边环境的细致推敲,
设计师在体块里外“雕刻”出不同的开口与凹凸。
大的开口将门厅与办公区里外贯通,
Hardness and softness
在室内,裸露的天花板与胶合板木饰面壁龛营造出亲近舒适的气氛。
同样的手法也应用于展厅入口,
三角形门厅的底部留空而成一个静谧的几何美,
它不但是内部办公的景观焦点,
也在视觉上将室内外空间连接。
材质的运用进一步定义空间。
平滑的白色墙壁与水磨石地板占据了主要的公共空间,
如同画布捕获着光与影;
半透明墙面与洞墙在展厅与工作场所间造成微妙联系;
开放区域多选用自然原材,
例如‘头脑风暴’区的连续木材表面以及休息区中的毛石墙面。
通过街头文化与联合办公相结合的模式,
设计师将一个现代概念的社交模式融入到寻常办公空间中。
自然 - 空间 - 人
一 种 恰 到 好 处 的 平 衡
项目基本信息:
LOLTHEDICE玖墨服饰办公空间设计
项目地点:杭州滨江远方大厦12层
设计机构:由走空间设计有限公司
深化设计:沈阳、陈婧思
内容策划 / Presented
策划 Producer :Dong
排版 Editor:Dong 校对 Proof:Dong
图片版权 Copyright:由走空间设计
客服
消息
收藏
下载
最近










































