查看完整案例


收藏

下载
在建筑设计与规划中,人,才是主角;房子,是生活的容器;设计,是生活的载体。人生几何与自然共生,建筑是空间的艺术,也是几何的艺术。
中华文明,肇始农耕。手中有粮、心里不慌。一粒稻谷,积蓄天地的灵气,满足雀鸟们的一点食欲,种得心田一蕊香。劳作中享乐,瓜果鱼水相伴。二十四节气晓应天理,触类旁通得灵感创作。智慧和艺术永远是生活的命题,唯有两者结合方可寻梦,塑造灵魂。
诗与空间,黄河之水天上来……让曼妙飘逸的垂纱幻化为装置艺术点出设计的初心,波澜起伏的流动造型宛如黄河入海流滚滚向前,也隐喻着艺术和智慧不断向上永无止境。展品为云南本土艺术家杨伟能油画(精灵系),同时满足社会精英、艺术界朋友共同交流,艺术展厅的功能引领艺术设计创作。
空间设计以木质的温润、色调雅致平和为述求,办公区大面积开敞为主,让外界的光与景深入室内贯穿空间,活动工位有效增加企业内部会议及讨论空间需求。
自然纯净的原木色,延续企业文化展示,荣誉墙记录着企业砥砺奋进的丰收成就,休闲书吧培养设计师兴趣翻阅考察资料。
一方空间 心有所栖。契合精致、稳重的空间需求,注入美学品味的同时富有创造力。爱马仕橙、Tiffany 蓝,火与水交融、温暖与冷静相触,感官调性同步延伸到每处空间。满足精神慰藉之后,设计才能创造价值。
白墙、木色、原生态
光,是空间最好的组成部分
以纯净之态渗透进廊道
光影韵律变幻出肌理漫反射
目光所及,平和、温暖
过渡空间,创建和谐观感
一把躺椅、一张茶几、一杯清茶,全是静谧的优雅。少即是多,空间带来的想象和放松,用物质形态去表达思想。
落地窗外一片树林,鸟儿和松鼠是我们的常客,看尽四季变换,心如风一般自由荡漾,实现工作艺术化,艺术工作化。
两座楼空间布局上打造一条中间地带,天井把自然风景光线引进空间,整体错落丰富建筑的层次。偷得浮日半日闲,任风儿吹过云儿飘过,一方美景一盏茶,坐看庭前花开花落,闲观天边云卷云舒。艺术到这里变得需要贴近生活,本质所蕴藏的理性一面载入情感。煮茶听雨,诗词歌画,修心,冥想,感悟,体验。斯是陋室,惟吾德馨,可以谈笑鸿儒,可以调素琴,可以阅金经品德茗。
∇ 示意效果图设计
∇ 立面图
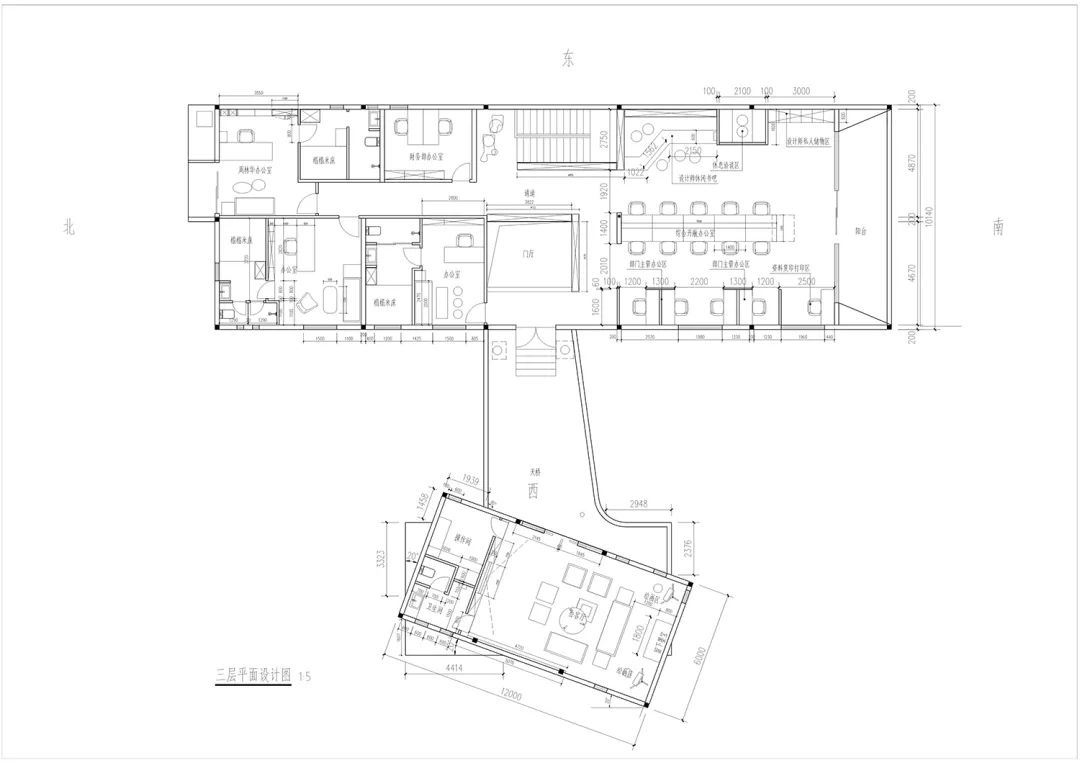
∇ 空间设计平面布置图
项目信息
项目名称:长空创作办公楼
项目地址:云南 昆明
项目面积:1000㎡
设计机构:长空创作
设计主创:张宝华
设计团队:周林华 刘思唐 靖旭初 蒋应强 王春艺 李泉江
项目摄影:靖旭初
项目业主:云南长空建筑装饰工程设计有限公司
项目主材:大理石,实木地板,玻璃
设计时间:2018 年 12 月
竣工时间:2020 年 2 月
客服
消息
收藏
下载
最近











































