查看完整案例


收藏

下载
河西·梅江公馆
160㎡
正念·高效
办公空间
设计自述
本案作为一个10人左右的环保公司办公空间,我们把设计的侧重点放在舒适结合高效,在有限的空间和高度限制下,如何做到空间的最佳动线和功能布局。同时能够表达出一个环保公司的企业精神:正念,纯净。
意图通过光环境设计、减噪设计、与绿色材料的应用,减少环境造成的污染,表达绿色环保的企业精神。植入环境认知心理学,营造舒适人性化的办公环境。同时在入门的设计也寓意着,根植于自然之中,敢于突破固有自我的限制。创意艺术装置和灯具设计,让工作环境中有惊喜和趣味,也是一种以当代东方的空间表达东方传统文化的精神性。
—by/Manas design studio
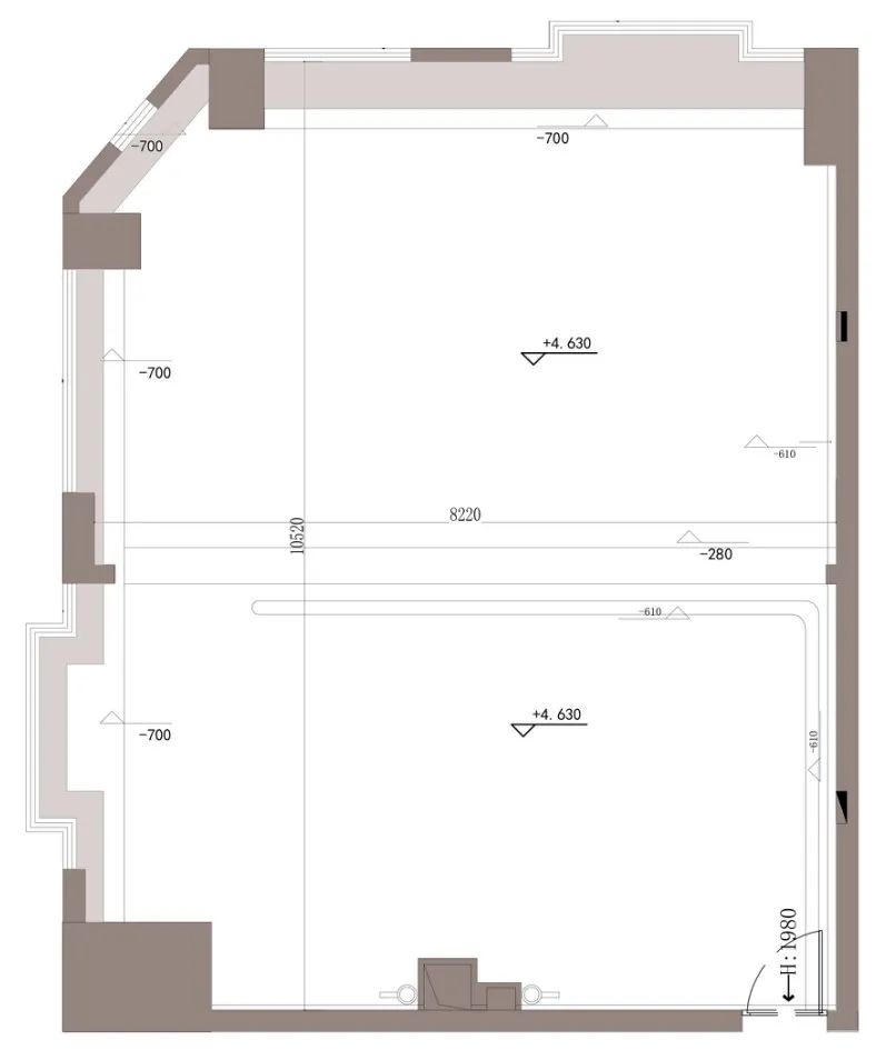
原始平面图
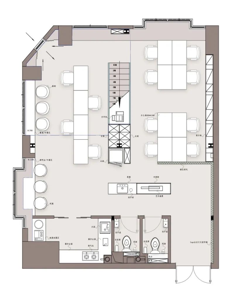
一层布局图
二层布局图
PART 1
一层/入户玄关
如何向两面大窗来‘借光“已达到与外界共生的理念,以及整体空间内的员工、总经理、访客不同的动线体验规划,以独特的形式展现材料本身带来的质感,凸显不同空间的独特视觉感受。
一层为员工办公,空间定位以动线舒适,光线明朗以及木饰面温润优雅的质感辅为主;二层为老板办公室光线视野极佳,财务靠窗,会议室内尽量安静私密的思路。以私密性、安全感为主线,从视觉感官角度增加整体办公空间的开阔以及明朗。功能分区明确,主要有一层入口玄关、卫生间、厨房、飘窗、水吧,打印,会客,景观等。
PART
2楼梯区域
二层功能布置有总经理办公室、财务室、会议室、储物间等,考虑到二层不同的办公形态,楼梯区域设置在采光最佳,二楼面积最大化的居中位置,突出整体空间的通透性。
空间内楼梯位置的变化对整体的分区起着至关重要的作用,如何弱化其给人带来的视觉感受以及打破对空间划分的局限是困难的,灯光设计和光源的挑选是另一个重点。每一次我们都期待以新的视角,有启发的观点来开启项目。
●PART 3 独立办公室
体验感是设计性的重要表现,视觉化是功能性之衍生。
Experience is the essence of design and visualization is the derivation of function
我们相信创意的力量可以驱动商业。我们愿意付出更多倍的时间与耐心,去实现目标,创造新商业新价值。
Manasdesign studio
了解更多作品
末那识 | 办公空间设计——在秩序中寻找自由的尺度
末那识 | 甜品体验店设计——棠果儿
末那识| Ice cream 体验店设计——幸福与存在
末那识|中式酒馆下午茶设计——悠闲的智慧亦是生活的艺术
末那识|涂料展厅设计——圆润通达·谜之色彩
末那识|办公空间设计-让工作成为享受-1430㎡开放共享的办公方式
【 末那识 2021】
末那识设计思量与美学修行以设计创造价值与你分享点滴幸福设计师档期随时变动,咨询预约尽量提前。Add : 天津市河东区海河东路棉三创意街区 3-1-119周一至周六9:00AM - 6:00PM
客服
消息
收藏
下载
最近























