查看完整案例


收藏

下载
河东•龙山道
100㎡
自然•新鲜
2020.11
店主与她的店
设计师自述
进行
本次设计的策略主要有两个重点:一是最大程度呈现品牌产品的天然型,突出产品的最大优势——与无色素无添加的天然食材原料,所以我希望属于她的是那种具有新鲜感的,自然柔软的舒适的空间。另一个重点是突出体验性,在有限的空间内增加空间的不同客人之间的互动交流,以满足未来经常组织举办各类社群的美食美学分享,以扩大增加品牌的影响力和知名度。
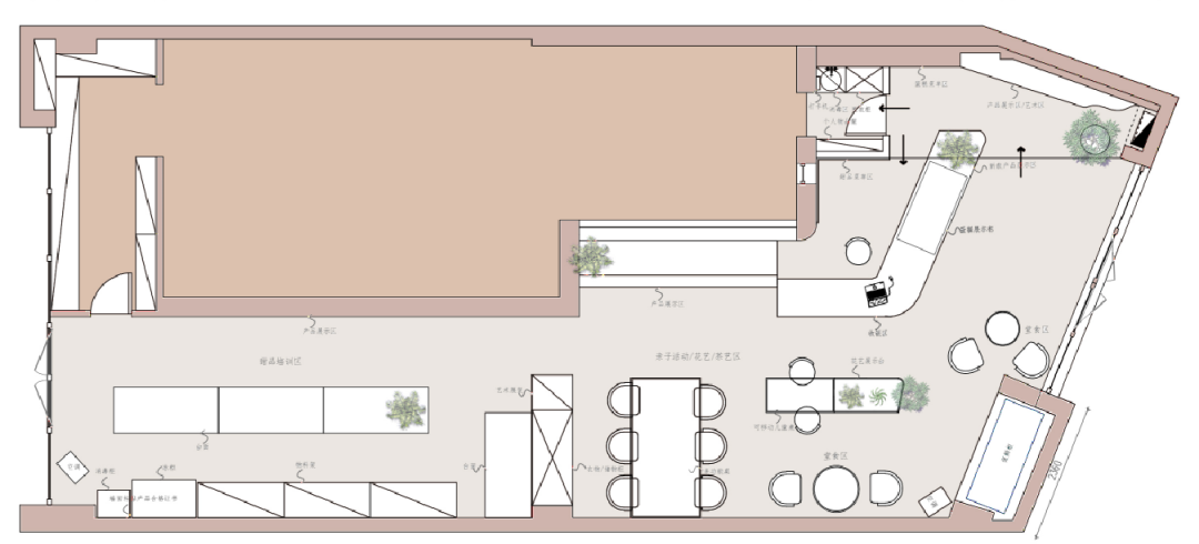
在功能分区上的考虑是分为前台收银点单区、产品展示区、艺术展示区、堂食区、多功能区、甜点培训区等个部分,每个部分功能独立,又相互联系贯通。采用了环岛式的布局,保证空间区域完整性的同时灵活的动线也为空间增加了趣味性。在储物功能的形式方面,全屋采用了内嵌式的储物,顶天立地的储物柜搭配墙面同色的柜门达到隐形储物的形式,确保空间视觉上的完整性,也解决了之前因储物空间不足和分类不清晰的杂乱堆放。
在灯光设计方面,产品展示区选用显色指数高的射灯最大化的还原甜品的本色及新鲜感,配合分散的小尺寸暗藏点光源模拟自然夜空中的繁星点点,培训区取用嵌入软曲线灯条打造空间的阵列感。色彩上以白茶色作为底色,具有自然本色的大地色系为中心色,肌理感的水泥灰作为辅色。在造型上多用圆润的弧形表现空间的活跃性与趣味性,富有自然色彩及特殊形态的软装选款打破空间的局限。
我坚信,出色的产品与原创走心的设计联合,势必会加倍释放,原本早该属于她们的光芒。
2021.3.8 末那识/子叶
︴
通过空间•自然•表现
打造具有美学感染力的
舒适的沉浸式甜品体验店
平面布局图
●
PRAT 1
门头/Front door
⌇
契合:人文精神
跳脱:嘈杂的周边环境,别具一格
Fit: humanistic spirit
Jump off: noisy surroundings, unique
●
PRAT 2
点单收银/产品展示区
Counting cashier / product exhibition area
//
⌇
有夜空、绿树、水面、倒影,更有甜品撒发出的甜蜜味道
Night sky, green trees, water surface, reflection. More sweet taste of desserts. ———— ● PRAT 3. 花艺/多功能区 Flower art / multi function area.
⌇ 打造自然柔软的舒适环境————MANAS 2021new work●?????
⌇富有重量感的餐桌选型,原木与原材设计的藤编材质艺术装置的自然元素碰撞。
Table selection with a sense of weight, The natural elements of log and rattan material collide. ●?????
⌇传播美学与生活态度
体验食物制作过程
享受生活美学的乐趣
Communication aesthetics and life attitude
Experience the production process and enjoy the achievements
————
●?????
//
⌇
点点星光渐隐渐显,自然藤枝随风轻摆。
The stars are fading, The natural rattan branches swing gently with the wind.
●
PRAT4
培训区/Training area
⌇
源于大自然的原材料,新鲜的质感
放松、舒适的空间环境
Raw materials from nature, fresh texture
Relaxed and comfortable space environment
?????
「NOW」为我们的业主方来波硬广左右滑动观看←
面包甜点,定制蛋糕
法式西点,企业茶歇,品牌合作
好的产品力才是硬实力
亲测好次~
开一家店,分享美好。愿你和我一样安静简单。Open a small shop and share the beauty. I hope you are as quiet and simple as me。●?????— — —— — —— — — ———?????
设计究竟能为商业品牌带来什么价值?看看改造前后对比「Before/After」
- 门头-
- 产品展示区-
- 前吧区-
「施工过程」
●
【 末那识 2021 】末那识设计思量与美学修行,以设计创造价值,与你分享点滴幸福。设计师档期随时变动,预约咨询尽量提前。Add : 天津市河东区海河东路棉三创意街区 3-1-119,周一至周六 9:00AM-6:00PM。
客服
消息
收藏
下载
最近













































