查看完整案例


收藏

下载
Ligne roset家具展厅
Ligne roset Exhibition Hall
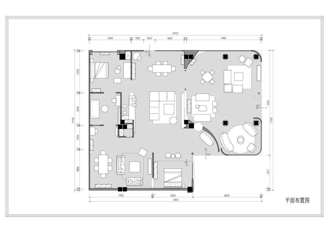
该项目位于红星美凯龙商场之内,从设计一开始,我们和客户就有一个共识,销售动线是最重
要的。我们和客户研究得最多的也是平面布置和销售动线。
我们事先跟客户一起根据之前的销售情况列出主打陈列产品,然后根据这些产品进行平面布置和销售动线的设计。该店面位置较好,位于商场主入口较近的位置,同时旁边有商场的总收费台,那么该处毫无疑问地成为店面主入口。同时我们观察了其他商家的销售情况,附近有人气极旺的其他商家,但不是家具品类,我们在对着该商家的位置也设置了大门,可以吸引更多的客户达到引流的目的。
店面内部的布置,我们设置的路线是,让客户从入口进来以后,可以很自然地在店面内行走到各个角落,可以把所有产品都看到。我们的布置是形成一个一个的小组团,而这些小组团是有场景模拟性的,它们会让顾客能够产生身临其境的联想,关于自己家美好效果的产生联想。
空间视觉效果上,思路的出发点是:产品是主角,空间是为了衬托它而存在的。我们做了几种不同的风格调性,配合不同的家具产品,这样可以使客户认识到:ligne roset的产品可以用在很多不同风格调性的空间里。
我们用了侘寂、现代、轻奢、法式等风格调性。在主入口那个最重要的组团,我们选用了侘寂的风格。因为旁边的商家都是精致、奢华的调性,我们可以与它们有明显的差异化,吸引人们注意。同时因为为了烘托写意空间家具的特性,我们在这里用了大量的曲线,从工期、造价、施工难度等因素考量,侘寂风都是比较合适的选择。
因为有几种不同的风格调性,所以它们之间如何和谐共存、以及如何自然地过渡,就是很重要的问题了。我们采取的手法是造型局部穿插、色彩基本统一,这样可以比较完美地解决谐调的问题。
重庆微观室内设计有限公司
Chongqing Micro Interior Design Co., Ltd.
重庆微观室内设计公司是由几位业内知名设计师于2014年共同成立的独立设计公司。是重庆市建筑室内设计企业联合会副会长单位。
凭着丰富的设计经验、澎湃的创作灵感、良好的职业道德,得到市场认可的同时也得到了学术界的认可。
我们每个设计方案都是根据客户的自身情况来量身定制,而不是批量化生产,每一套设计都有自身独有的魅力。我们会站在客户的立场上思考问题,为了确保每一个作品都能做到极致,我们非常重视施工过程中各个环节的把控!我们希望每个项目最后完工效果都是精品,而不是虚拟的效果图!
客服
消息
收藏
下载
最近

















