查看完整案例


收藏

下载
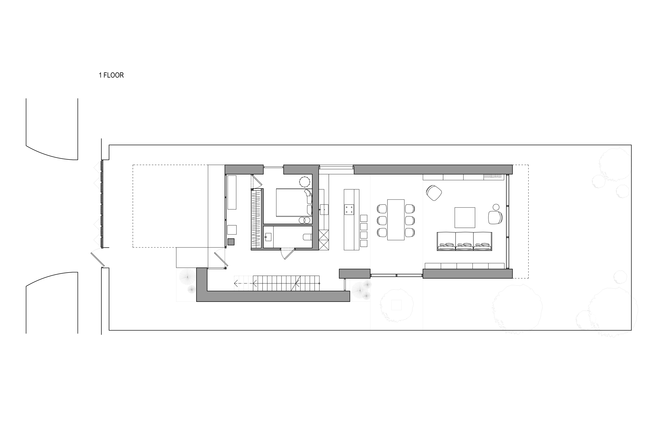
The projected house has two floors and a basement. The first floor consists of a large hall with a cantilevered staircase and an entrance hall with panoramic glazing, a guest room, a bathroom and a common kitchen area, a dining room and a living room with a second light above the dining room and a panoramic roof above it.
预计的房子有两层楼和一个地下室。一楼包括一个带有悬臂楼梯的大厅和一个带有全景玻璃的入口大厅、一个客房、一个浴室和一个公共厨房区域、一个餐厅和一个起居室,餐厅上方有第二盏灯,上面还有一个全景屋顶。
A small plot for building 11x30 m is located in the city quarter of private houses. The house is bright and spacious with large spaces and volumes passing into cozy and private areas. The close proximity to the neighbors houses and the desire to fill this house with the light formed its architecture, panoramic windows and light lanterns in the roof are located so as to maximize the light of the room and create privacy from neighbors. Simple modern architecture, architecture of functionality, but at the same time an expressive voluminous spatial composition and laconic decorations will not leave anyone indifferent to this house.
一小块建筑面积为11×30米的地块位于市区的私人住宅区。房子明亮宽敞,空间大,体积大,进入舒适的私人空间。靠近邻居的房子,想用灯光填满这座房子,形成了它的建筑,屋顶上的全景窗和灯笼,使房间的光线最大化,并给邻居们留下了隐秘的空间。简单的现代建筑,建筑的功能性,但同时表现出大量的空间构图和简洁的装饰,不会让任何人对这座房子漠不关心。
Project: Bogart house Area: 212 sq.m. Location: Dnipro, Ukraine Project: 2018 3D graphics: Alexander Chervinskiy
项目:博嘉住宅面积:212平方米。地点:乌克兰Dnipro项目:2018年3D图形:Alexander Chervinskiy
客服
消息
收藏
下载
最近












