查看完整案例


收藏

下载
懒得阅读文章,翻起来很累?别担心,我们把最主要、最精华的内容拍成了小短片。点击视频,即可观看本案例的户型讲解!建议全屏观看。
浴火重生的亲子住宅 / A parent-child residence reborn from the ashes.
项目地址/ 加州花园 Location /Jia Zhou Hua Yuan
项目面积/115㎡ Project Area / 115㎡
项目造价/69 万(全案)ProjectPrice / 260W
设计风格 / 现代风格 Design style / Moderne style
主案设计师 /王海 Designer /Wang Hai
软装设计师 /张君霞 Designer / Zhang Jun Xia
//
这个家的故事,你肯定想不到。这是一套位于渝北区的 22 年房龄的老房子,坐落于重庆的繁华地带,曾经有着“富人聚集地”的称号。由于几年前的一场大火,让这个小区一度登上重庆同城的热搜,而本案,也是这次火灾的“受害者”。
火灾后的实拍图
火灾后的房子受损严重,家具被烧变形、墙壁被浓烟熏黑、地面残破不堪,屋主当时重新翻新过一次,与其说是翻新不如说是重建。
火灾后重新装修的实拍图。但这样的家,始终达不到屋主心中所想的“近于市,心向隐逸之所”,于是找到了本案设计师包子,包子是曾经给她家别墅做设计的老朋友了,这套二次重建的家,也放心的交给了他。
改造难点 Change Difficulties
房屋是 113㎡的三室户型,原始户型采光较好,尤其是弧形阳台带来了充足采光,但次卧室空间过于零碎,需要重组留出卫生间的功能区。
原始框架图
拆改时的实拍图
二次装修后的房子需要全屋拆除,光整理+拆除就花了一星期的时间,接下来我们看看现在的设计是怎样的!
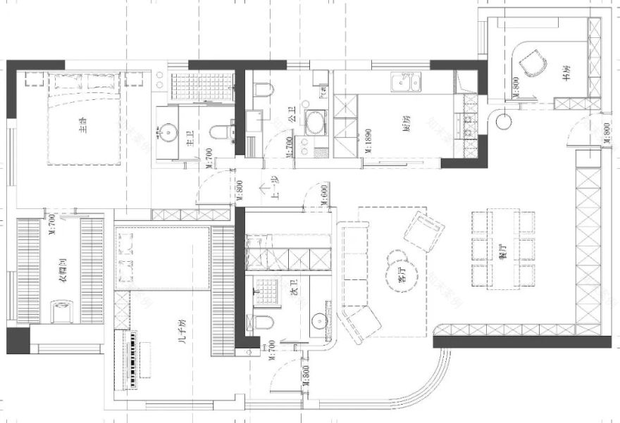
试着在平面图里走走看
平面布局图
由于居住者是一对母子,那么这个家必须得拥有和家人相处的自在,以及专属自己的清醒领域,所以做了以下 4 点重点规划:
➊储物量大,满足女主人买买买后的收纳;
➋越宽阔自由的屋子越需要简单有序;
➌每个卧室均规划独立卫生间;
➍母亲有独立的衣帽间,儿子有独立的电竞室。
透 / 小玄关 /
客厅是方正的,并且一览无余,设计师使用收纳柜穿插的形式,造就了一个独立的小玄关。
弧 / 随处可见的弧形 /
改造前,顶上和墙面太多横梁和转角,结合阳台的弧形,把家里所有尖锐的角都做成圆弧。
蓝 / 跳跃的群青色 /
定制柜体中的开放格部分采用跳跃的群青色,这是一种来自于宝石中最纯粹的蓝色,在古代表着“高贵”。
01客餐厅
模糊界限,内外贯通,写意清欢
家门一旦被开启,第一印象总是挥之不去。曾经“俗套”的家居氛围早已消失,在横向空间维度上,将自然采光最大限度引入空间,现在这个家拥有朗朗明月般皎洁的气质,入目的那一抹“蓝”,搭配极具设计感的模块沙发,展现出整个家独特的气质。
两个人都没有电视的需求,因此收纳延墙游走,不仅可以满足杂物收纳,连屋主淘来的那些精致摆件,也可以展示出来了!家无需过多装饰的赘述,亦不负艺术的审美,进入这个沉静的空间,正好让心情冷静下来。
02 独享空间 多功能室 多面生活场域的折叠与展开
沿着弧形的转角,嵌入深色滑门,不仅不占用空间面积,还隔绝出这一间多功能室。这里可以满足一杯早茶,片刻的阅读;可以满足和队友一起开黑,热血奋战;当然,也可以是工作学习的亲子相处时光。这些早已被纳入未来生活的轴线上,复合型生活场域,打开了多功能空间的新世界。
03 主卧空间
四时流转,是写给生活的诗
焕新后的家,以光的流动串联起时间和空间。抬高 15 公分的部分地面,是为了满足新增卫生间的走管需求,加持一排感应灯带,一路牵引着步入主卧的仪式感。
干净简单的床头背景,不会过分消耗精力,流畅的灯带滑出温润的光,营造出舒适的氛围。
一个隔出的衣帽间,藏在玻璃移门背后,有序的收纳,把空间让位于休息时的宽阔。
04 儿子房 呵护有趣的生长
儿子房是本次设计最大的难点,因为需要在有限空间内满足休息、休闲、收纳、独卫等多个需求。
改造前的次卧室拥挤不堪。设计师利用榻榻米+定制柜体保留出空间内的休息和收纳功能,原始墙顶的横梁过于突兀,现在利用弧形吊顶顺势包起来,内置灯带,打造出简洁空间的氛围感。
滞留的空位,是为未摆入的钢琴留下的。
有时候,一间卧室只需要干净纯粹,足以安抚。
後記
此时,你还能回想起这套老宅曾经的样子吗?就像屋主说的:“这样的家,让人愿意沉浸且能待很久,朋友来访或者独处,都适合。”
本案在品界全案模式下,我们历时 4 个月完美交付,这份“浴火重生”后的带来的简单温暖,覆盖掉固有印象,它推动我们看向现代风格的另外一面——对不同风格的包容性、居住结构的穿透力。
在此,感谢业主的信任和委托。
DESIGNER 設計师
主案设计师 王海
软装设计师 张君霞
- 希望更多热爱品质生活的朋友选择品界 -
了解品界更多实景案例,可直接点击阅读▼
往期精选
点击阅读
▼王中玲丨舜山府 175㎡现代法式风格,把浪漫“装”进家里!
徐坤菊 陆伟 丨136㎡的六口之家,理想生活,温柔可触!
王海丨两房全打通,造一个 260㎡极简风大平层!
王刚丨城市之中,尘世之外,造一个 700㎡的新中式雅墅!
奉薇 丨壹号湖畔 200㎡精装房,对空间的二次定义!
祝贺品界国际重庆公司蝉联中国国际装饰及设计艺术博览会第十一届、第十二届、第十三届、第十五届“十大最具原创设计机构(别墅豪宅空间类)”奖项。
“2018—2019 年度十大最具原创设计机构(别墅豪宅空间类)”获奖奖杯与证书
“2017—2018 年度十大最具原创设计机构(别墅豪宅空间类)”获奖奖杯与证书
“2016—2017 年度十大最具原创设计机构(别墅豪宅空间类)”获奖奖牌与证书
“2015—2016 年度十大最具原创设计机构(别墅豪宅空间类)”获奖奖牌与证书
2017 荣获中国建筑装饰协会暨住宅装饰装修委员会颁发“规范施工单位奖”。打造德系精工时代,挑战零甲醛环保标。
客服
消息
收藏
下载
最近






























































