查看完整案例


收藏

下载
豪宅缔造者 李玮珉 李玮珉建筑师事务所成立于1991年,现有100多位同事,分别驻留在台北和上海、北京三个办公室。在2016年注册了一个位于纽约市的分公司,开始提供客户在北美地区的专业服务。 李玮珉,中国豪宅设计领域代表人物,擅长打造现代主义风格,精致与高级感兼具。他的作品涵盖了都市设计、建筑设计、景观设计、展示空间设计、办公空间设计、酒店设计、医疗空间设计、剧场设计、博物馆设计、商业空间和住宅设计多个设计领域。 李玮珉 | 解析“高端住宅设计”理念
位于海棠湾最北端,由海南建丰集团开发,建筑与室内设计由LWMA 事务所李玮珉操刀。同期项目包含四季、W 、圣瑞吉和宝丽嘉4 个顶级奢华酒店与部分私人住宅区以及由日本建筑大师安藤忠雄设计的游艇精品酒店等等。
“国家海岸”海棠湾是三亚东疆门户,与亚龙湾、大东海湾、三亚湾、崖州湾并列为三亚五大名湾。海棠湾岸线长22公里,拥有比肩世界著名滨海旅游度假区的国家稀缺性旅游资源。
三亚海棠湾,被4000亩椰林包裹下的 12个天然小岛,取名椰子洲,是目前海南保留最原始的自然景观岛屿。
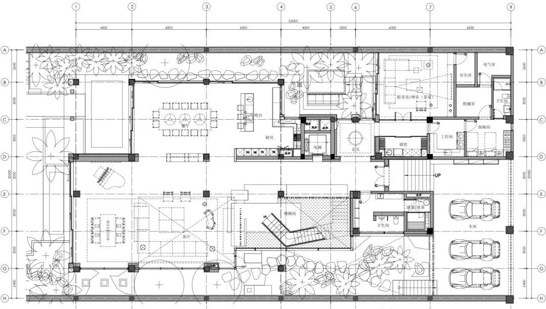
设计师对整个建筑景观整体考虑,增加入口景观的面积,并打散建筑方正的体量感,模糊建筑与景观的边界,使入口庭院的空间层次更加丰富。
“穿过不同的空间感受到不断变化的或景观或室内的“风景”,营造出犹如电影场景般的空间的流动性,丰富了感官体验。”李玮珉说。
作为设计师,把更多心思花在楼梯的处理上,使其成为风景一直是LWMA团队的理念。绕过稀疏错落的格栅,一架楼梯就在咫尺之间。
飞跨过平台和水池,斜向穿出一架木梯,踏着台阶平步青云,别墅的风景尽在眼中。如同装置艺术品的楼梯,阳光透过窗格和楼梯栏杆,阴影交汇充满诗意。
作为首层乃至整个别墅的社交核心,客厅从空间上也连接起二楼和户外的景致,以过廊与首层餐厅联系,为开放、现代的生活方式提供了解决方案。
享受绝美视野的卧室,仿佛一步跨入天堂。焦糖色的木质温婉如南国女子的性格,沉静而柔韧,将透气感保持在整个立面的操作上。
设计师们接受自然的馈赠,因地制宜选取柚木这种典型的热带树种,其含蓄的纹理却有一种性感的光泽,质感里透出一种野性的美好。
保持与生活的距离,让我们变得具有一种旁观者的视角,偶尔的抽身世外,能够获得更全然的智慧。在椰子洲岛的遗世独立,片刻抽离,获得“小舟从此逝,江海寄余生”的潇洒。
超大客厅,让每个来到别墅的人,都会由衷赞叹,再多的朋友也可以招待。金色的吊灯像杂技般舞蹈,垂落在空间中,引人仰头观看。浅棕的空间主调,从柚木顶棚、巴塞罗那椅到茶几,原始天然。
家具摆设在开放式空间布局中,无比自由,沙发围合成“半岛”,茶几、沙发则成“孤岛”。社交距离或是亲密距离,满足人与人之间交往的可能,姜黄色靠枕,跳脱出色彩的层次。
安置在一片剑麻毯上的餐桌椅,黑白配色素朴古雅,呼应毯子的几何图形的原始味道。餐厅灯从顶棚尽力下吊,形成尺度上的关照和联系。
楼梯在空间中穿插冲撞墙体的围合,现代建筑的趣味在于制造不同的“透明”感。楼梯间常见的大型吊灯被打散,星子般垂落在共享空间中。
淡雅的色调占据了卧室的主体,白色烤漆背板,硕大的双人床旁边点亮一盏蘑菇灯,掀起窗帘满眼的风景,珍贵的不一定是材质,更是宁静与舒缓的情绪。
二楼主卧通过走廊逐次进入,光线逐渐明亮,设计师有意将走廊延伸,营造一种“复行数十步,豁然开朗”之感。
橙黄色皮革略带野性、棉麻床品无比亲肤,两种材质完美搭配,构成主卧家私的主材。放置户外沙发的阳台,弥合了自然与人居的界限。
三亚海棠湾四季C型销售别墅;
海南建丰旅业开发有限公司;
李玮珉建筑师事务所 上海越界建筑设计咨询有限公司;
管新炎(建筑设计,室内设计)
林宏铭,陈蕊(建筑设计) 刘涛,杨林,刘翔,孙雨(室内设计);
郑人搏,瞿姣姣,苏彪,陈绘鹦
客服
消息
收藏
下载
最近





























































