查看完整案例


收藏

下载

翻译
Architects:Studio-Gram
Year :2017
Photographs :David Sievers
Builders :Harrold & Kite
Design Team : Graham Charbonneau, Dave Bickmore, Olivier Martin. In collaboration with Kate Russo (Design Architect)
Project Architect : Dave Bickmore
Design Architect : Kate Russo
Architect : Olivier Martin
Graduate Of Archtecture : Sam Broadbridge
City : Millswood
Country : Australia
@media (max-width: 767px) { :root { --mobile-product-width: calc((100vw - 92px) / 2); } .loading-products-container { grid-template-columns: repeat(auto-fill, var(--mobile-product-width)) !important; } .product-placeholder__image { height: var(--mobile-product-width) !important; width: var(--mobile-product-width) !important; } }
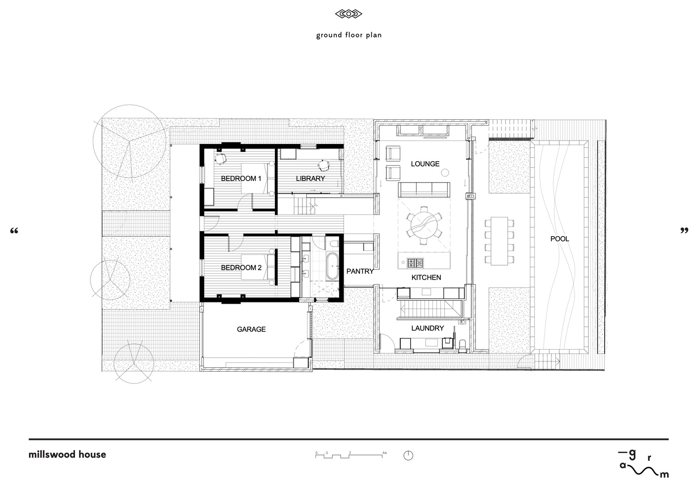
The existing Percy street residence is a ‘turn of the century’ double-fronted cottage. The aim of the design was to maintain the current character by using the roof form as the basis for the extension.
At ground level, the cottage is brought back to its original form, by removing the small extension to the east. The east-west axis is maintained through the interior, strengthening the ‘corridor’, which is common to this style of home. A link is created between the old and the new, through the use of glazing and negatives to both the north and the south]. These negatives were also a key consideration in cross-ventilating the new extension.
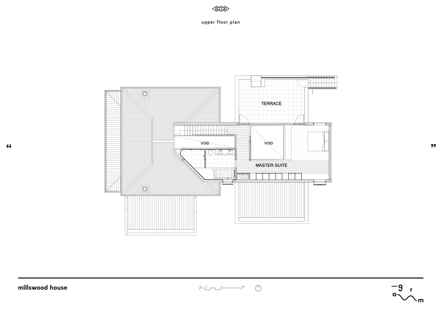
The form at the second story takes cues from the existing roofline, minimizing the impact it has at street level, and allows the two forms, old and new, to sit comfortably as one. The introduction of the 'cat ear' or the inverted roof line, allowed us to create the width necessary on the floor plate, to accommodate the master bedroom, the robe, and the ensuite, whilst also creating a concealed roof plane to accommodate the 12KW solar array. The introduction of a large void from the master bedroom, above the dining table below, floods the ground floor with light and allows for natural convection to pull air up through the void and out the openings onto the roof terrace.
The roof terrace introduces otherwise unknown views across the roofs and the treetops of adjoining properties, removing the users from the ground plane, whilst strengthening the connection back to the natural environment. The pool in the rear yard was raised 1200mm from the ground plane, eliminating the requirement for a traditional pool fence, whilst also raising users of the pool to the same height as those adjacent to the pool in the entertaining area. The introduction of the raised pool creates a mid-level between the ground floor and level one, allowing the opportunity for a circular path of movement between the ground floor, the pool, the roof terrace, and the master suite.
The simple material palette, of bagged brick, burnished concrete, and timber allows the opportunity for the client’s eclectic art collection to be displayed prominently throughout the house. The robust nature of the palette will allow the materials to weather and adapt to their environment whilst remaining relatively maintenance-free.
▼项目更多图片
客服
消息
收藏
下载
最近

































