查看完整案例


收藏

下载
他说:身处这个三维空间,偏安一隅,不失桑榆是件幸事。
她说:记录每一个笑脸,收藏每一个温暖的梦也是件幸事。
他们说:方寸之间,时间和空间内,“它”可以创造无限可能。
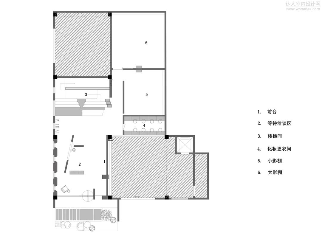
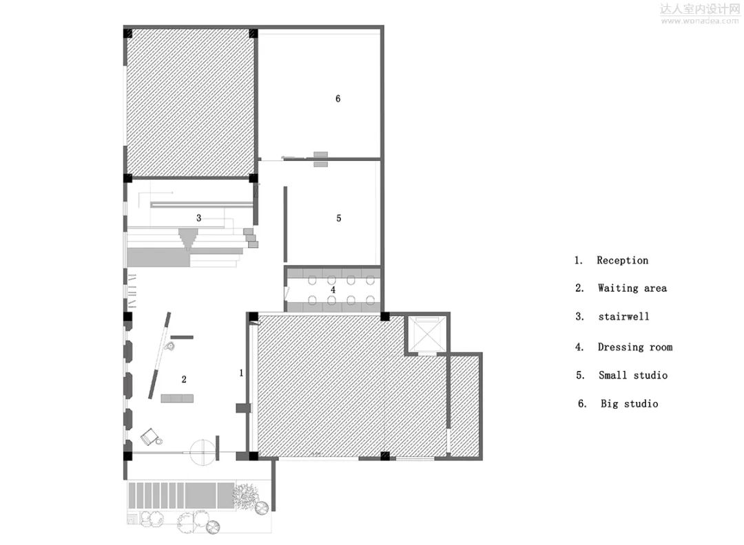
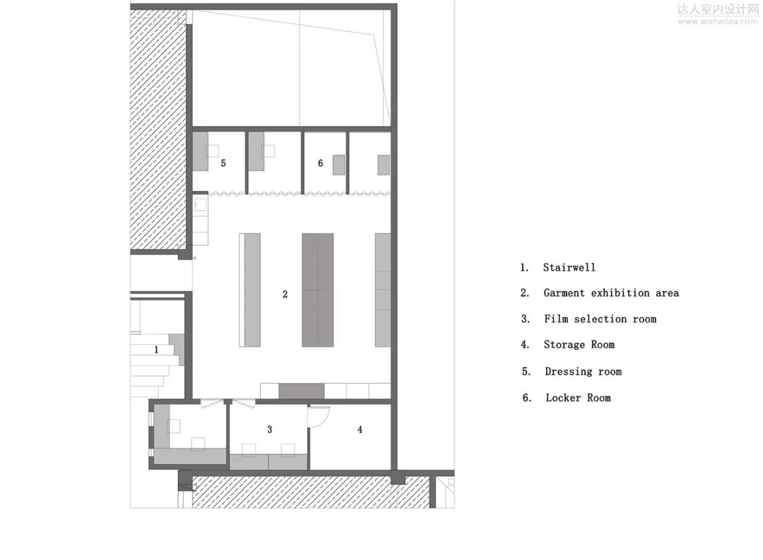
本案是CM视觉空间位于江苏常州市新北区的一家摄影工作室。该空间设计主要强调了它立面层次上的变化,第一眼浮于表面的随机形态,实则出其不意的达到10分的统一效果。适度的在固有入门、行径方式上创立新体制。
Discuss the area
“分解——综合”是赋予该空间的重要设计理念,分解形式的开放墙体,呈现一种不完整的构图排列方式,艺术感仿石椅与吊挂石块型雕塑装置搭配,这种粗粝质感与富有肌理的效果让空间增添了灵动感,综合后独立与联动兼具,和谐的给与空间张力十足的形象,墙体衔接形式独特,力达耳目一新的感官体验。
三维空间里让我思考物体相对原点O的距离关系,最终,设计选择以卡洛·斯卡帕的解构主义理念建立基础加以进行思想上的延伸。因理念本身的开拓意识,所以设计方式上不被定义,让我们从预定的商业框架中挣脱出来,换个思路呈现具有开放性和无终止性的空间。
Interior details
Floating shape wall
最直观的外扩正方体造型悬于墙面,玻璃窗口让内外结合,也让建筑特性最大程度的运用到室内。内与外、虚与实、个体与整体的表达围绕着CM工作室独有的艺术氛围而展开,正方体形态内部是为主理人打造的独立办公区域。
Dressing and changing area
一切动线及空间立体维度模型都经过脑海中的撕扯,挣扎后,又互相制衡。为了保证动线流畅,确保空间统一性和室内拍摄时区域独立性,做清晰的区域功能分隔,满足日常功能需求,突破语言上的所不能达到的视觉局限,给人们带来感知方式的改变。
Scene stairs
追随形式美学的永远是功能,该空间展示了超出其外表的本质上的功能需求,借由建筑空间直接传递,以释放访客和顾客的自主性与选择权。
访客与顾客可自主、自然地完成探索、感知、对话、认同、选择的过程。当下即是过去,作为一处摄影基地,未来的无数瞬间也将会在此发生、在此被永恒记录。
interior detailed view
ABOUT PROJECT
项目名称:CM视觉空间摄影工作室
项目地址:中国江苏常州
设计单位:上海遇见美学设计事务所
设计起止日期:2021.11.01—2021.12.01
完工时间:2022.05.08
主要材料:微水泥,金属,铁件
项目摄影:ingallery(丛林)
客服
消息
收藏
下载
最近

















































