查看完整案例


收藏

下载

翻译
Architects:Barbosa Mateus Arquitetos
Area :170 m²
Year :2021
Photographs :Lourenço Teixeira de Abreu
Manufacturers : CIN, Cinca, Efapel, Recer, THPG, Batista-gomesCIN
Lead Architect :Mariana Barbosa Mateus
City : Venda do Duque
Country : Portugal
@media (max-width: 767px) { :root { --mobile-product-width: calc((100vw - 92px) / 2); } .loading-products-container { grid-template-columns: repeat(auto-fill, var(--mobile-product-width)) !important; } .product-placeholder__image { height: var(--mobile-product-width) !important; width: var(--mobile-product-width) !important; } }
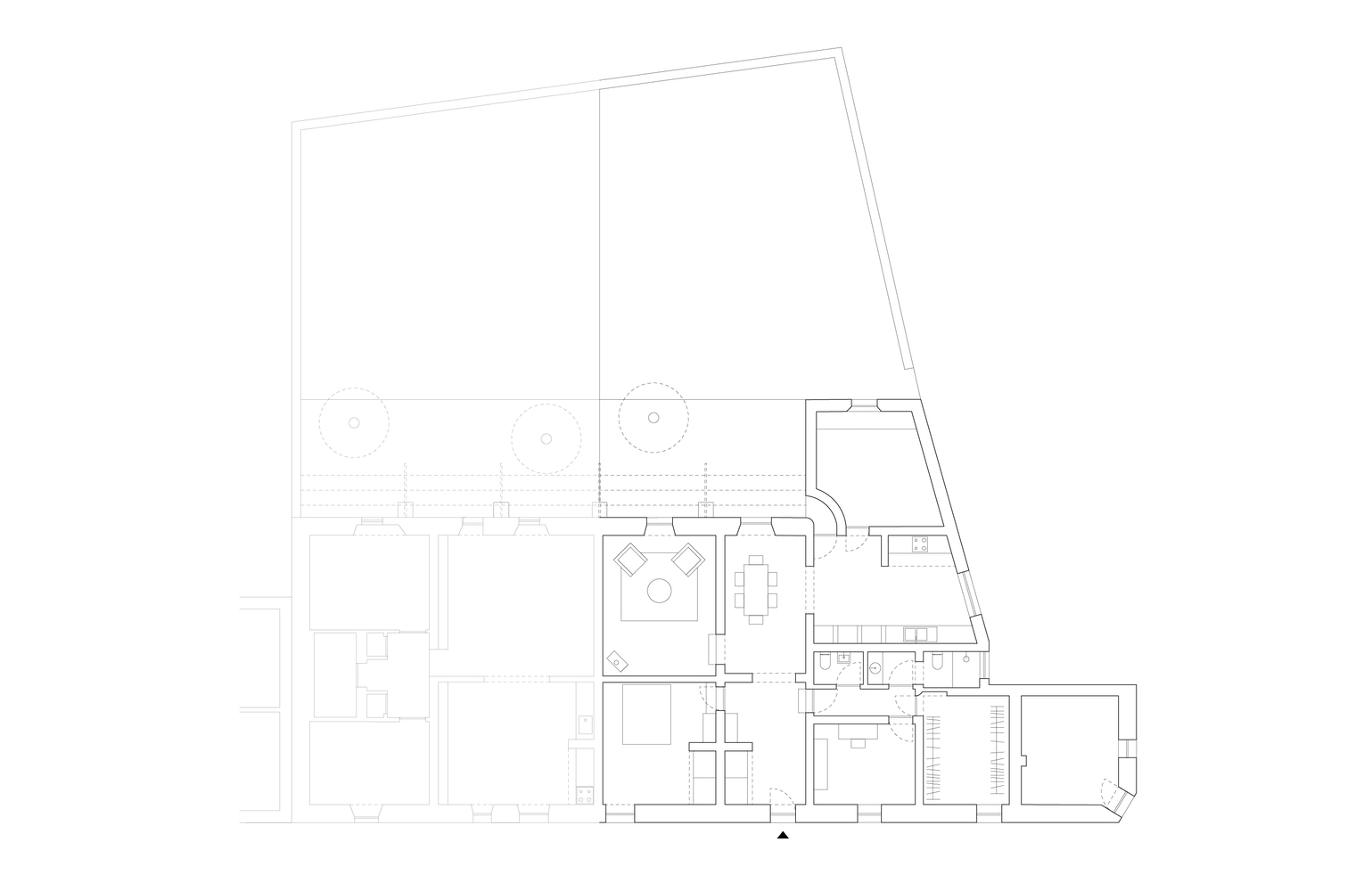
The project is located in Venda do Duque, Alentejo, next to a deactivated train station. The site is remote and surrounded by cork oak and olive trees, typical of Alentejo's landscape. The space was previously a small house and a bakery. The two buildings were connected and edited with careful demolitions and strategic additions, with most of the walls retained, as well as the ceilings, vaulted or sloped in timber.
The project celebrates the vernacular architecture found in the pre-existent structure and aims to preserve the memory and character of the space. Retention was the prime strategy. The material palette was the one found – white-washed walls, timber, stone, and tiles. Local craftsmen used traditional methods to renovate the house, and the majority of the materials were Portuguese.
Henny and Alex Waalwijk, the current residents, have moved from Antwerp to Alentejo and filled the house with an eclectic collection of objects and furniture, enriching and transforming the regenerated space once more.
▼项目更多图片
客服
消息
收藏
下载
最近




























