查看完整案例


收藏

下载
从古至今,人们天性热爱自然,对赏心悦目的自然风景满怀向往。英国“桂冠诗人”华兹华斯曾说:淡淡的花香是最好闻的花味。在对自然和谐之美的赞赏中,他提倡的正是一种返归自然的闲适生活。本案业主所追寻的理想之家,正是这样充满自然诗意的温馨有爱之所,与此同时,又兼具现代轻奢的简雅与品位。
本案业主是一对年轻的 80 后夫妻,二人拥有一儿一女,儿子已经上小学,女儿还是一个小 baby。男业主经营一家 IT 企业,性格爽朗,喜欢自然和自驾游。女业主爱好摄影与旅游,二人对于自然与生活都有着发自内心的热爱。别墅的葱郁花园所营造出的浓郁自然气息,正为这个温情之家铺展开了最佳底色。
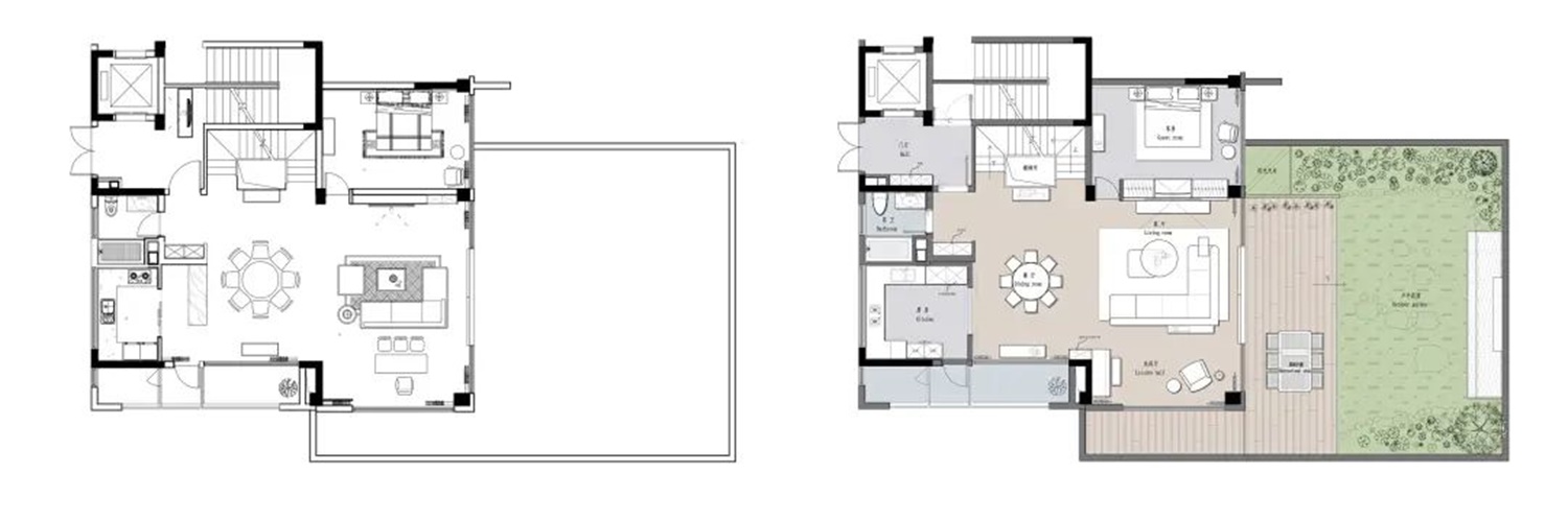
设计师对原有空间布局进行了合理的调整与改造,把之前一楼和二楼的三个卧室进行了重新规划与色彩定位,将旧有的中性空间改造得更为丰富而具针对性,使其氛围调性更符合特定居住人的居住与生活习惯。与此同时,极大拓宽了收纳,注重在解决功能问题之上的趣味性融入,使空间整体相宜的同时又精于细节的表达。
-1L
1L
2L 01 花园 对望自然,迎面相拥。
改造前
改造后
在现代都市快节奏的生活之下,拥有一个独属花园,似乎是一种奢侈。花园承载着人们对自然生活的无限向往,是现实与精神世界的双重绿洲。于喧嚣的城市生活中,在家里独辟一块世外桃源,让人更亲近自然,使人的整个身心都得到滋养。
园中枝繁叶茂,明媚的阳光尽情倾洒在院内。当白色窗帘随风飞舞的瞬间,业主家养的活泼好动的小白兔也在蹦跳间入镜,与俏皮的 Qeeboo 白兔椅完美呼应,正是镜头定格的神来一笔。
光影斑驳,木植欣欣向荣。花园设置有专门的休闲区,一家人或者约上三五好友,在这里可以坐观满园绿意,酣饮畅聊,尽享慢生活带来的惬意时光。
02 客厅
优雅现代,引光而来。
改造前
改造后
客厅以素雅色调为主,简净大方,采用 FLEXFORM 大转角沙发,带书架的扶手设计方便平时随手放置书籍。别具特色的 POLIFORM 长圆组合式茶几,为空间更添层次感。
大面积的落地窗将室外光线引进来,让室内更加通透明亮。
设计师考虑到空间自身的可变性因素,为客厅设置了钢琴预留区,满足未来生活的多种可能。整个客厅空间在实现整体功能最大化的同时,将简雅气质拿捏得恰到好处,让居住者身处其中可以体验到最大程度的放松。
03厨房·餐厅
静谧烟火,围坐可亲。
改造前
改造后
厨房将之前相对狭小的空间以及外面利用率较低的吧台区域改为了大中厨,将原本进出不便的设备房门,纳入厨房之内,使进出更为方便。
改造前
改造后,客餐厅贯通一体,视野开阔。餐桌采用特殊磨砂处理的 MC 大理石台面,质感温润,避免了光面带给人的冰冷感。储藏充裕的备餐柜设置,为制作餐食提供了极大的便利。
理性的折线楼梯搭配垂坠的透明吊灯,和谐之余,也将空间勾勒得更富肌理感。
04 卧室
自然为邻,休憩港湾。
改造前
改造后
主卧对之前零碎的、面积不够的衣柜进行了梳理再造,使衣帽间更为完善。特意为女业主增加了梳妆台,便于日常使用。
阳台做了干景造景,绿意葱葱,丰润有度。有阳光倾洒的午后,整个阳台都沐浴在明媚之中,人的心绪也在这里慢慢发酵,随着时间一点一点的流逝,在光移影动中,变得柔软平和起来。
次卧色调静谧柔和,装饰艺术版画,使空间变得更加生动多姿,营造出一种适于休憩的沉静氛围。
05 儿童房
释放天真,快乐成长。
改造前
改造后
儿子房将空间面积予以拓展,在不影响活动空间的同时,增加舒适度及利用度。扩大衣帽间面积,使之能够存储更多衣物。拓宽书柜面积,满足孩子的学习所需,将书柜设置在靠窗位置,采光良好,有效保护了孩子的视力发育。
儿子房以柔和的绿色调为主,清新自然,充满生机与活力。空间中充足的柜体收纳,满足孩子成长过程中的各类收纳需求。
改造前
改造后,女儿房在不影响原始储物空间的情况下,将衣帽间的方向进行了相应调整,拓展了部分房屋面积,避免了之前的空间死板、挡光、进门之后一览无余的问题。增加书柜面积,预留未来的写作区,同时为爱美的女孩设计了一面全身穿衣镜。
以粉色调为主的女儿房,甜美烂漫,充满童趣,用心呵护着孩子心中最天真纯粹的公主梦。
06茶室
赏玩瑕光,禅意韵致。
业主热情好客,考虑到其日常待客需求,设计师将负一楼空间设置为茶室与品酒区两个功能性区域,同时为了满足大量的收纳需求,设计了辅助储藏间、杂物间来配合使用。
一抹沉静的蓝色作为空间中的调色,给人以视觉冲击,在和谐的节律中,将待客氛围烘托得恰到好处。
典雅的茶室线条干净利落,别具韵味。枯山水的意境营造,禅意十足,同时又与空间的自然主题一脉相承。
整个家对自然的向往已经成为一种烙印,无论是花园绿植盎然的自然美景,还是室内不同功能区所追求的自然个性,都与自然息息相关。现代轻奢的自然居所,让家的温度融入到每一个动人的细节之中。
家中美好生活的瞬间
项目类别:精装房改造
项目地址:成都 · 凤起朝鸣
设计机构:尚舍家室内设计
设计师:杨超
空间摄影:李恒
项目面积:385㎡
完工时间:2022 年 4 月
主案设计师 杨超
客服
消息
收藏
下载
最近



















































