查看完整案例


收藏

下载
道在日新,艺亦须日新,新者生机也;不新则死。——徐悲鸿
当下的商业空间,多元化的功能已经成为主流。这种打破边界再融合的全新形式蕴含着更多可能性,让循规蹈矩的生活更有吸引力。在这种理念的促使下,我们以解构的手法为TP HOUSE高定影像打造了一个融合新与旧、繁与简的多元空间。
TP HOUSE高定影像位于苏州老城区,特定的地域环境、混合业态的空间以解构的手法,实现场景的融合与区别,以及人、环境、产品、空间的融合。
建筑纯白的外立面既不与老街区的环境冲突,又能在一片深灰和浓荫里显露,出挑而不张扬。
白墙如纸,树影成画,记录老街上的一段美好时光。
门廊以质感的深棕色映衬室内,让明亮的光线指引人进入。
一侧墙面内外统一,悬挑的台面跨越两个空间,用延伸的线条牵动人的视线由外及内,创造吸引力。
挑空结构与解构手法相结合,打破不同空间的界限,以橱窗的形式将服装展现出来。多重线条与体块的排列叠加,让人入内就可以感受到视觉的冲击。
极简的空间里也有细腻浪漫的小心思。
墙面利用结构的错位和装饰品丰富空间的层次和质感,延伸的线条,被冲破的边界都引人无限遐想,空间的故事也不止于此。
婚姻是一座神圣的殿堂。空间具象了这个概念。
圣洁的白色,西方神庙的元素,长长的台阶,导演空间隆重又庄严的情绪,调动来客及早进入状态。
几何形状用最简洁的方式勾勒出丰富的空间结构,动线迂回内容充盈,让空间在保持简约格调的同时,观赏性和可探索性也大大提升。
在影像馆逛累了,可以来咖啡馆小憩片刻。
弧形屏风解构空间,创造迂回的动线,保证客座区的私密,提升空间体验。
咖啡馆延续古城区的特质,充满时间的痕迹。
窗外绿荫如流,木结构的屋顶保留建筑的原始风貌,藤编、木质呼应这份古朴,让人感受到街区的慢节奏。
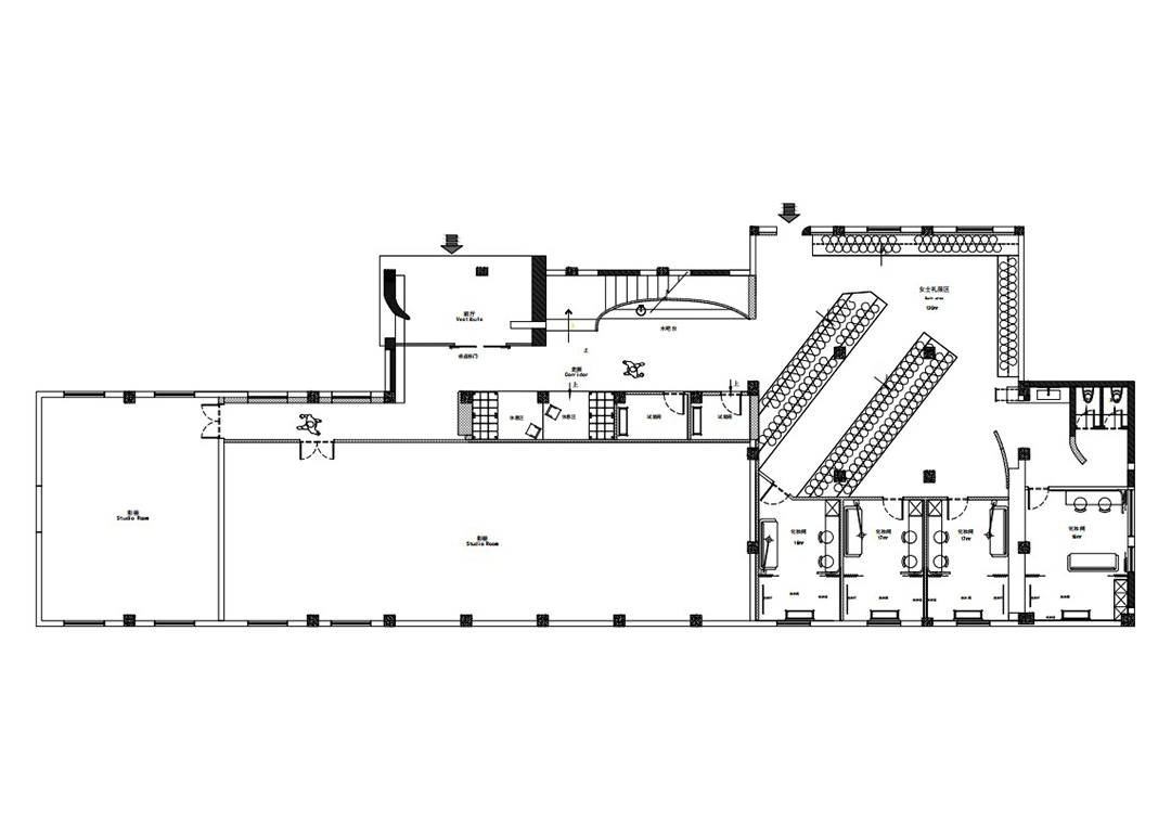
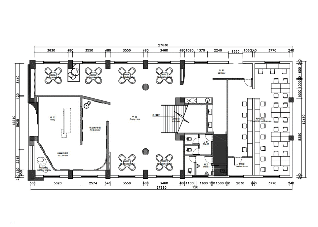
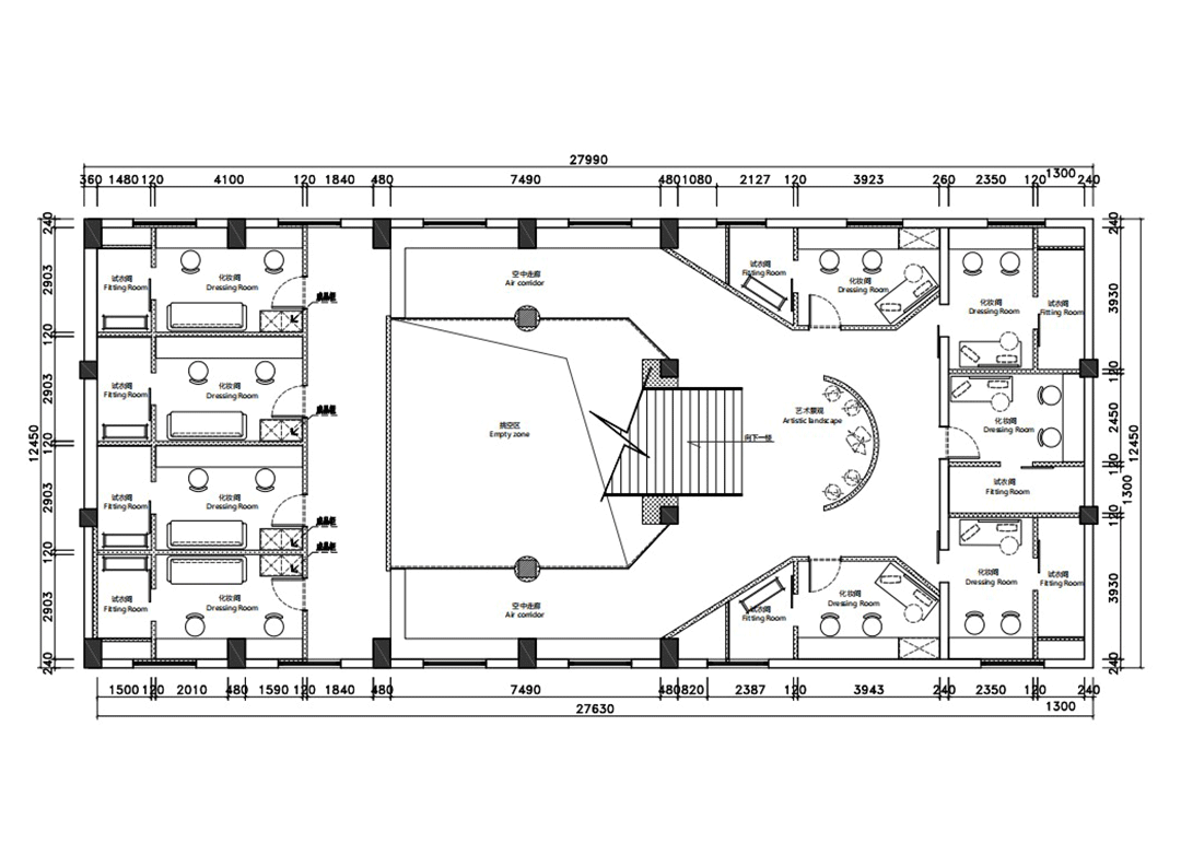
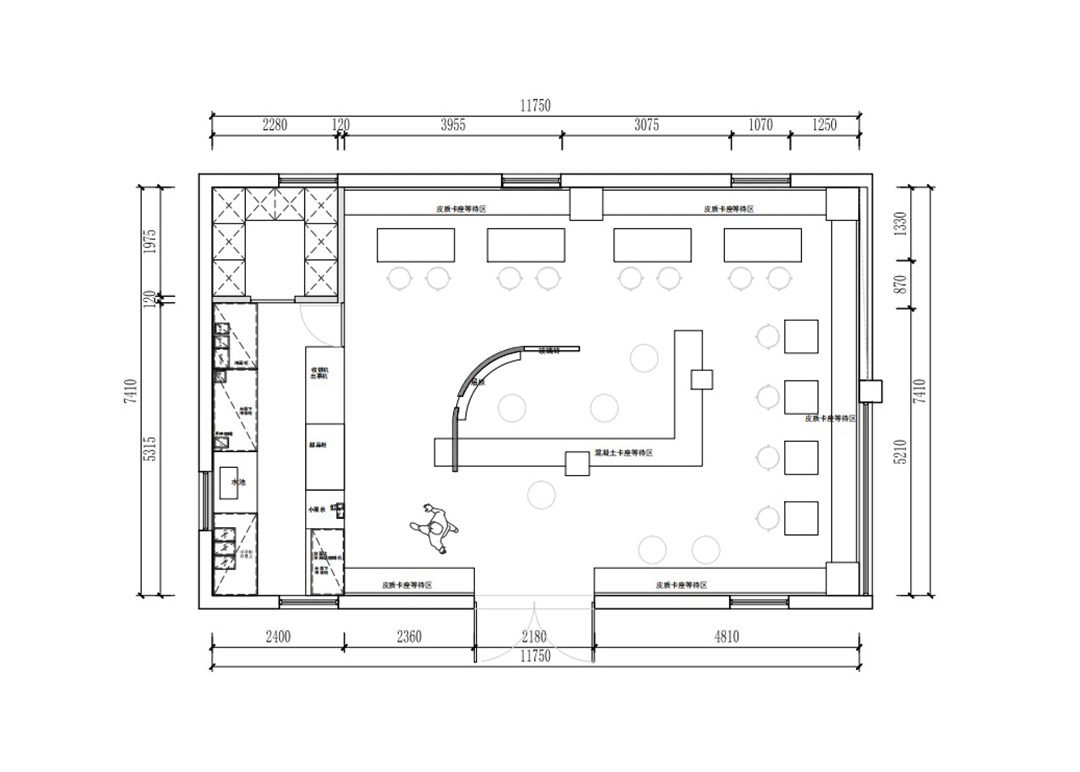
平面图DESIGN PLAN
一层平面图
二层平面图
接待区一层
接待区二层
礼服馆
咖啡店项目信息ABOUT THE PROJECT
项目名称 | TP HOUSE高定影像
项目地址 | 江苏省 苏州市 姑苏区
项目面积 | 1500㎡
设计公司 | 苏州一野设计事务所
设计团队 | 何成 周博 陆嘉伟
开始时间 | 2022年5月
完工时间 | 2022年7月
摄影团队 | 马利仁
设计顾问 | 杨航 谭鹏
客服
消息
收藏
下载
最近















































