查看完整案例


收藏

下载
这次设计业主居住人口较多,在原来的三室的基础上要增加成四室,要保证每个家庭成员的独立性,尽可能满足储物、工作、学习的功能。
业主喜欢自然山水,设计团队从中提炼一个“和”字,和是人与自然相处之本,也是家庭相处之道,也是这次设计出发的原点。
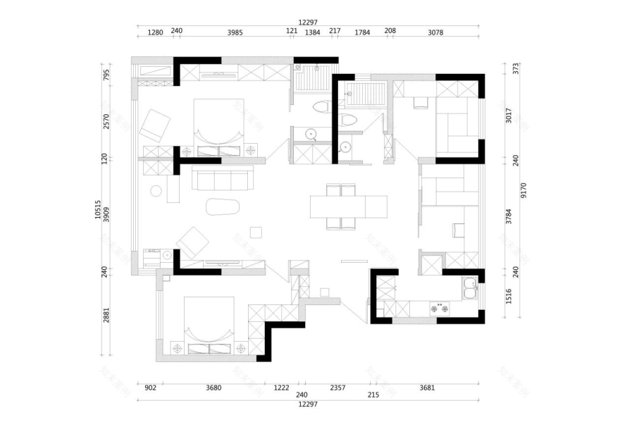
原始户型中规中矩,但是存在些小问题,如进门对厕、北卧客卫同入口,以及阳台的利用和怎样增加一室。
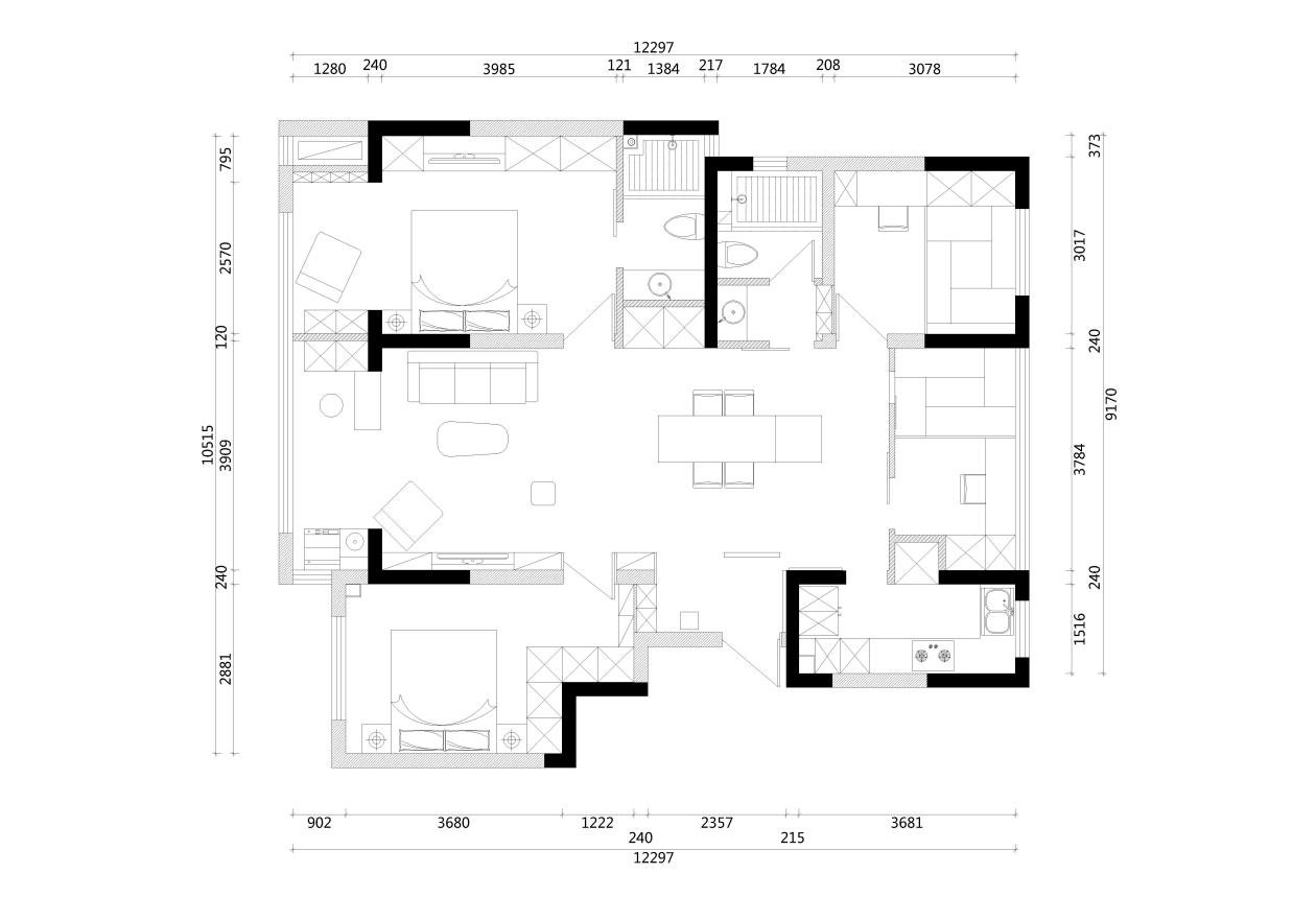
最终布置图
1、设计玄关。
2、餐厅外移,增加一室。
3、次卧改门口位置,与客卫分开。
4、大阳台划分为主卧阳台和多功能阳台。
5、在不影响居住的情况下,尽可能增加储物空间。
狭小的入口,设置一个轻盈的玄关。一块原木,一瓶插花,自然的气息铺面而来。
在白色的空间中,木色构造出不同的形态。或长或方,或点或面,在空间中如果音乐律动般起伏变化。
高一寸为山,一块太湖石就是一个小世界。
水波为画,拳石当山,身在凡世,初心不改。
一个小窗,选择性的与公区沟通,也让空间有了俏皮的感觉。
阳台的悬挑书桌,偶尔坐下来,喝杯咖啡,让生活慢下来。
设计师为空间创作的一副小画,如同梦中一瞥。
书是最好的朋友,随手而伴。
次卧一
次卧二
厨房
肆合筑造空间设计成立于2019年,由四个志同道合的年轻人共同创立。
团队注重空间与文化、功能与艺术的多维融合,致力寻找个人与空间独有的美。
项目名称:和居
项目地址:河南省鹤壁市
室内面积:130平方米
总共费用:29万
完工时间:2022年10月
设计团队:河南肆合筑造空间设计
空间摄影:一目空间摄影
客服
消息
收藏
下载
最近






























