查看完整案例


收藏

下载

翻译
Architects:Foster + Partners
Area :47919 m²
Year :2020
Photographs :TIME OF BLUE
Landscape Consultant :Junghyun Design Build Architects Cooperation
Mechanical Engineer :Woowon M&E
Lighting Engineers :ALTO
Civil :C.G Engineering & Consulting Co.Ltd.
Energy & Environmental :Design EcoLead
Construction General Contractor :Dongbu Corporation
Construction Managers :ITM Corporation
Noise & Vibration Engineering :Korea Construction Environment
Structural Engineer :SEN Engineering Group
Transport Consultant :Shin Han Engineering & Consultant
Vertical Transportation :VT Korea
Design Team : David Nelson, Nigel Dancey, Iwan Jones, Heidi Han, Kristine Krueger, Esma Karkukli, Paola Sakits, Huasop Lee, Karyee Tam, Jeonghyun Kim, Narta Dalladaku, Carl Bonas, Olivia Johnstone
Client : Hankook Tire & Technology Co. Ltd., Hankook Tire & Technology Co. Ltd.
Foster + Partners Engineers : Piers Heath, Chris Trott, Anis Abou Zaki, Byron Mardas
Local Collaborating Interiors : Dawon Design, Emoji House
Electrical & Telecommunications : Hyeob-In Consultant
Fire Consultant : HanBaek F&C
Wind Tunnel Test : TE Solution
Media Artwork : Jason Bruges Studio
City : Seoul
Country : South Korea
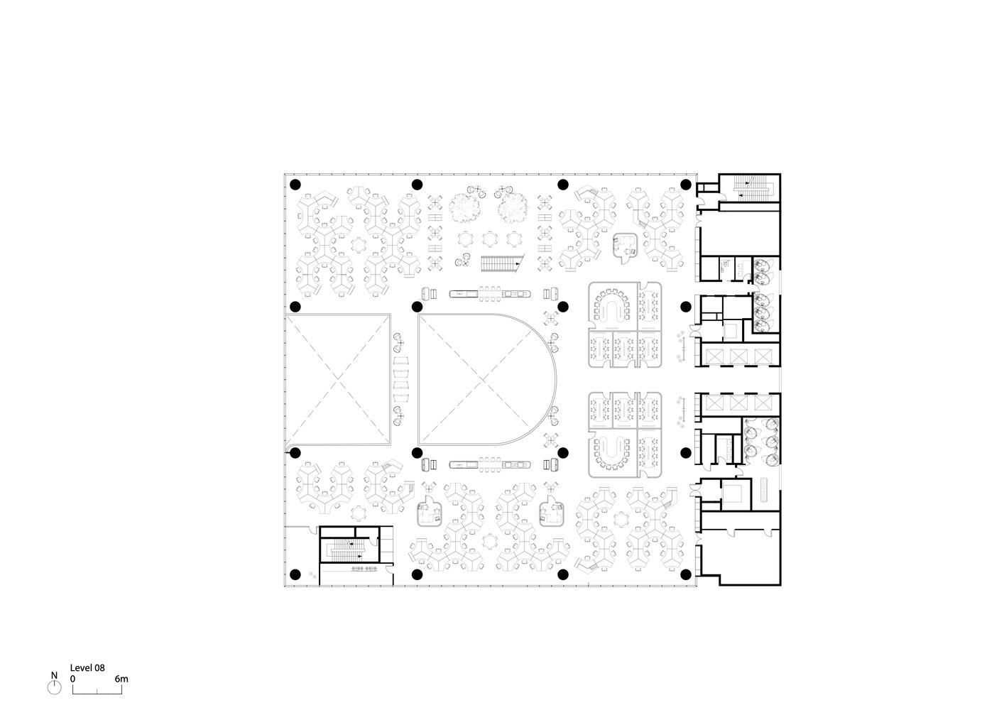
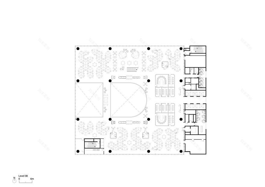
The new Technoplex reflects Hankook’s development as a global brand, echoing the excellence in engineering that the company represents. The ten-storey building houses the Hankook offices and its subsidiaries, alongside a state-of-the-art business centre with a 175-seat auditorium. The floorplates spiral around a central atrium, creating spaces of differing heights throughout the building. The dynamic volume generates visual connections across the different levels encouraging staff interaction, while also letting natural light deep into the heart of the building.
The atrium contains a large site-specific art installation by Jason Bruges Studio called, ‘Digital Phyllotaxy’. Visitors experience the immersive media artwork as they ascend to the main reception via an escalator. The artwork creates a visual metaphor for a tree canopy, bringing a sense of the outdoors inside the building. Travelling up through the spatial artwork, they experience evolving volumes of light, shadow and colour. The reception space includes another triptych media artwork by the same studio called, ‘Dynamic Tread’.
The building façades have been carefully designed to optimise the use of natural light. Glass louvres are wrapped around the building at varying levels of density to moderate the indoor light levels. For instance, the communal and social areas are designed to be brighter and more relaxed, while the workspaces have stricter controls on light levels complemented by an intelligent artificial lighting system. It this way, the façade responds to the activities taking place inside the building, also giving the building a unique visual identity.
Through its warm material palette, naturally lit spaces, and flexible workspaces, the design creates a positive experience for the company staff. Nature plays a vital role in the success of the workplace; indoor trees define breakout spaces on each level with greenery travelling to the top of the building. Overlooking the central atrium, they are designed for informal meetings and short breaks, while the open-plan workspaces can be configured organically to promote collaboration between different teams. The flexible layouts enable the building to adapt to changing needs over time, incorporating new ways of working as technologies evolve.
To break down the traditional hierarchical barriers and create a more egalitarian workplace, top-level executives are co-located with their teams on different levels. An executive business lounge on the top floor provides a space for company executives to meet informally, which promotes interaction between the key members and enables a more fluid flow of information within the company. The building is sandwiched by social spaces, with the healthcare facilities, staff restaurant, and gymnasium in the first basement, and a landscaped terrace and a rest area for employees on the roof. The roof garden takes advantage of unobstructed views across the Pangyo area, offering a unique space for company events.
▼项目更多图片
客服
消息
收藏
下载
最近










































