查看完整案例


收藏

下载
项目坐落于比利时佛兰德布拉班特省格里姆卑尔根市的 Humbeek 小镇,Brussel-Scheldt 海上运河贯穿了整座小镇,将小镇一分为二。
在布满了独特住宅建筑的河岸上,一座全新的小房子完美融入周边环境中,俯瞰着运河的美丽景观。
为了强调出建筑与运河的关系,设计借鉴了原有建筑的空间结构,重新定义了室内与室外之间的关系。
A small residence is inserted with originality among the houses overlooking the Brussel-Scheldt Maritime canal that splits the small town of Humbeek, part of the municipality of Grimbergen, in the province of Flemish Brabant in Belgium. In emphasizing the relationship with the canal, the project of this house draws upon an original spatial configuration based on the definition of a new relationship between the inside and outside.
▼项目概览,overall of the project
Humbeek 运河住宅由 Farris 工作室设计建造,它取代了场地上原有的建筑,以谦逊的姿态融入到面向运河一侧的住宅建筑环境中,充分利用了场地上的可建造面积,同时也顺应了周围的山墙屋顶景观。不仅如此,本项目还展示出一种传承城市文脉的全新方式,以优雅的姿态发挥出地块的潜力,重新定义了房屋的使用条件。
Designed by Studio Farris, Humbeek Canal House was created to substitute a pre-existing building and makes the most of the available surface area by respectfully placing itself within the profile defined by the row of residential buildings facing the canal, complying to the surrounding gabled roofscape. But the elegant adaptation to the urban context is enriched by new solutions, which extend the potential of the lot and redefine the conditions of use of the house.
▼运河视角,viewing the house from the canal
▼街道视角,viewing the house from the street
纵观面向运河的其他小住宅,这些建筑的设计大抵没有发挥出临水的优势,甚至拒绝与公共空间和室外空间产生联系。因为对于传统的住宅布局来说,生活区一般设置在一楼,高大的开窗需要用窗帘遮蔽,以保护室内空间的隐私。面对这种情况,设计团队将重点放在重整空间的体量和分布上,部分原有空间被清除,并将原本位于底层的起居室与位于上层的睡眠区颠倒过来,进而重新定义了室内外的边界。
The other houses facing the canal do not exploit the presence of the waterway, denying any opportunity to relate to both the public dimension and the view of outdoor space. The traditional layout of houses in fact has the living quarters on the ground floor, with high windows protected by curtains for privacy. Studio Farris then worked on the volume and distribution of space, emptying part of the original envelope, reversing the program by placing the living area upstairs and the sleeping areas on the ground floor, working on a careful redefinition of the boundaries between indoors and outdoors.
▼分析图,diagram gif
如果将房屋后部的高度充分利用起来,那么建筑师就可以为住宅面向运河的立面塑造出更多变化。建筑向后退去,形成有组织的内向型立面,通过体量减法创造出全新的开放空间。最终,Farris 工作室在本项目中向人们呈现出一种令人意想不到的空间布局,尤其是位于一层的入口庭院,它不仅能够作为街道和住宅之间的空间过滤器,同时还与住宅后部的小花园形成完美的呼应。
If in the rear the house uses the full height allowed, it is on the front that the outline of the building is changed. The building recedes, resulting in an introverted facade that is organized around a new open space created by the volume subtraction. The project by Studio Farris thus determines an unexpected spatial layout consisting of an entrance courtyard on the ground floor, which acts as a filter between the street and the house, matched by a small garden at the back of the house.
▼主入口,main entrance
▼主入口立面夜景,night view of the front facade
入口庭院的灵感来源于“日式庭院”,Giuseppe Farris 回忆起他在威尼斯 IUAV 大学学习期间仔细研究的 Carlo Scarpa 作品时说。这里是一座小型秘密花园,隐藏在将它与河滨道路隔开的门后,等待着人们的探索与发现。庭院内,树木带来了自然的氛围与温暖的尺度感,为一楼的两间卧室营造出宁静亲密的环境,卧室的其中一间面向入口庭院,另一间则享有后院的优美景观。
It is a sort of “Japanese courtyard”, says Giuseppe Farris, recalling the work of Carlo Scarpa that he carefully investigated during his studies at IUAV university in Venice. The idea is that of a small secret garden, to be discovered beyond the gate that separates it from the road along the canal. In the courtyard, a tree introduces a natural feel, a sense of warmth and proportion. The two bedrooms located on the ground floor also benefit from this quiet and intimate condition. One opens directly onto the courtyard, the other overlooks the backyard.
▼入口庭院,entrance courtyard
▼由入口庭院看运河,viewing the canal from the courtyard
▼庭院细部,detail of the courtyard
入口庭院还有助于增强底层与上层之间的空间连续性,将私人空间与公共生活区联系在一起。从入口庭院进入室内后,可以直接通过楼梯登上二层生活区,在这里,居住者可以欣赏到美丽的运河景观。突出的露台成为客厅空间的外部扩展与延伸,为室内引入了新鲜的空气与充足的自然光线。起居区的流动氛围向内继续延伸到餐厅,到达房子的后部,即可以俯瞰后院景观的厨房。
The courtyards also help to determine a spatial continuity between the ground floor and the upper floor, where the living quarters are arranged. The staircase that can be accessed from the entrance courtyard leads to the upper floor and unfolds adjacent to the entrance courtyard, leading to the discovery of the canal view. At this point, the living room projects and expands to the outside through a terrace that brings air and light inside. The living area continues into a dining room and, having reached the rear of the house, into the kitchen overlooking the second courtyard.
▼二层生活区,living space on the upper floor
▼室外露台成为客厅的延伸,the outdoor terrace becomes an extension of the living room
▼一体化家具橱柜,integrated furniture cabinet
▼楼梯入口与过道,entrance of the staircase and the hallway
▼露台入口,entrance of the terrace
室内外空间以及庭院之间的紧密联系,使上下两个楼层流畅地连接在一起,同时为住宅内部梳理出极具连续性的空间序列,并在每一个空间节点展示出室内外之间的新关系。在意大利建筑师 Giuseppe Farris 的领导下,设计团队以现代的建筑语言表达了他们对住宅设计主题的反思,原本的小住宅经过重新规划与布局,如今则可以充分满足当代生活的需求。
The relationship established between the interiors, the courtyards and the outdoor spaces helps to define an ideal connection between the two floors and to give the entire intervention a spatial continuity that reveals at every turn a new relationship with the outside. With this project, the studio directed by Italian architect Giuseppe Farris confirms its ability to reflect on the subject of residential design by developing solutions that draw on the vast repertoire of modernity, reconfiguring it to meet the needs of contemporary living.
▼卧室入口,entrance of the bedroom
▼卧室,bedroom
除去本项目外,Farris 工作室还于近日完成了 Buysse & Partners 新总部的设计,该总部坐落于由 Leon Stynen 于 1963 年设计的、堪称现代主义标志作品的 BP 大楼中,项目内容涉及到 BP 大楼中某整层的改造与翻新。此外,Farris 工作室还完成了 Zottegen 中心某街区的再生项目,以及安德莱赫特的某大型住宅和公共项目等。
Studio Farris Architects recently completed the new Buysse & Partners Headquarters as a renovation of an entire floor of the BP Building in Antwerp, Belgium, a modernist icon designed by Leon Stynen in 1963. The studio is also finalizing a project for the regeneration of an entire block in the center of Zottegen and a large residential and public program in Anderlecht.
▼浴室,bathroom
▼夜景,night view
▼总平面图,master plan
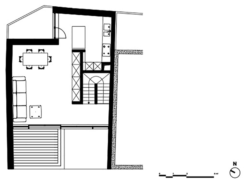
▼底层平面图,ground floor plan
▼二层平面图,upper floor plan
▼剖面图,sections
Project name: Canal House Humbeek
Location: Humbeek (Belgium)
Architect: Studio Farris
Client: Private
Contractor: KLOBO
Schedule Schematic design start: Nov 2015
Construction completion: Feb 2020
Finishes and furniture completion: Jan 2022
Project data:
lot size: 89 square meters
ground floor area: 73 square meters
upper floor area: 62 square meters
Materials Facade: white bricks (Desimpel)
Windows: Black aluminium
Floors at upper level: wood
Floors at ground level: ceramic tiles
Photographs: Koen Van Damme, Martino Pietropoli
Press office Cultivar
客服
消息
收藏
下载
最近


























