查看完整案例


收藏

下载
金融集团Buysse & Partners的新总部位于比利时安特卫普著名的BP大楼内,该大楼由Leon Stynen于1963年设计。本项目为Studio Farris Architects事务所为B&P总部进行的室内设计。设计以办公室中的居家生活为主题,充分利用建筑的大面积开窗,以促进空间关系以及空间中的视觉关系,同时利用饰面材料营造出统一和谐的空间氛围,与现有建筑的宏伟比例形成鲜明的对比。本项目为Studio Farris Architects事务所与建筑师Stynen创造了一场超越时空的对话,创新的室内设计为这座代表了比利时现代主义建筑的地标大楼注入了新鲜血液。
The new headquarters of the financial group Buysse & Partners are accommodated inside the famous BP Building in Antwerp, Belgium, designed by Leon Stynen in 1963. Author of the sensitive renovation is Studio Farris Architects. The theme of the domesticity of the office space, which distinguishes this new project by Studio Farris Architects, is achieved through an interplay of openings and relationships between the rooms and through the use of materials and finishes that act as a counterpoint to the imposing structure of the existing building. The encounter with Stynen’s architecture allows Studio Farris Architects to create a sort of long-distance dialogue that gives new voice to the innovative project, an icon of modernity in Belgian architecture.
▼大楼外观,exterior view of the BP Building © Koen Van Damme
室内设计的核心理念旨在寻求结构合理性与材料敏感性之间的平衡,以明确严谨的几何逻辑为依据对办公室进行重新规划与布局。在这个面积超过800平方米的空间中,设计师成功地营造出具有居家氛围的非凡工作空间。办公室所在的BP大楼坐落在历史城区的外围,处于Jan Van Rijswijcklaan路和Camille Huysmanslaan路的交汇处,并且非常靠近R1环路,它既是20世纪比利时最伟大的建筑师之一Leon Stynen(1899- 1990)的杰作,也是现代、创新与优雅的象征。在本项目中,建筑师Giuseppe Farris增强了建筑的原有结构,利用悬臂梁以及钢索悬吊起一个全新的立面网格系统,其中悬臂结构是由建筑顶部的两根主梁,以及之上的九根横向梁共同构成的,结构的荷载依次向下传递最终由建筑的钢筋混凝土核心筒释放到地面。这种改造方式为建筑的所有楼层提供了良好的视觉通透性与灵活的布局可能。
Balancing structural rationality and material sensibility, an explicit geometric matrix guides the organization of the new offices inside an iconic building of Belgian modernism. A sense of domesticity of the workspace reinterprets an extraordinary work, on over 800 square meters of surface. It’s the new headquarters of Buysse & Partners in Antwerp, Belgium, completed by Studio Farris Architects inside the famous BP Building, built in 1963 by Leon Stynen (1899- 1990), one of the greatest Belgian architects of the 20th century. The BP Building is located outside the historical city center, at the corner of Jan Van Rijswijcklaan and Camille Huysmanslaan, very close to the R1 ring road. An icon of modernity, innovative and elegant, it is the object of a renovation by architect Giuseppe Farris that enhanced the original structural design of Stynen. The cantilevers and the grid of the facade are supported by steel cables hanging from nine transverse beams placed on the top of the building that rest on the two main beams which in turn release all the weight on the reinforced concrete core. This solution provides all floors of the building with transparency and flexible distribution.
▼轴测分析图,axonometric diagram © Studio Farris
金融集团Buysse & Partners于2018年收购了BP大楼,并于2020年委托Studio Farris Architects事务所设计位于三层的执行办公室。委托内容为拆除现有的分区,并营造出一处具有家庭氛围的工作空间。为了达到这一目标,建筑师决定将整个楼层空间的通透性最大化,以全新的平面布局呼应立面的网格形式,同时为工作空间和各种休息区提供更加开敞的开放空间,从而使室内空间与外界产生强烈而持续的互动。
After purchasing the BP Building in 2018, the financial group Buysse & Partners commissioned Studio Farris Architects to design its executive offices on the second floor of the property in 2020. The project entailed demolishing the existing partitions and designing a workspace that had a home working atmosphere. The concept developed by Studio Farris for the new offices therefore led to maximizing the interaction with the exuberant transparency of the building by Stynen. The new plan layout highlights the distribution determined by the arrangement of cables on the facade and, at the same time, gives a greater openness to the work spaces and to the various lounge areas, resulting in a strong and continuous interaction with the outside.
▼前台接待,reception area © Martino Pietropoli
天花板由黑漆铝元素制成,截面为矩形的铝方管整齐地排列在一起,清晰的线条引导着人们穿过不同的房间,天花板的线条由公共区域开始,沿着建筑的长度延伸,始终于开窗的节奏保持一致,封闭的房间也采用了相同的天花板吊顶。照明系统遵循线条的方向,集成在天花板吊顶中。开放空间与交通空间采用了带有方形图案的硬木地板,这种设置并不是为了营造视觉导向性。而是为了与天花板的线条一起,在两个方向上呼应建筑的结构模数。
A ceiling made of black lacquered aluminum elements, rectangular in section and aligned, guides one through the various rooms. Prevalent in the common areas, where it runs along the length of the building, the false ceiling also extends to the closed spaces, always maintaining the correspondence with the modulation of the windows and hence of the structure. The lighting system follows the orientation of the ceiling. The flooring of the open and circulation spaces is made with a square patterned hardwood floor so as not to determine a direction to follow but rather to accommodate the structural modularity of the building in both directions.
▼开放办公区,open working area © Martino Pietropoli
在封闭的空间中,瓷砖的类型根据房间的功能而有所不同:厨房地面铺设有棋盘式瓷砖,浴室内铺设的是地铁站内常见的玻化砖,会议室内则采用了柔软的地毯。此外,设计师还按照原建筑的平面布局设置了一系列木制置物架单元,起到了分隔工作与休闲区域的功能。接待区被定义为一处自由开敞的空间,完全向户外开放。接待区同时具有休息室的功能,吧台与接待台相辅相成,共同为人们提供了一处享受美食、社交聚会的惬意休闲场所。
The tiling of the closed spaces varies according to the function of the room: checkerboard tiles in the kitchen, “metro” tiles in the bathroom, a carpet in the meeting rooms. Wooden shelving units, also which have been arranged according to Stynen’s plan layout, serve as dividers in the work and relaxation areas. The reception area defines an airy space that opens completely to the outdoors. A lounge area is located here, which is complemented by a bar and counter where one can eat and have informal gatherings.
▼休息室,lounge area © Martino Pietropoli
会议室则坐落在平面的两端,一端为带有额外休闲区的行政会议室,可供员工与客户或合作伙伴一起讨论洽谈;另一端则为一系列常规会议室,以及三间小型隔音洽谈室。巧妙的设计将“带有家庭氛围的办公空间”这个主题完美地表达了出来,为理性的空间赋予了生活气息。黑色抛光木制门框强调出不同房间之间的过渡,同时也再次强调出空间的结构模数,为空间赋予了一丝舒适与优雅的气息,增强了不同房间之间的联系与居家氛围。隔墙采用了熟石灰饰面,以一种近乎意大利建筑师Carlo Scarpa作品的敏感性重新诠释了大楼核心筒的水泥材料。
▼行政会议室,executive meeting room © Martino Pietropoli
▼会议室休息区,
additional relaxation area of the meeting room © Martino Pietropoli
At either end of the floor plan are the meeting rooms. On the one hand, there is the executive meeting room with an additional relaxation area where meetings with clients and partners can take place. On the opposite side are the other meeting rooms and three small sound-proof chat rooms. The theme of domesticity in the office space finds expression in some solutions that Giuseppe Farris has developed to give substance and materiality to a rigorous space. So the transition from one room to another is marked by a thick black polished wooden frame that, in accentuating once again the structural scheme, adds a sense of comfort and elegance which contributes to enhance the interplay between the rooms and the sense of domesticity. The same is true for the partitions, treated with slaked lime, which reinterpret, with a sensitivity close to some works by Carlo Scarpa, the materiality of the cement found in the central core of the building.
▼私人办公室,individual office © Martino Pietropoli
▼优雅理性的办公氛围,Elegant and rational office atmosphere © Martino Pietropoli
Studio Farris Architects事务所坐落于比利时,大多数项目也均位于比利时境内,这些项目的范围十分广泛,从小型住宅室内设计到大规模城市改造,而新Buysse & Partners总部的落成堪称是该事务所实践生涯中的一座重要里程碑,目前,由Giuseppe Farris领导的工作室正在进行Zottegen中心街区改造再生项目,在完成街区内的大型住宅和公共建筑后,该项目也将接近尾声。
The completion of the new Buysse & Partners Headquarters is an important milestone in the professional activity of Studio Farris Architects, which is involved in projects that range from domestic to large-scale urban transformations, many of them in Belgium where the studio is also based. At this moment, among other projects, the studio headed by Giuseppe Farris is completing a project for the regeneration of an entire block in the center of Zottegen and is finalizing a large residential and public program in Anderlecht.
▼卫生间,restroom © Martino Pietropoli
▼区位图,site location © Studio Farris
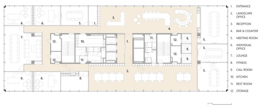
▼平面图,plan © Studio Farris
▼长边剖面图,Longitudinal section © Studio Farris
▼短边剖面图,Transverse section © Studio Farris
▼吧台平面与剖面图,bar plan and section © Studio Farris
Name of the project:Buysse & Partners Headquarters
Location:Antwerp (Belgium) Jan van Rijswijcklaan 162
Client:Buysse & Partners
Contractor:Fenixx / Beddeleem
Project schedule:
Start of design: March 2020
Start of construction: July 2020
Completion: September 2021
Project size:are: 828 square meters
Photographs:
Press office
客服
消息
收藏
下载
最近

















