查看完整案例


收藏

下载

翻译
Architects:Schemata Architects
Area :83 m²
Year :2019
Photographs :Taichi Ano
Construction :DECOR Co.Ltd
Team : Masami Nakata, Ou Ueno, Nutt Boonyaratganon
City : Chuo City
Country : Japan
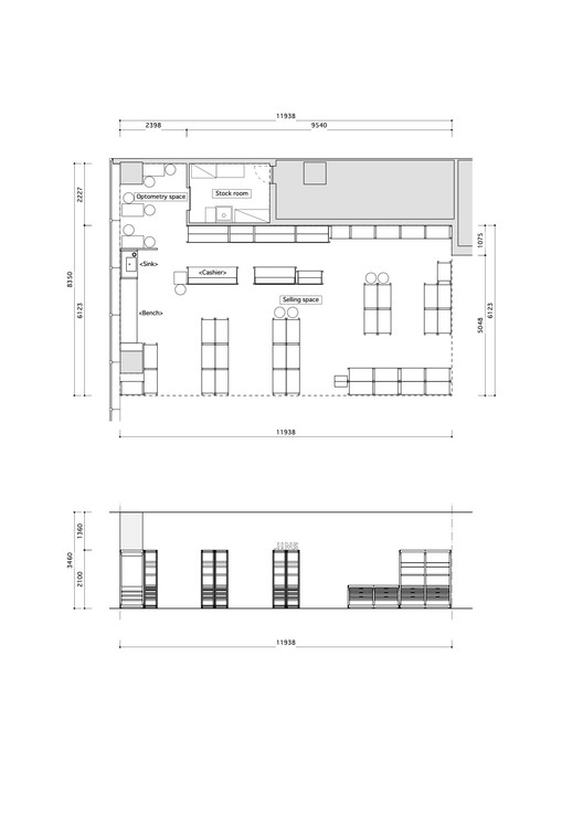
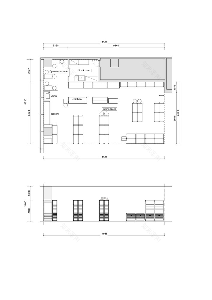
We started this project by thinking about eyeglass holders. After studying and comparing various daily goods, we determined that the Scotch-Brite Sponge Ace holds eyeglasses in the most gentle and stable way.
As for commodity shelves, we decided that prefabricated steel racks used in everyday life would be best paired with the sponges. Some of the steel racks were customized to accommodate specific functions.
This store has a considerable number of commodities on display and has a distinct presence that stands out from other stores in Ginza Loft.
▼项目更多图片
客服
消息
收藏
下载
最近





















