查看完整案例

收藏

下载

翻译
Architects:Skidmore, Owings & Merrill
Area :40 m²
Photographs :Rafael Gamo
Design Team : Paul Danna, FAIA, Design Partner. Keith Boswell, FAIA,Technical Partner. Mark Sarkisian, PE, SE, Structural Partner. Jose Palacios, AIA, Design Director. Eric Long, PE, SE,Structural Director. Marc Tanabe, Technical Designer. Brent Nishimoto, Designer. Lonny Israel, Graphics.
Local Architect : Gomez Sebastian Arquitectos S.C.
General Contractor : Copachisa Constructora
MEP : Arup
Landscape : TLS Landscape Architecture
Lighting : Luiz + Forma
City : Guadalajara
Country : Mexico
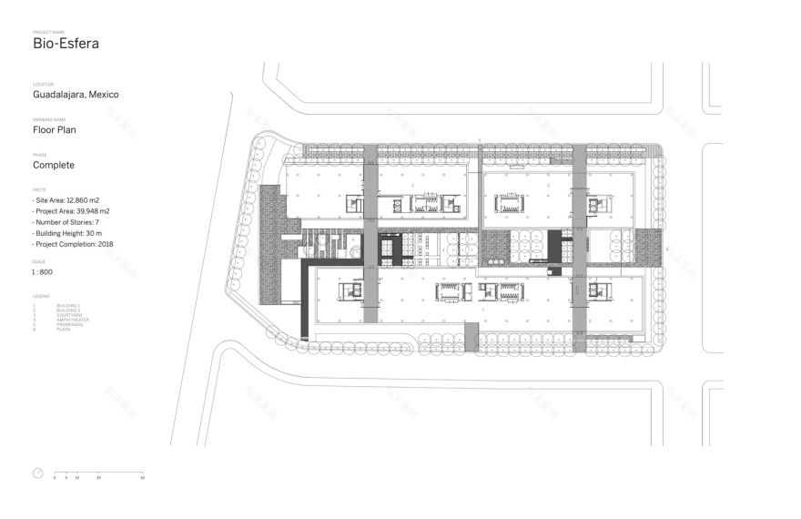
Bio-Esfera is a modern office complex and the first project completed within SOM’s Distrito La Perla Master Plan, which transforms an underutilized site in Guadalajara, Mexico, into a vibrant, mixed-use destination. The new sustainably-focused office complex provides flexible, highly collaborative, multi-tenant spaces designed specifically for the city’s thriving technology and creative industries.
Mindful of its location near Guadalajara’s historic center, Bio-Esfera comprises two building blocks organized around a central courtyard evocative of traditional public plazas. The complex incorporates a series of public open spaces—gardens, balconies, terraces, roof decks, and an outdoor amphitheater—that enhance the office experience and connect with the surrounding community.
One of the project’s most distinctive features are the façade’s concrete fins, which frame floor-to ceiling glass windows that provide unobstructed views of the landscape. The fins reduce energy consumption by filtering daylight that passively heats the space. Each fin was hand-constructed using local materials and techniques; a phased approach allowed them to be cast on-site, further reducing the project’s total energy usage and carbon footprint.
In consideration of Guadalajara’s abundant summer rainfall, ample roof gardens and terraces are designed to capture rainwater for reuse and to minimize stormwater discharge. A centralized utility plant facilitates water movement and ensures the efficient operation of building systems. Future development on the site will include potable water wells and a campus-wide wastewater treatment plant that will allow the building to operate independently of the city’s infrastructure.
The Distrito La Perla Master Plan, once realized, will provide a sustainable, highly livable urban district rooted in Guadalajara’s culture. The phased redevelopment includes five principal land uses: office, medical, retail, hotel, and housing, which are organized within a network of well-designed streets, civic destinations, public institutions, and richly varied open spaces, creating a rewarding experience for the people who visit, work, or live there.
▼项目更多图片
客服
消息
收藏
下载
最近
































