查看完整案例

收藏

下载

翻译
Architects:Skidmore, Owings & Merrill
Area :52160 m²
Year :2019
Photographs :Brett Boardman Photography
Manufacturers : AutoDesk, China Southern Glass, Europanel, Hella, Permasteelisa PTYAutoDesk
Architect of Record :Architectus
MEP Engineer :Arup
Structural Engineer of Record :Enstruct
Lead Architects : Ross Wimer, Timothy Poell, Kevin Rodenkirch, Colin Gorsuch
Design Team : Andrew Obendorf, Kevin Rodenkirch, Lucas Tryggestad, Jeffrey McCarthy, Lynn Boeke, Ross Wimer, Timothy Poell, Iana Kolev, Colin Gorsuch
Clients : Laing O’Rourke
Engineering : Bill Baker, Benton Johnson, Dane Rankin, Luke Leong
City : Sydney
Country : Australia
Located in the heart of North Sydney, 100 Mount Street is the latest addition to the city’s growing north side business district. With an innovative cross-braced exoskeleton structure and a soaring glass curtain wall, the tower celebrates Sydney’s history of excellence in architecture and structural engineering. The 35-story office tower offers panoramic views of Sydney Harbor, the Sydney Opera House, and Sydney Harbor Bridge.
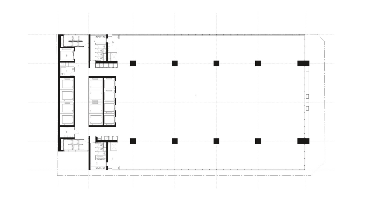
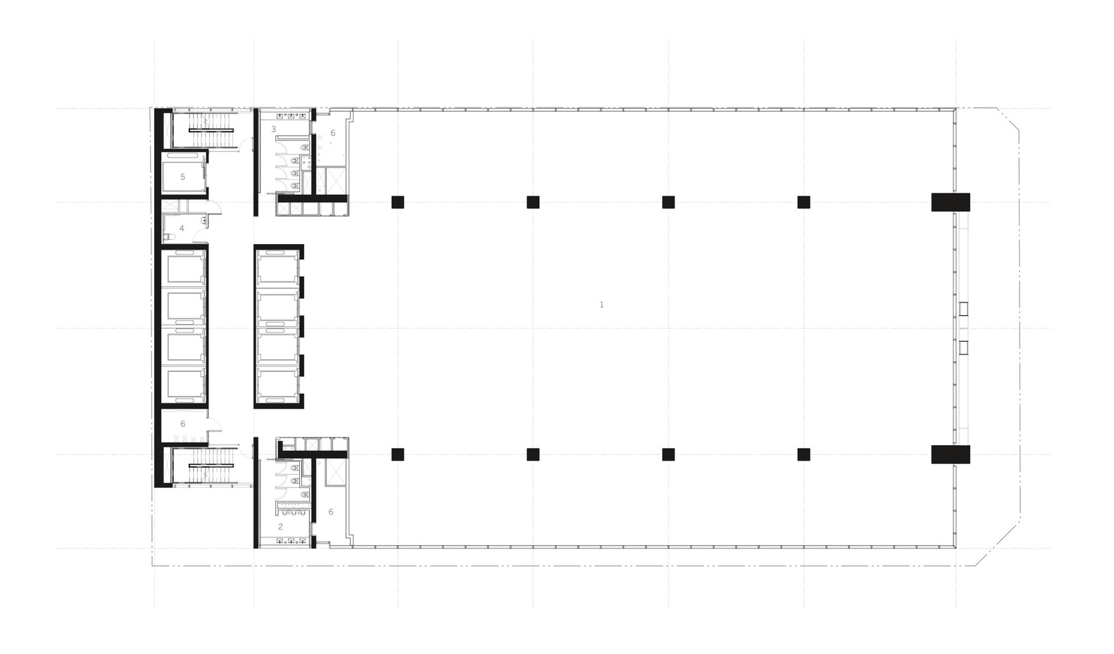
At ground level, the building’s offset core allows for a series of open-concept spaces, including a commercial lobby, café, and restaurant. A 9-meter-tall glass wall shelters these spaces from the elements. From the landscaped public plaza, with cascading steps and inclined pathways, visitors can access new retail at the lower street level. A pedestrian pathway bisects the site to connect the building to nearby public transit.
The tower’s interiors are designed to maximize daylight and open space, with 6-meter column-free zones to the north and south. Together, the offset core and high-performance closed cavity facade allow for automatic daylight control and glare reduction, while maintaining maximum transparency. Chilled beam systems are among the additional features that reduce the building's environmental footprint. An exemplar of sustainable design, 100 Mount Street is targeting 5-star ratings on the Australian Green Star and National Australian Built Environment Rating Systems.
▼项目更多图片
客服
消息
收藏
下载
最近

























