查看完整案例


收藏

下载

翻译
Architects:FujiwaraMuro Architects
Area :219 m²
Year :2019
Photographs :Katsuya. Taira
Manufacturers : Saint-Gobain, Daiko, ENDO Lighting Corporation, LIXILSaint-Gobain
Architect In Charge : Shintaro Fujiwara, Yoshio Muro
Design Team : FujiwaraMuro Architects, FujiwaraMuro Architects
City : Nara
Country : Japan
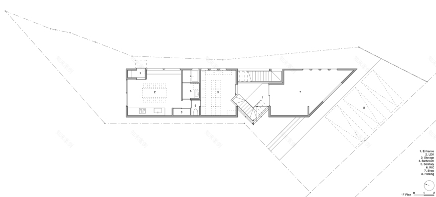
This combined shop and residence is located on a sloped, irregularly shaped lot facing a busy road. The client requested that circulation routes for the shop and residence be separate and that the design deemphasize the residence in order to create the appearance of a commercial building.
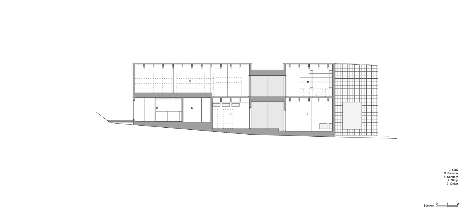
Since it is located in a residential district, our challenge was to avoid overly idiosyncratic colors and forms but still come up with a design that would make the shop noticeable to passing cars. In order to keep the scale appropriate for a residential neighborhood, we divided the building into three blocks: one on the street side containing the shop, another in the center containing a stairwell and entry hall, and a third in the rear containing the residential area.
By using the same materials to finish the front and back blocks, we created the illusion that the shop is three times as large as it actually is when viewed from the road. The entrance and stairwell are designed as a glass box between these two volumes.
From inside, this box serves to display the architectural framework, while from the outside it separates the front and back blocks, ensuring that the building does not feel oppressive while at the same time creating connectivity between the chain of three blocks.
▼项目更多图片
客服
消息
收藏
下载
最近



























