查看完整案例


收藏

下载

翻译
Architects:FRESH Architectures
Area :8500 m²
Year :2018
Photographs :David Foessel
Manufacturers : AkzoNobel, Wienerberger, Croso, Hanny, JousselinAkzoNobel
Landscaper :Base
Engineering Coordination :Elioth, Bollinger + Grohmann, Aïda, Elithis
Clients : Demathieu & Bard, OGIC
Project Leaders : FRESH Architectures, Itar Architecture
City : Paris
Country : France
In the vanguard of contemporary architecture, the new Clichy-Batignolles neighborhood (PARIS) bears the hallmark of preliminary workshops of which it resulted between the converter, the contracting authorities and the two architectural firms Itar and Fresh (agent): diversity and cohabitation are its trademarks.
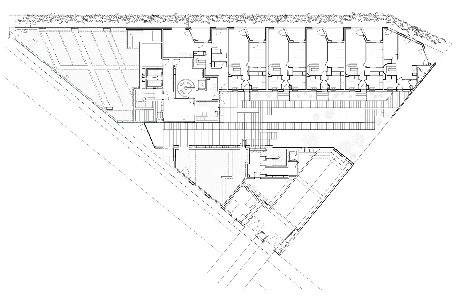
Lot O6B in the Clichy-Batignolles quarter accommodates a new XXL origami design, a product of the dialogue between the two architectural firms, Fresh and Itar, for two contracting authorities, Ogic and Demathieu Bard Immobilier, hired here to reinvent types of housing.
An architectural polyphony of 121 accommodations is available to buyers and renters in accordance with three distinct options: 3-story urban houses, a 7-story building, and a 15-story tower, in other words, 50 meters that are set up like the mast of a ship. It is possible, on each of its sides to focus the telescope on the great landscape that is Paris and its famous landmarks: on the Martin-Luther-King Park and the higher-level court to the north, on the Défense to the west, on the Eiffel tower to the south and on Montmartre to the east.
▼项目更多图片
客服
消息
收藏
下载
最近





























