查看完整案例


收藏

下载

翻译
Architects:NEXT architects
Area :260 m²
Year :2017
Photographs :Ossip van Duivenbode
Main Contractor :Bouwbedrijf J. NAT en ZN
Collaborator : Claudia Linders
City : Amsterdam
Country : The Netherlands
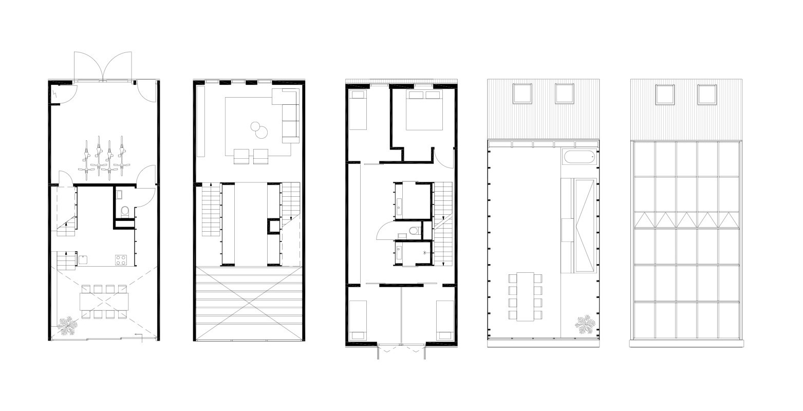
A layered house, with a special skin and a warm heart. This is the starting point for this private residence in the raw, industrial development area of Amsterdam North. House Buiksloterham consists of a single open-plan residence on four different levels.
The dwelling’s heart is formed by a wooden core that cuts through all 4 layers of the house. Within this core, all the facilities are located as well as more intimate recesses. A staircase spirals around this wooden core and connects the different spaces. A large greenhouse on the roof stands as a continuation of the outdoor spaces.
Huis Buiksloterham is a house in which the indoor and outdoor environments seamlessly merge, yet retaining the sense of warmth and intimacy so essential to a home. Nothing has been hidden away and all building materials such as pipes and cables are in full view. The use of wood and red terracotta bricks give the building a warm look and feel. The outer skin of the residence is made of black, perforated corrugated sheeting, giving it a porous character.
Moreover, the perforations create a spectacular light show, illuminating the residence as if it were a lantern. At the spot where the kitchen is located, the skin is lifted and gives way to large windows to strengthen the relation between inside and outside.
▼项目更多图片
客服
消息
收藏
下载
最近













