查看完整案例


收藏

下载

翻译
Architects:Ateliers Jean Nouvel
Area :1979 m²
Year :2012
Photographs :Erick Saillet
Lead Architect :Philippe Papy
Lighting Design :AIK, Yann Kersale
Interior Design :RBC + Jean Nouvel Design
Associated Architects : C+D Architecture, Nicolas Cregut, Laurent Duport
Clients : Franck Argentin, SCI WIP
Design : Fluides Building services: ALTO
Design Architects : AJN, C+D Architecture, Etudes Studies, Etudes & réalisation Studies & realisation, Jean-Yves Demuyter, Julien Brengues
Cost Consultant : Jean-Marie BAUDOUÏ, Beta-Concept
Synthèse : C&G, Stéphane Goavec
OPC : Arteba, Gilles Gal
City : Montpellier
Country : France
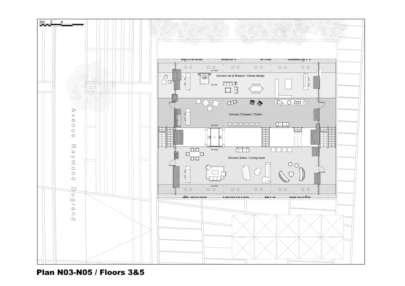
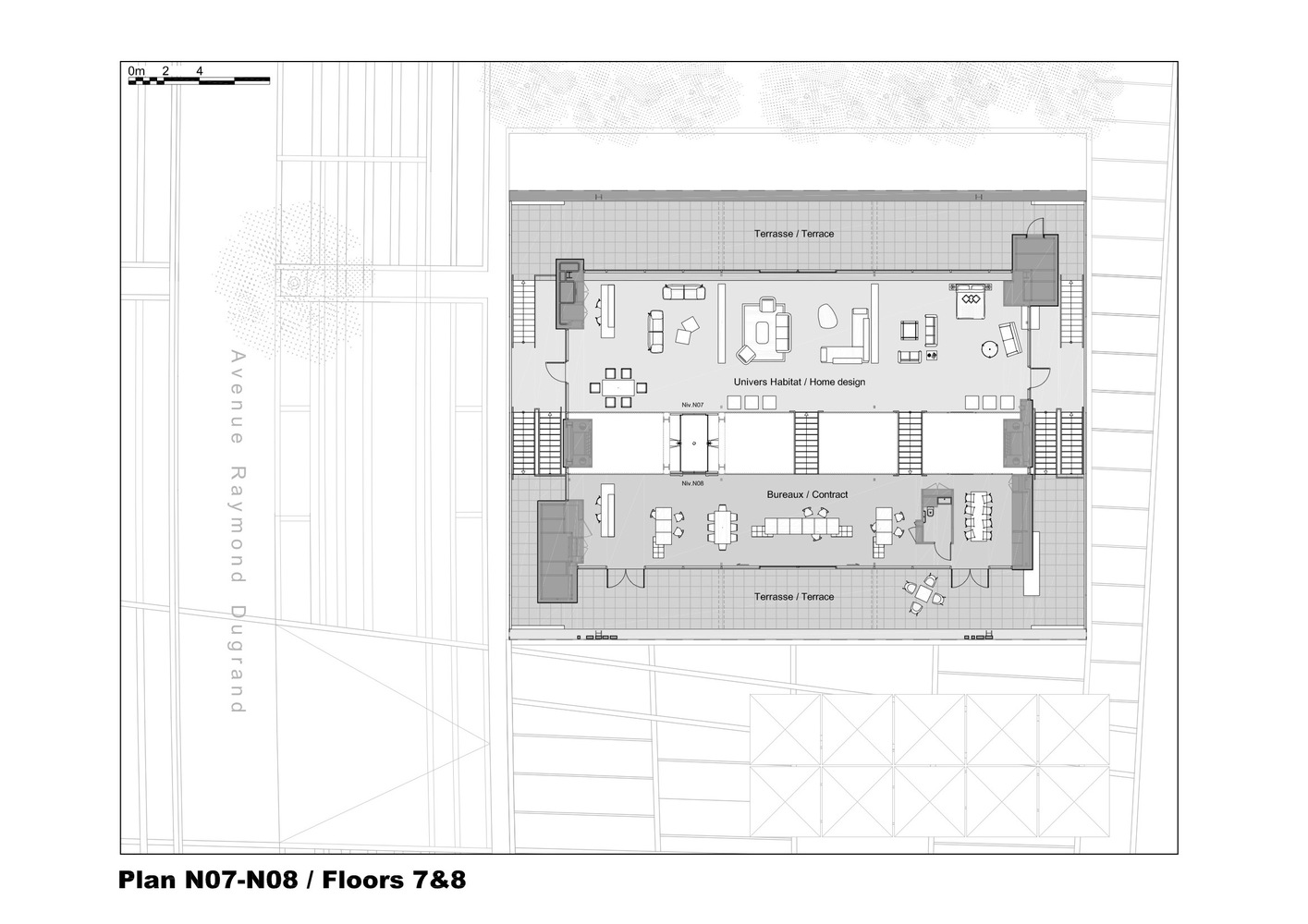
A design life style. This is the theme of the RBC Design Center, distributor of contemporary furniture whose headquarters are based in Gallargues-le-Montueux (Gard).
Located in Montpellier in the completely restructured district of ZAC Marianne, this project is a 18 meters high parralelepiped of 2 000 sq meters.
The building, designed by Jean Nouvel, has nine suspended levels organized around a showroom. Each level is devoted to an activity: kitchen, outdoor furniture, an architecture and design bookstore, a shop devoted to the object and a restaurant.
On site, ligthing detailed studies are provided by a light-designer from the drawings supplied by customers. The RBC Design Center was inaugurated in June 2012.
▼项目更多图片
客服
消息
收藏
下载
最近























