查看完整案例


收藏

下载

翻译
To Protect and to Reveal
It is perhaps the piles of amnesiac architecture in and around our cities, and the decades of accumulation which causes us to better cite the importance of lost civilizations, and of remains which are increasingly read today like true roots more than simple traces.
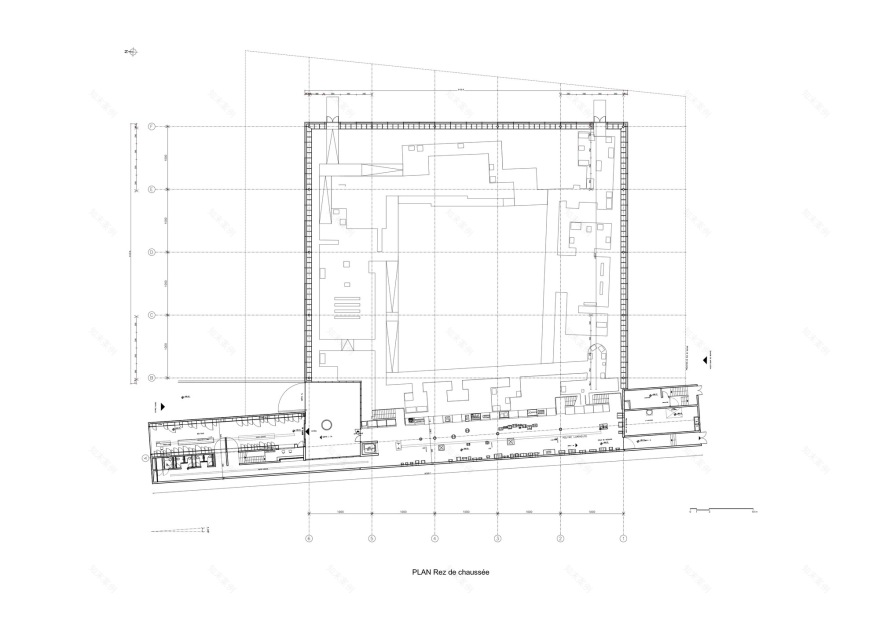
With Vesunna in Perigueux, there only remain contradictions, unknowns, and strata lost in the memory of the soil! The archaeological site of the Domus des Bosquets is the tangible illustration of the town buried underground which gave birth to Perigueux. The site needs to be revealed and protected with magnanimity, tact, clarity, and culture, by the means of architecture which would have the formidable privilege of residing next to ancient ghosts. The relationship of history with modernity is an architectural source of great poetry on the condition of being frank, sensitive and right within the legitimate act of building. A metaphysical dimension is born of the vertiginous gap between two fragments of the real confronted in the space of a few meters and in the time of a couple thousand years. Conscious of the risks of the situation, I proposed the simplest observation of protecting and revealing.
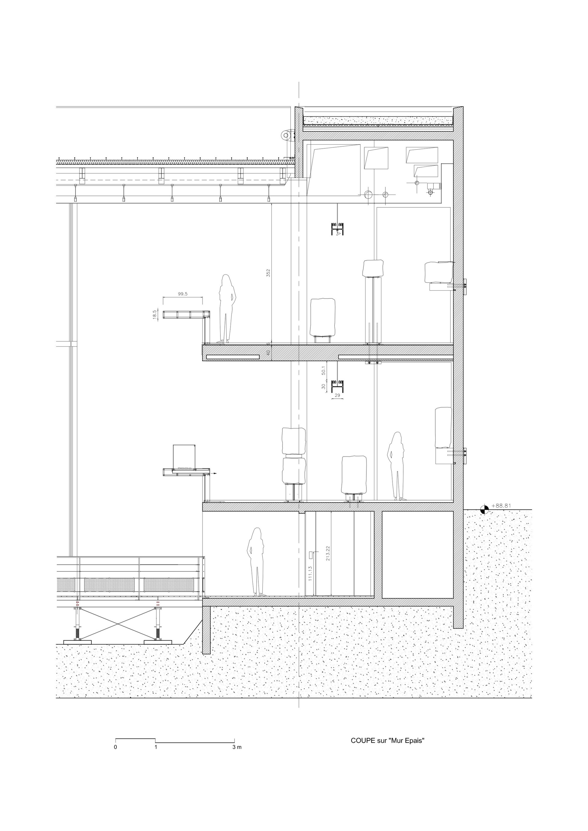
An inhabited, planted double-wall would be constructed as a screen encompassing an archaeological dig of the Tour de Vesone, the Villa des Bosquets and the 3rd century wall at the northern extremity. The villa will be covered by a big, high, simple umbrella, with the underside absolutely flat. Using calculated geometry inherited from the Gallo-Roman plan, it would be transcribed with a plan, a pretext to introducing a little elegant graphics of abstract sobriety which exclusively belong to the arts of our times. All the memories of the place will be both protected and revealed to our eyes of today.
客服
消息
收藏
下载
最近

























