查看完整案例


收藏

下载

翻译
Architects:Johan Sundberg arkitektur
Year :2021
Photographs :Markus Linderoth
Lead Architect :Johan Sundberg
Landscape Architects :MARELD Landskapsarkitekter
Main Contractor :Serneke
Builder :Simon Björk
Associate Architects : Max Germundsson, Gudmund Bladh
Project Architects : Alex Johansson, Miruna Gusoaia
Structural Engineers : Emma Persson, Lucas Alsén, WSP
City : Ystad
Country : Sweden
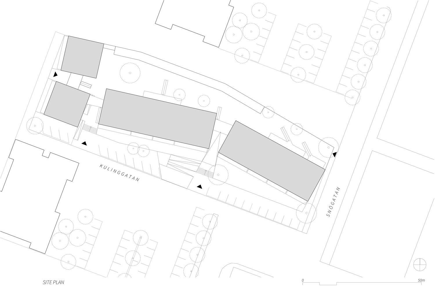
Hygrometern is located in the new district of Västra Sjöstaden in Ystad. The site, with a level difference of just over two meters, slopes towards the sea in the south with open arable land extending out to the west.
The project comprises four two-story buildings which house a total of 20 apartments, split evenly between two-room and three-room apartments. Dividing the project into a number of smaller built volumes, as opposed to gathering all the apartments into one volume, entails a number of advantages; this act of separation creates interstices that endow the common courtyard with a variety of entrances and the built volumes with a sympathetic scale. The separate built volumes are also able to exploit the site's varying contours to their advantage.
The buildings share a common material language, with balcony railings and stairs in galvanized steel, metalwork details, windows in lacquered aluminum, and facades clad in larch. This material uniformity is augmented through variations in floor plan, window placement, and interstitial outdoor spaces. The intention was to create a harmonious whole with a contemporary design language, where care at the level of materiality and detail is clearly manifested.
▼项目更多图片
客服
消息
收藏
下载
最近































