查看完整案例


收藏

下载
■ LJID - ZCID设计独家专访
办公空间将不受传统与定式的局限,更灵活的空间利用概念,通过“未来感、愉悦感、场景营造 - 效能”三大理念进行办公空间规划的思考与实践,激发创新意识的体验式办公空间。
SPACE DIMENSION
入口采用嵌入式富有景深感的设计
空间的折叠不仅给予了空间更多的层次
通过黑色艺术涂料的渲染
划开了原本模糊的办公空间
SPACE PLANNING
设计师忖量着 未来 概念
试图表达团队即将进入未来的时刻
停泊着一座形状像 卵球形 的 生态舱
地球不再适宜人们的生存
这座枢纽便会带着希望的
潘多拉的种子 前往系外探索新的居所
仿佛在计数着这一时刻的到来
巨大的建筑立柱以不锈钢材质包裹
以未来氛围消解其巨大的体量感
吊顶采用镜面不锈钢材质
以未来科技与现代美学的设计手法
EXPRESSIONS
会议区与员工活动区相融合
满足了临时与预定的不同状态
从千篇一律的格子间的区域
通过灯光变换的形式与格调
率先触达创意人群的感官体验
营造轻松愉悦的空间氛围
与多元化的社交生活场景
SPATIAL COHERENT
将新型办公理念日益深化
可洽谈-可会议 的多元场景
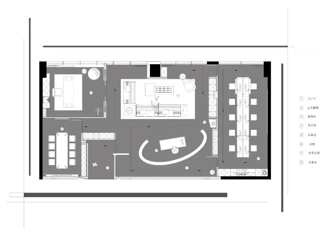
ANALYSIS DIAGRAM
客服
消息
收藏
下载
最近


































