查看完整案例


收藏

下载

翻译
Architects:B-architecten
Area :9000 m²
Year :2020
Photographs :Lucid
Collaborating Architect : Bevk Perović arhitekti
Project Team : Matija Bevk, Evert Crols, Frederik De Smedt, Dirk Engelen, Sven Grooten, Hubert Hendrickx, Nuria Júdez Gonzalo, Hans-Christian Karlberg, Olmo Peeters, Vasa J. Perovic, Christophe Riss, Daniel Rivera Pinal, Liesbeth Storkebaum, Andrej Ukmar, Domien WuytsI
City : Anderlecht
Country : Belgium
The new campus of the Erasmus Brussels University of Applied Sciences and Arts is located only a few steps away from the Dansaertstraat.
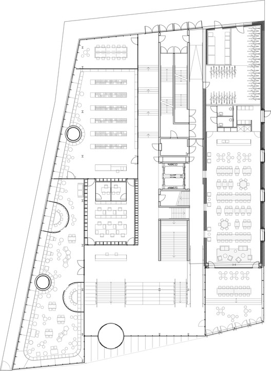
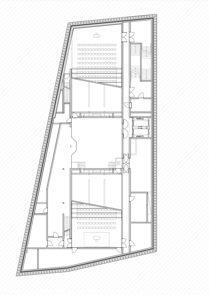
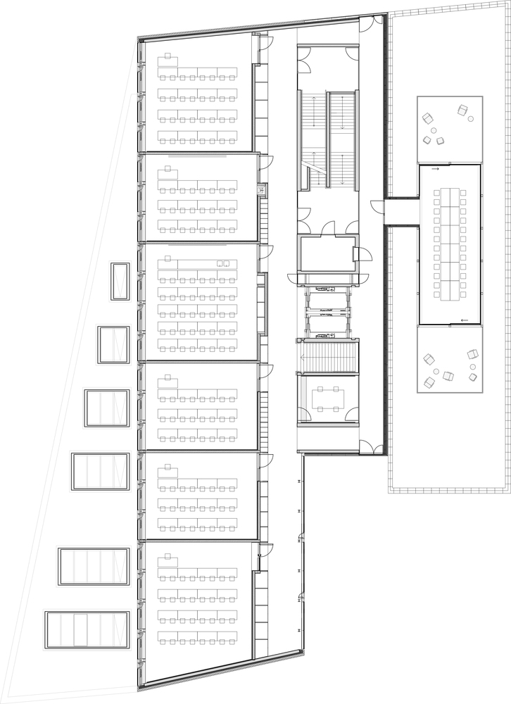
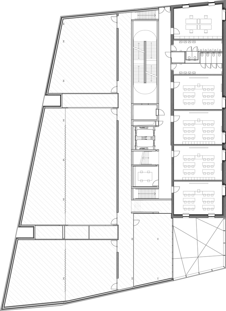
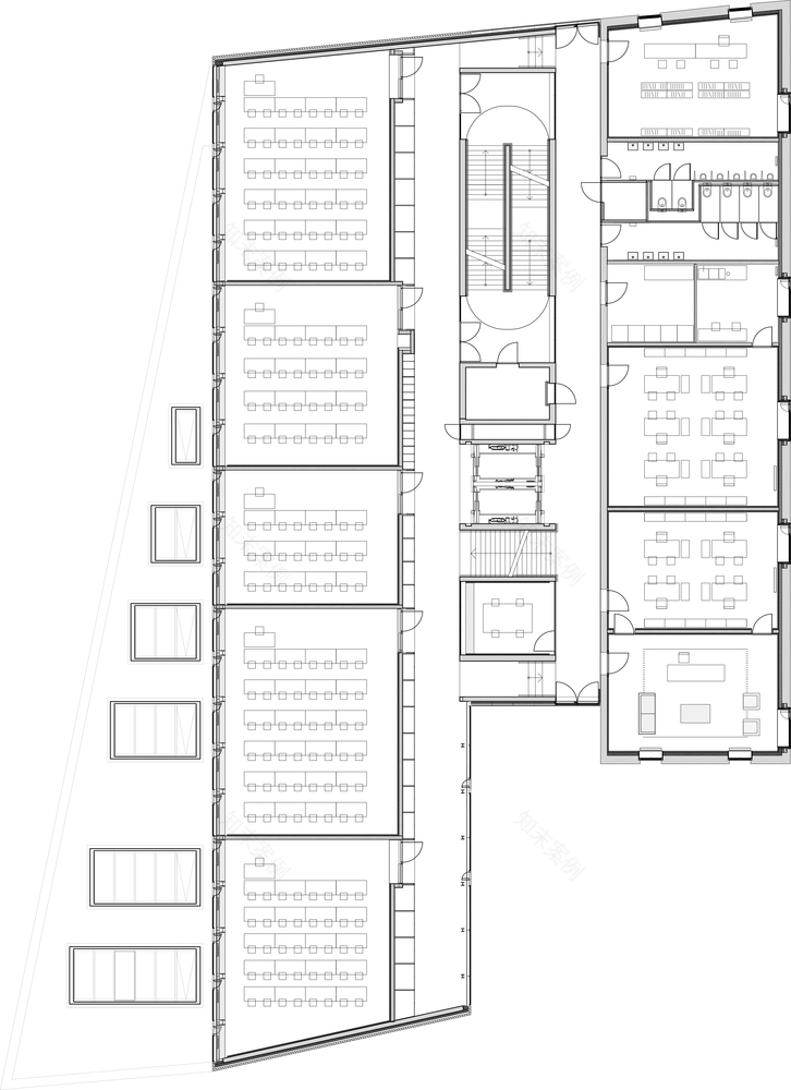
The new campus hosts more than 1000 students. The 2 auditoriums, 40 subject classrooms, the teachers’ rooms, a study landscape, a library, a cafeteria, and several sitting corners and terraces are now located in a trendy and lively city district.
The building is a prominent and transparent construction with a heavy-set finishing touch. On the ground floor, the openness is transposed by a sunken and covered recreation ground. This big interior space is connected to the square in front of the building.
Most public areas such as the students’ cafeteria, the library, the students’ administration office, and several meeting areas border the recreation ground. The building opens up towards the square and the entire neighbourhood thanks to a full glass façade.
▼项目更多图片
客服
消息
收藏
下载
最近




































