查看完整案例


收藏

下载

翻译
Architects:85 Design
Area :80 m²
Year :2017
Client : Brewman Coffee Concept
Architect In Charge : To Huu Dung
City : Q. Hải Châu
Country : Vietnam
Brewman coffee concept is a start-up coffee brand of two young people in Danang, Vietnam. They have a great love and a strong belief in Vietnamese coffee. Starting up with a small amount of money, they came to me with the desire to build a small coffee shop in an alley in the central street. They didn`t have much money. They even had to call for the co-operation from another start-up project in the fashion sector to have enough capital for the construction of the project. So in the construction process, everything must be cheap. But what they wanted in this work was the absolute impression at the first sight - small, but impressive.
The biggest question in my mind at that time was how to settle the desires of the employer in a harmonious manner while the biggest difficulty was the finance that was too little to do something strange and impressive. Therefore, in the design process, I thoroughly considered the requirements of the employer.
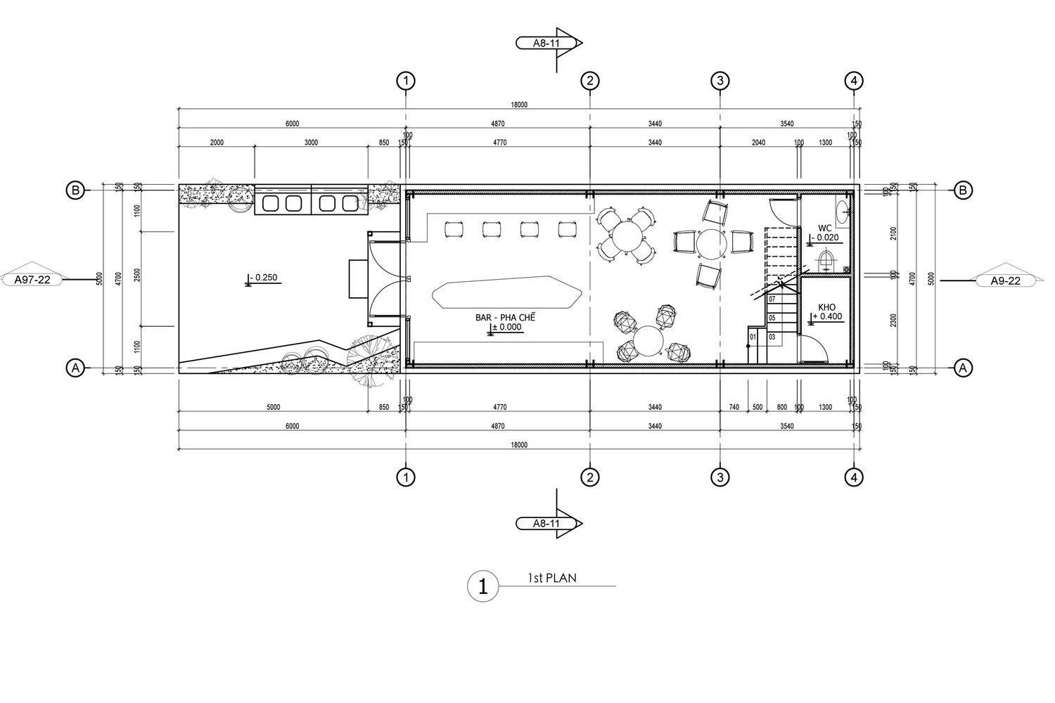
I carefully took into account the space to ensure having the sufficient space for coffee as well as for displaying hand-made fashion products. Everything was packaged in the built area of 80m2 to minimize costs. I used iron and steel structure and a lot of glass. On the first floor, surely it is the coffee shop. There is a small garden and a small Koi fish pond at the entrance. On the mezzanine, it is the space for hand-made fashion alternated with coffee tables so that customers can both enjoy coffee and look and choose a few clothes they like.
The most impressive is the glass roof through which you can see the whole sky. At night on the starry or rainy day, you will be very excited when you can watch the surrounding wonderful scenery with no limitation while enjoying coffee. However, tropical climate is the biggest problem for this project. In the summer, it will be very hot, so the glass should be treated with heat-insulating films. In addition, to be safer, I designed a mobile roof over the glass roof so that they could shield safely on the sunniest hours of the day.
▼项目更多图片
客服
消息
收藏
下载
最近

































