查看完整案例


收藏

下载
© To Huu Dung
(C)到Huu Dung
架构师提供的文本描述。布鲁曼咖啡概念是一个新兴的咖啡品牌的两个年轻人在丹南,越南.他们对越南咖啡有很深的爱和强烈的信念。从一小笔钱开始,他们来找我,想在中央大街的一条小巷里建一家小咖啡店。他们没有多少钱。他们甚至不得不呼吁时尚行业的另一个初创项目进行合作,以获得足够的资金来建设该项目。所以在施工过程中,一切都必须便宜。但是他们想要的是第一眼就能看到的绝对印象-虽然小,但令人印象深刻。
Text description provided by the architects. Brewman coffee concept is a start-up coffee brand of two young people in Danang, Vietnam. They have a great love and a strong belief in Vietnamese coffee. Starting up with a small amount of money, they came to me with the desire to build a small coffee shop in an alley in the central street. They didn`t have much money. They even had to call for the co-operation from another start-up project in the fashion sector to have enough capital for the construction of the project. So in the construction process, everything must be cheap. But what they wanted in this work was the absolute impression at the first sight - small, but impressive.
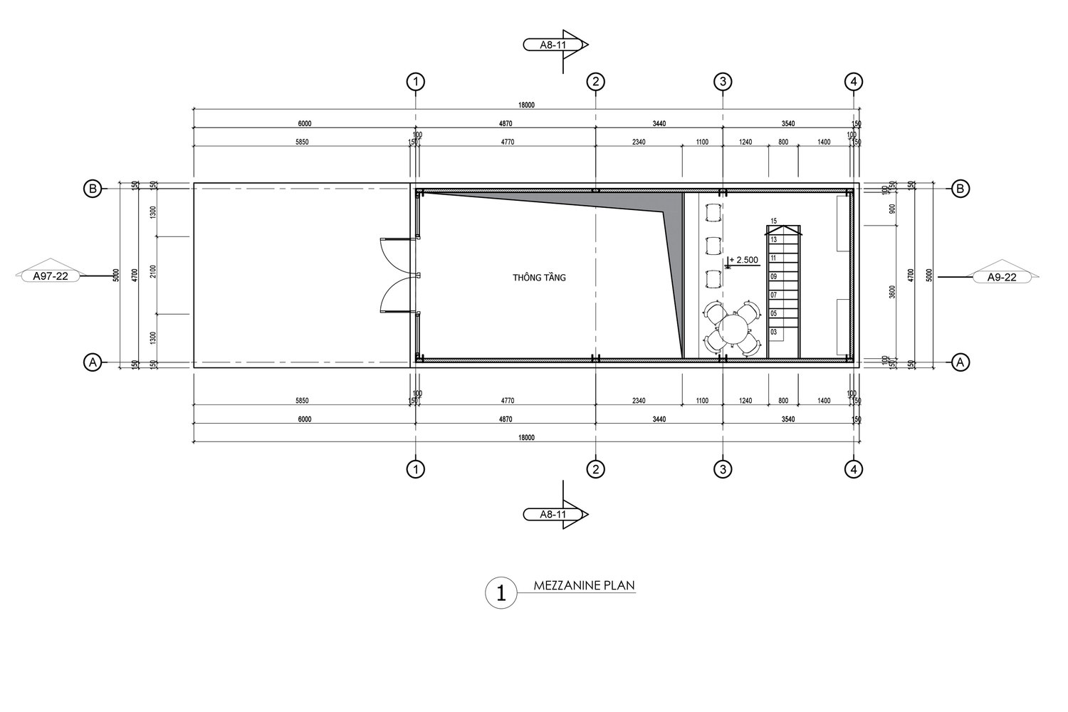
Ground Floor Plan
当时我脑海中最大的问题是如何以和谐的方式解决雇主的愿望,而最大的困难是资金太少,无法做一些奇怪和令人印象深刻的事情。因此,在设计过程中,我充分考虑了雇主的要求。
The biggest question in my mind at that time was how to settle the desires of the employer in a harmonious manner while the biggest difficulty was the finance that was too little to do something strange and impressive. Therefore, in the design process, I thoroughly considered the requirements of the employer.
© To Huu Dung
(C)到Huu Dung
我仔细考虑了空间,以确保有足够的空间咖啡,以及展示手工时装产品。所有的东西都包装在80平方米的建筑面积内,以尽量减少成本。我用钢铁结构和很多玻璃。在一楼,肯定是咖啡店。入口处有一个小花园和一个小鱼塘。在阁楼,这是一个空间,手工制作时尚与咖啡桌交替,使客户既可以享受咖啡,外观和选择一些他们喜欢的衣服。
I carefully took into account the space to ensure having the sufficient space for coffee as well as for displaying hand-made fashion products. Everything was packaged in the built area of 80m2 to minimize costs. I used iron and steel structure and a lot of glass. On the first floor, surely it is the coffee shop. There is a small garden and a small Koi fish pond at the entrance. On the mezzanine, it is the space for hand-made fashion alternated with coffee tables so that customers can both enjoy coffee and look and choose a few clothes they like.
最令人印象深刻的是玻璃屋顶,透过它你可以看到整个天空。在星空或雨天的夜晚,当你在享受咖啡的同时可以无限制地观看周围的美景时,你会感到非常兴奋。然而,热带气候是这个项目最大的问题。夏天会很热,所以玻璃应该用隔热膜处理。另外,为了更安全,我在玻璃屋顶上设计了一个移动屋顶,这样他们就可以在一天中最阳光的时候安全地遮挡。
The most impressive is the glass roof through which you can see the whole sky. At night on the starry or rainy day, you will be very excited when you can watch the surrounding wonderful scenery with no limitation while enjoying coffee. However, tropical climate is the biggest problem for this project. In the summer, it will be very hot, so the glass should be treated with heat-insulating films. In addition, to be safer, I designed a mobile roof over the glass roof so that they could shield safely on the sunniest hours of the day.
© To Huu Dung
(C)到Huu Dung
Architects 85 Design
Location 21 Thái Phiên, Phước Ninh, Q. Hải Châu, Đà Nẵng, Vietnam
Architect in Charge To Huu Dung
Area 80.0 m2
Project Year 2017
Photographs To Huu Dung
Category Coffee Shop
Manufacturers Loading...
客服
消息
收藏
下载
最近






























