知末
知末
创作上传
VIP
收藏下载
登录 | 注册有礼
知末案例   /   医疗空间   /   月子中心   /   dolmus Architekten

Terra Alta Oberkirch Maternity Hospital——温馨现代的产科空间

2017/08/27 17:59:30
查看完整案例
微信扫一扫
收藏
下载
翻译
Architects:dolmus Architekten
Area :465 m²
Year :2016
Photographs :Michael Schwiefert
Lead Architects :Gani Turunc, Cédric von Däniken
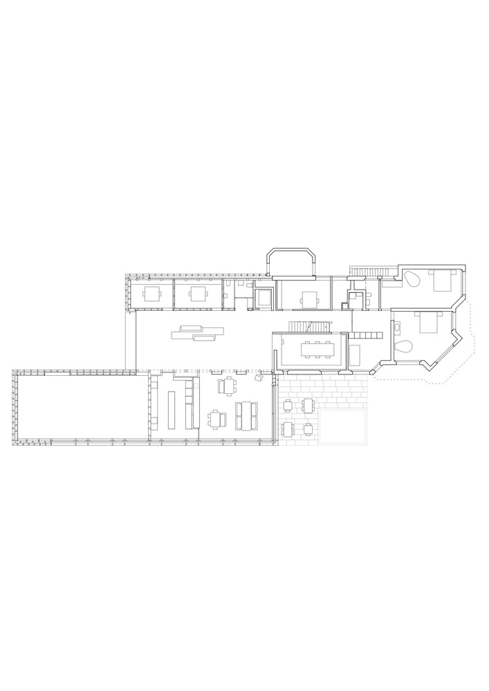
Terra Alta Oberkirch Maternity Hospital——温馨现代的产科空间-5
▼项目更多图片
Terra Alta Oberkirch Maternity Hospital——温馨现代的产科空间-7
Terra Alta Oberkirch Maternity Hospital——温馨现代的产科空间-8
Terra Alta Oberkirch Maternity Hospital——温馨现代的产科空间-9
Terra Alta Oberkirch Maternity Hospital——温馨现代的产科空间-10
Terra Alta Oberkirch Maternity Hospital——温馨现代的产科空间-11
Terra Alta Oberkirch Maternity Hospital——温馨现代的产科空间-12
Terra Alta Oberkirch Maternity Hospital——温馨现代的产科空间-13
Terra Alta Oberkirch Maternity Hospital——温馨现代的产科空间-14
Terra Alta Oberkirch Maternity Hospital——温馨现代的产科空间-15
Terra Alta Oberkirch Maternity Hospital——温馨现代的产科空间-16
Terra Alta Oberkirch Maternity Hospital——温馨现代的产科空间-17
Terra Alta Oberkirch Maternity Hospital——温馨现代的产科空间-18
Terra Alta Oberkirch Maternity Hospital——温馨现代的产科空间-19
Terra Alta Oberkirch Maternity Hospital——温馨现代的产科空间-20
南京喵熊网络科技有限公司 苏ICP备18050492号-4知末 © 2018—2020 . All photos and trademark graphics are copyrighted by their owners.增值电信业务经营许可证(ICP)苏B2-20201444苏公网安备 32011302321234号
客服
消息
收藏
下载
最近