查看完整案例


收藏

下载

翻译
Designers:SAI Architectural Design Office
Area :112 m²
Year :2019
Photographs :Norihito Yamauchi
Engineering :Ikesyo Corporation
Structural Design : Ippei Yasue
Structural Design : Ippei Yasue
City : Osaka
Country : Japan
Even in houses, where functionalism is celebrated, it seems that each space has its own purpose: to sleep, to eat, to watch TV, to read a book. Is it possible to simply assign functions and assume them? Although it is a building that we use every day, its appearance five, ten or thirty years from now will change more than we can imagine.
It is precisely because it is a house that we want to create an architecture that will be open to the many changes in our lives. When we visited the site, we were struck by the beauty of the flatland with its pleasant breezes and Mount Izumi Katsuragi in the background.
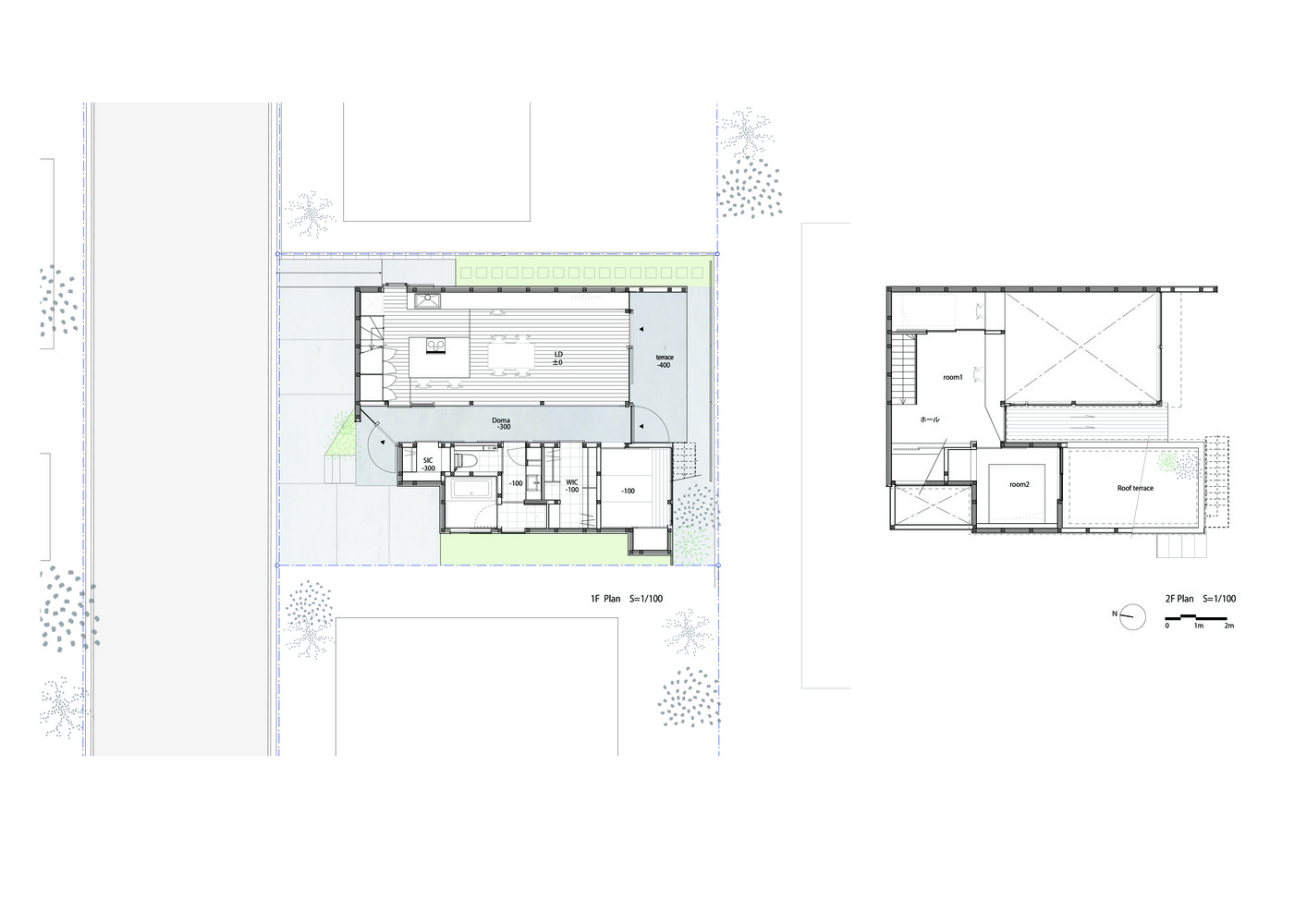
The horizontal roof extends to cover the whole house, inside and out. The maximum height of the floor, calculated from the slenderness ratio according to the specifications, ensures an air volume of 1.5 layers. The roof structure is made of LVL material, which is used for the roof structure.
The roof structure is a rectangular volume made of LVL transverse members and structural plywood, with a 2.2m cantilevered steel structure using lipped groove steel. The facade is divided into upper and lower sections to create a blind fence, which allows the view of Mt. The windows, flooring, furniture and walls are designed to make it easy for visitors to come and go as they please.
The space is designed to be a place where people can sit, talk, study, store, lie down and enjoy the outside, crossing the large spatial scale that covers the whole space and the physical and furniture scale that accompanies human activity. A space that allows for a variety of activities and a choice of places, creates a comfortable distance and time for each other, and leads to a richness of life even in the face of unpredictable changes.
▼项目更多图片
客服
消息
收藏
下载
最近






















