查看完整案例


收藏

下载

翻译
Architects:ATIES, SAI Architectural Design Office
Area :582 m²
Year :2022
Photographs :Norihito Yamauchi
Structural Design :MasMas Co., Ltd.
Landscaping :Diax Co., Ltd.
City : Higashihiroshima
Country : Japan
@media (max-width: 767px) { :root { --mobile-product-width: calc((100vw - 92px) / 2); } .loading-products-container { grid-template-columns: repeat(auto-fill, var(--mobile-product-width)) !important; } .product-placeholder__image { height: var(--mobile-product-width) !important; width: var(--mobile-product-width) !important; } }
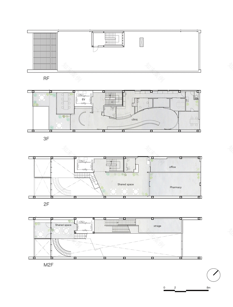
KOKAGE" is a project that proposes a new form of local medical care and community welfare in Kure City, Hiroshima Prefecture, with a "system of exchange where everyone can easily gather" that transcends social barriers, and is led by a medical corporation with the philosophy of a "community symbiosis society" that allows people of all ages and both sexes to live their lives as they see fit.
This project, the first of its kind, is a "medical mall" located in the central area of Kure City, surrounded by public facilities such as post offices and hospitals, and a 5-minute walk from JR Kure Station, where the flow of people is relatively high. It was also required to have a facility that could provide mental health treatment and self-reliance support to youth and their families, and also have an information dissemination function open to the community, encouraging various forms of rest and interaction.
Inspired by Kure's "unique culture of interacting in the streets," the architecture creates depth in the city by weaving three-dimensionally through the street space where anyone can freely enter and leave the building. The aim is to create a "shady" urban space where people can rest their legs in a natural and comfortable place by increasing the degree of freedom of space.
In order to create as many different flows of people as possible, we secured sufficient "pull" (external space) in front of the building and planned a layout that draws the street into the interior of the site. In addition, in order to create an open space inside the building, four slabs are skipped and connected by vertical flow lines, creating a flow of people up and down, and leading to the rooftop. A lattice of slabs rises up at the uppermost level and wraps this three-dimensional space with "shade".
These four slabs, which have subtly different functions such as activity, rest, waiting, and chatting, can be used freely by medical facility users and anyone. We believe that the creation of an environment that will help curb the recent slump in physical activity, which has been spurred on by the development of the Internet environment and the mandatory refraining from going out, is essential for a society in which future "medical care" will go beyond mere treatment and continue to relate to people.
▼项目更多图片
客服
消息
收藏
下载
最近


























