查看完整案例


收藏

下载

翻译
Architects:depA architects
Area :1300 m²
Year :2021
Photographs :José Campos
Lead Architects :Carlos Azevedo, João Crisóstomo, Luis Sobral, Francisco Pinto
Ited Electrical Safety : CPX
Climatization : MSE
Structures : A3R
Hydraulics : Celina Cabete
City : Oporto
Country : Portugal
Rua de Pinto Bessa, located on the eastern edge of the city of Porto, was planned at the end of the 19th century as a structuring road that could connect the consolidated city to the new main train station of the city, Campanhã. Due to its importance, its generous profile aspired the construction and densification in height of the two fronts. This housing block aim to respond to this urban intention. Occupying an awainting plot of land at the street, it extends along the entire length of the plot, taking advantage of the height defined by the visible buildings and creating a new facade metric that respects the vertical proportion of the surrounding buildings.
The building has a rough and honest design that highlights its own structure, interleaved with glass panes that aim to maximize the entry of light and expand the chances of interior occupation. At the limit one can consider that what is designed is mainly the bones of the building for what a interior layout - that can be changed - is proposed. The facades react to the surroundings and to the sun exposure. To the north, facing Rua de Pinto Bessa, there is a structural grid in exposed concret that rests in a base in softened concrete. The last floor assumes the exception and transition between neighboring buildings. To the south – facing the courtyard - the large glazed windows that allow to take advantage of the sunlight are juxtaposed with a metal structure that joins the guardrails of variable depth. These grids, which generously extend the living space to the outside, create an expressive play that maximizes the solar capture of the outdoor area and controls the sun exposure of the interior spaces.
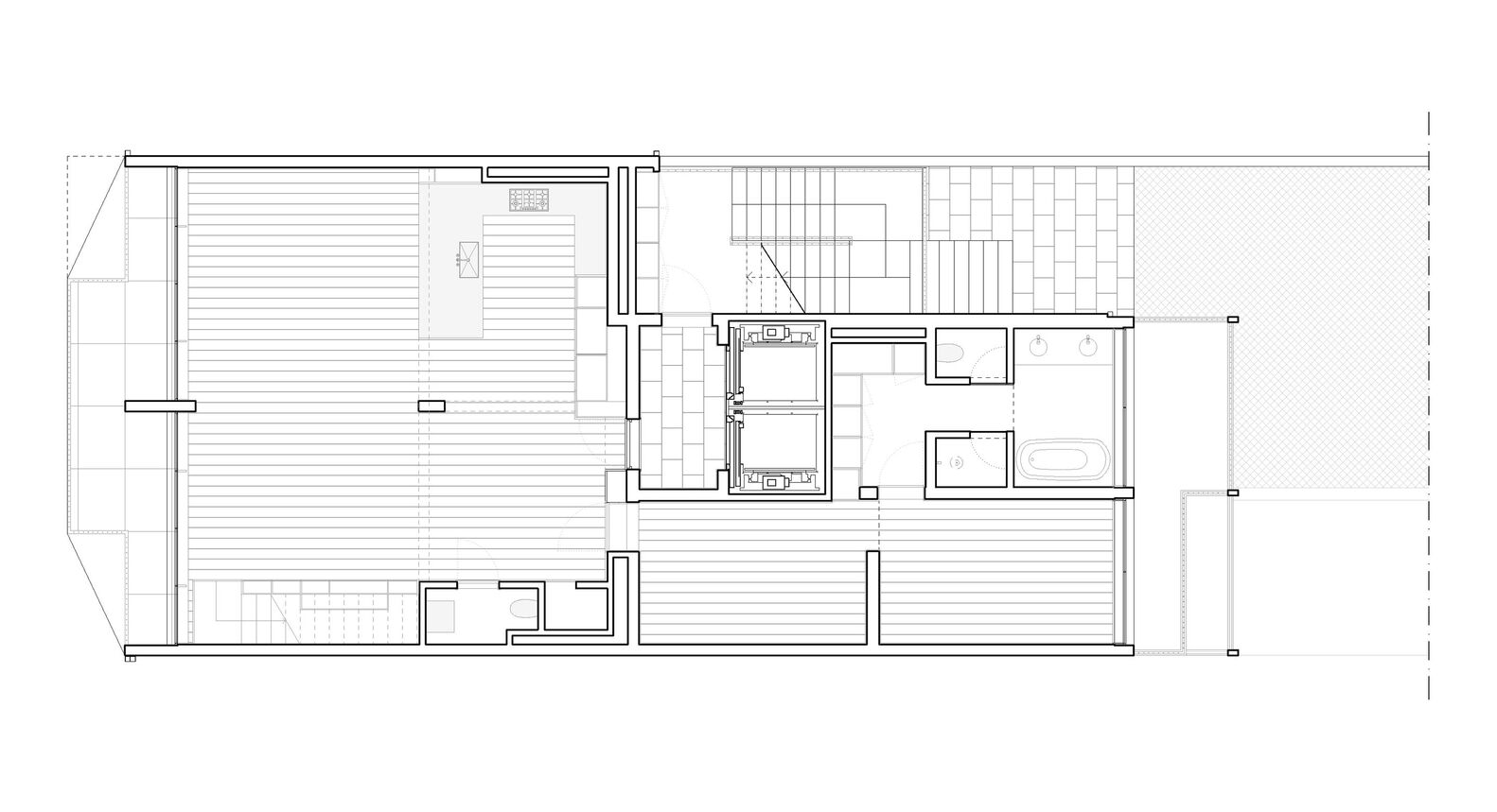
Over the 7 floors there is the possibility of housing 17 apartments, 3 on each standard floor, with two exceptions being the lower and upper limits of the building. The interior layout that is associated with the structural grid is assumed as ephemeral, offering the building the possibility of adjusting to new future configurations.
▼项目更多图片
客服
消息
收藏
下载
最近





















