查看完整案例


收藏

下载

翻译
Architects:Meyer-Grohbrügge
Area :2200 m²
Year :2018
Photographs :Thomas Meyer-Ostkreuz
Lead Architect :Johanna Meyer-Grohbrügge
Architects : Jenny Kurth, Thibault Trouvé
City : Chemnitz
Country : Germany
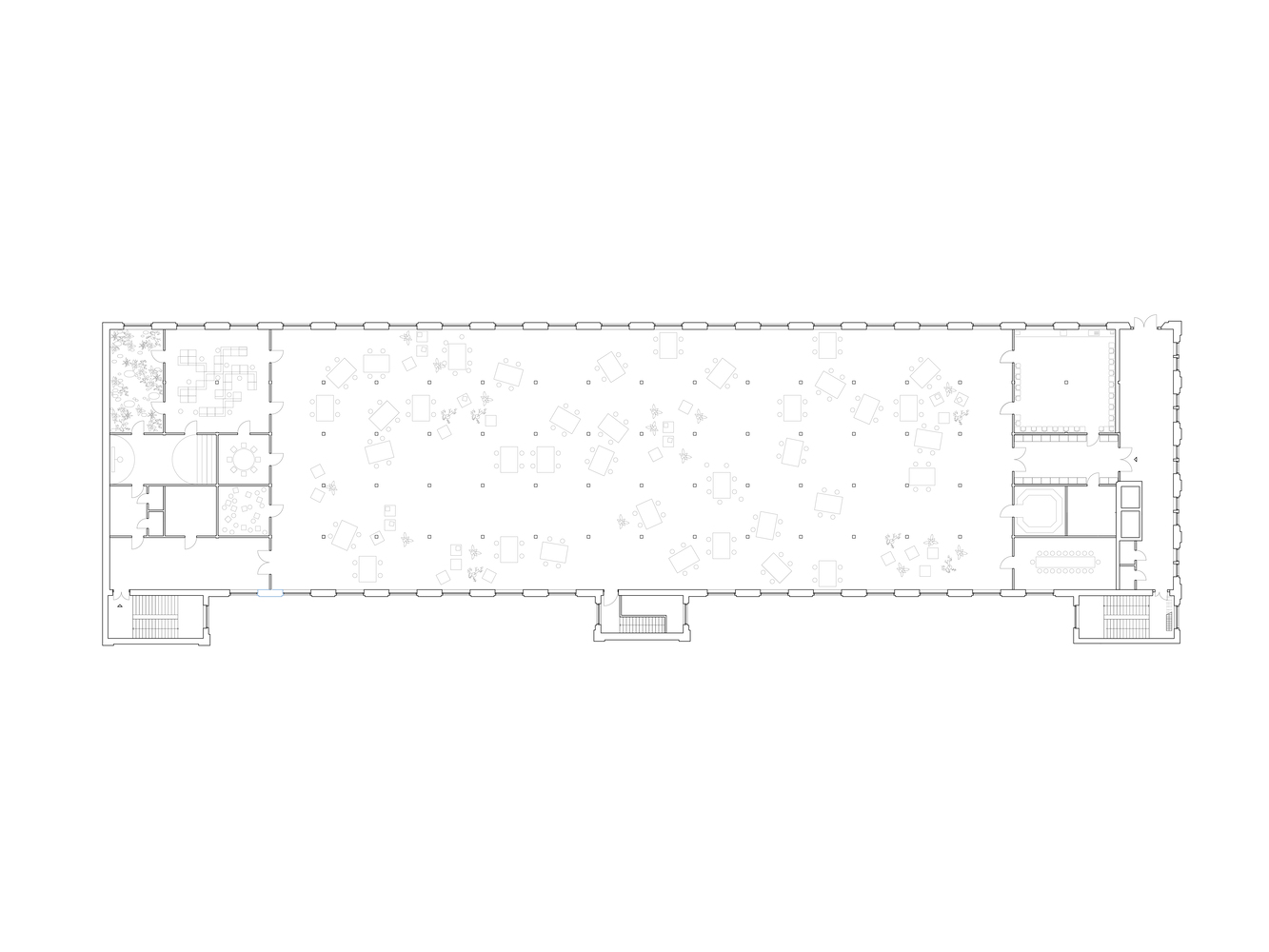
The project is part of the greater development of a former textile factory in Chemnitz, where the fast-growing start-up company Staffbase with branches all over the world still keeps its main headquarter. The renovation and redesign of the new office space aim to work with minimal interventions in the beautiful original space, yet make it work as a functional office.
The overall architectural strategy can be described as a defense against unnecessary interventions and material expenditure in combination with targeted identity-creating and consolidating measures. This was really the main challenge: to avoid adding material as much as possible and find low tech solutions that work
Future workspaces require flexibility, but also offer different high-quality spatial situations for communication and concentration. The impression of this spectacular 2200m2 big open space was meant to be kept, so any necessary closed rooms, such as service spaces and meeting rooms were pushed to each side.
One of the few new elements, a lighting system, plays with the grid to add a new direction and dimension to the space. On each side, a maze of meeting, working, and relaxing rooms were created, each of them differently themed and with a distinctive atmosphere and identity.
▼项目更多图片
客服
消息
收藏
下载
最近




















