查看完整案例


收藏

下载

翻译
Architects:Srijit Srinivas - ARCHITECTS
Area :1654 m²
Year :2022
Photographs :Justin Sebastian
Lead Architect :Srijit Srinivas
Design Team : Remya Raveendran, Sriya S., Deepika
Text : J. George
City : Idukki Township
Country : India
Resort At Panchalimedu - The Resort is located in the hill station of Panchalimedu in Idukki district, with close proximity to the historically significant pond in which Panchali is believed to have bathed. The design had to overcome the challenges of steep terrains, budget constraints, and local climactic characteristics of strong winds & rainfalls. The design response was one of sensory richness emanating from tranquil spaces and an original architectural style of chic ethnic heritage but with all the trappings of modern living. The use of raised circulation paths to overcome the undulating terrain below makes the design very friendly to guests.
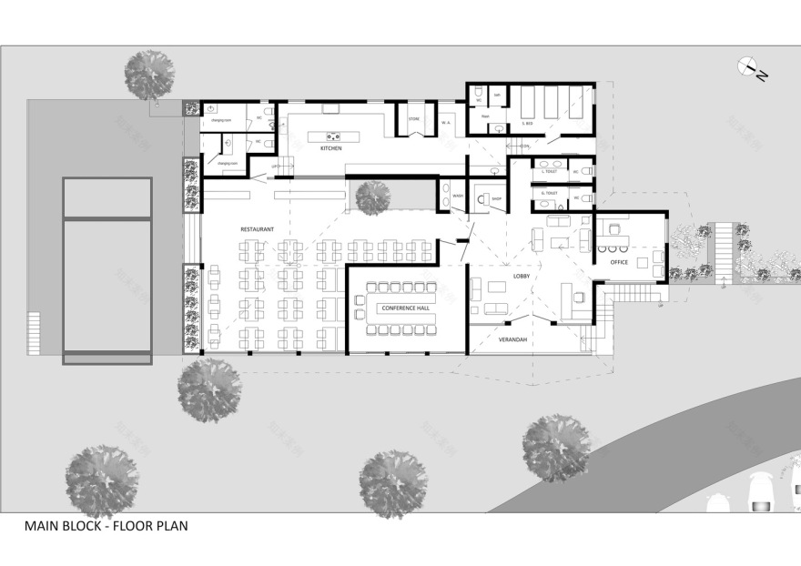
The design layout comprises 19 villas, the main block with a central lobby, conference room, restaurant, shop, swimming pool, spa, and other amenities including ample parking – all tightly configured in the limited 1.51 acres of steep hilly site. The buildings respond to the contoured topography of the site (being lowest at the entrance near the road and highest towards the rear) by being placed on stilts to veritably float over the site. It is remarkable that all this was achieved without cutting down even a single native tree from the site. The landscaping plan adopted weaved in luxuriant foliage and shrubbery and generously interspersed in green pockets, giving the resort a deep connection with the outdoors validating its context as a green resort.
Main Block - The main block is the first port of call for guests, and has a very inviting and generously appointed lobby, as well as a Business Centre, a restaurant, kitchen, retail outlet, and a swimming pool with a kid's pool. The spacious lobby is both inviting and intriguing with its high roof and internally accentuated with various purposefully located cut-outs framing enchanting views of rolling hills outside. The building sits above the parking yard with its own nature strip in front, facing the rising sun. The building is done in exposed brick and has large overhangs for deep shade and protection from driving rain. The building’s gabled roofs facilitate natural ventilation as well as introduce visual interest to the form of the sloping roof.
The Business Centre adjacent to the lobby offers facilities for remote work and is also designed and positioned to have great views of the distant hills. The functional circulation routes easily allow delivery of room services from the kitchen/restaurant to all units. The Restaurant has a seating capacity of 50 guests, with all seats having views to external vistas reflected over the pool beside, and an internal courtyard alive with foliage. The side facing the nearby hills is not glazed (but has a manually deployable feature in the event of driving rain). This arrangement purposefully blurs the division between the inside and outside and allows easy ingress of breeze along with the promises of the outdoors, as well as access to the nearby positioned barbeque and campfire pit. The fully equipped and spacious kitchen is set at a higher level in response to the slope of the land. The undercroft of the main block is functionally utilized for back-of-house facilities for the resort such as laundry, linen storage, and driver amenities. The main block has also living quarters for staff at the rear, as well as a convertible office room for the proprietors.
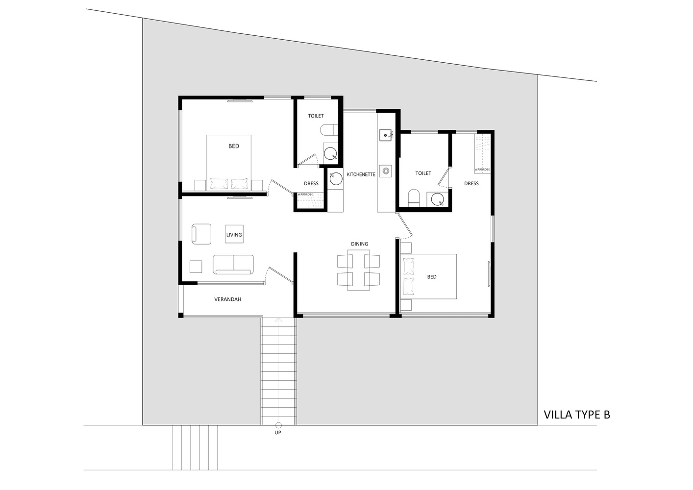
Villas - All 19 villas come with an external shaded verandah, dining room, living room kitchen, and an enclosed garden. Five of the villas have 2 bedrooms each while, the remaining 14 are single-bedroom villas. The bedrooms are ensuite, with a walk-in dress room. All rooms are designed to catch views of the misty hills in the distance, or of the onsite pool nearby. As noted earlier, raised walkways to float over the steep contours below and provide safe and easy access to all the villas. The provision of utilities across the site and to all the residential units was a technical challenge given the undulating lie of the land, but this was innovatively addressed through meticulous detailing and the use of bespoke engineering solutions.
Swimming Pool And Spa - The Swimming Pool is an overflow infinity pool and with vantage views to the surrounding hills, and has ample deck space all around as well as an adjacent wading pool for kids. The Spa is located at the front of the plot, with attendant ayurvedic treatment rooms deliberately positioned on stilts above the yard below, assuring privacy without also obstructing the prized views of the vistas beyond.
▼项目更多图片
客服
消息
收藏
下载
最近
























