查看完整案例


收藏

下载

翻译
Architects:DAS Lab
Area :112 m²
Year :2020
Photographs :Fangfang Tian
City : Huzhou
Country : China
Compared with the ancient towns in the south of the Yangtze River, the ancient town of Xinshi, which is hidden in the city, is a little bit lonely, that’s why it also contains more peace and tranquility. As the reputation of other ancient towns is rising, Xinshi ancient town is staying low-key, introverted and calm. The goal of its pursuit is not just a bustling tourist attraction, but an ancient town to live in.
Witness the richness and purity of Time's sedimentAs time changes, people's demand for the outside world has risen from survival to the spiritual level of aesthetic feeling. Cultural and creative brands have already made various aesthetic choices for life and connected various possibilities.
As the first collection store of cultural and creative goods in Xinshi ancient town, DAS hopes to create an experience of the evolution of cultural and creative goods in the old house, which shows people the continuation of culture to life and a new direction of cultural and creative space.
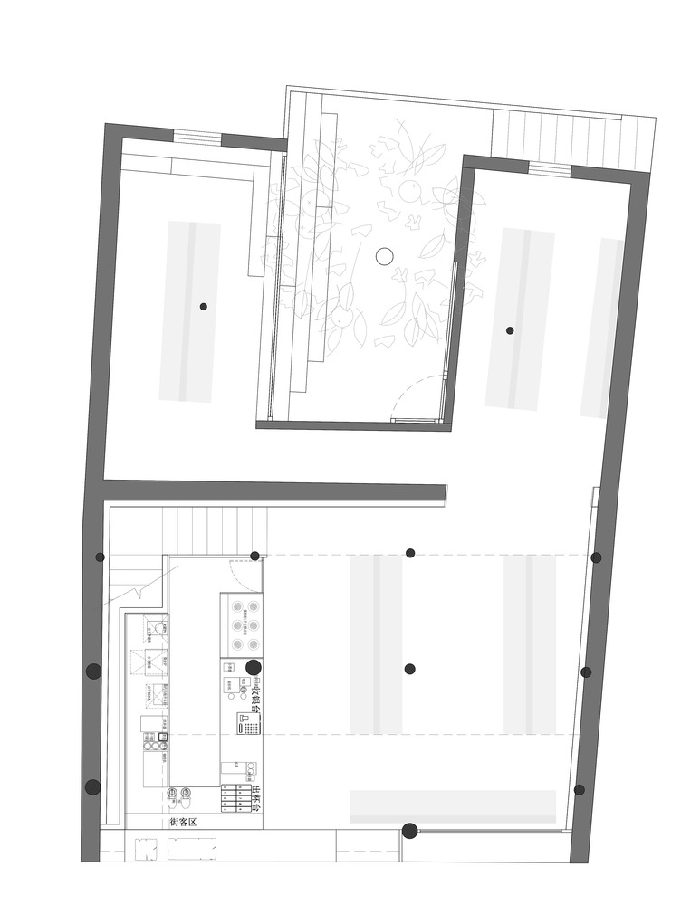
Remolding and rebirth of spaceThe project is adjacent to water, and it has a unique enclosure with various spatial structures. In the reconstruction, the window on the roof introduces the natural light, and the whole design continues the original structure. Through "the extension of space" and "the reorganization of new cells", the coffee shop reshapes the space .
On the basis of retaining the original building, the surrounding elements melt into the space, blurring the boundary, and becoming the rebirth of the natural method. When the sun passes through the courtyard, the city, the stone and the tree seems to wake up in the fragrance.
▼项目更多图片
客服
消息
收藏
下载
最近




























