查看完整案例


收藏

下载

翻译
Architects:Joly&Loiret
Area :2900 m²
Year :2017
Structural Engineer :EVP
Civil Engineer :Urbatec
Architect In Charge : Joly&Loiret
CLIENT : Ville de Villepreux
Mep Consultant, Ehq : L.Choulet
City : Villepreux
Country : France
The particular position of this site, situated between countryside and the extending fringes of the town, instigates an interesting visual dialogue between two opposing scenes. On one side, seen from the main road or the fields, the project must blend into a rural environment of soil and vegetation. On the other side, however, it must find its place as part of a housing estate composed of bright, detached houses surrounded by gardens, giving the neighbourhood a particularly landscaped appearance.
In this in-between space, the project is neither urban nor rural. It is both. Seen from the plain surrounding Versailles, we have designed a simple and compact volume in dark brown, earthy hues to echo the colours and textures of agricultural furrows and ensure its incorporation into the wider landscape. Seen from the residential neighbourhood, the simple, sculptural volumes, rendered in paler tones, enter into a dialogue with the neighbouring buildings.
The space around the project, limited but open, has been landscaped to recreate the idea of the residential garden, enhancing the built form. Or rather the group of forms, since we decided to fragment the programme in order to reduce its bulk. Enclosing the site, occasional walls form a succession of steps rising up in order to reduce the height of the project, bringing it into scale with the private houses and urban context.
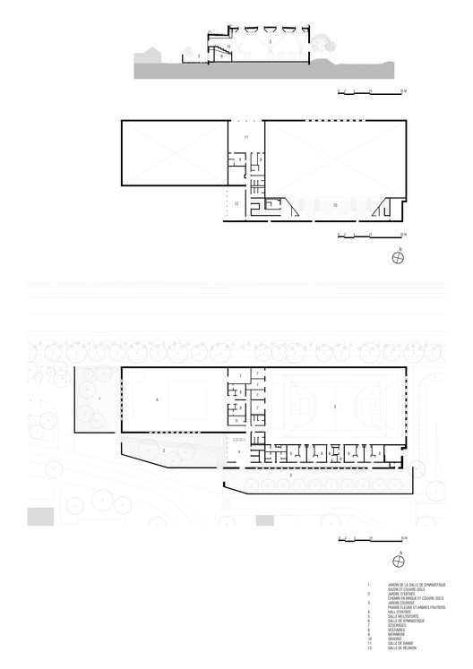
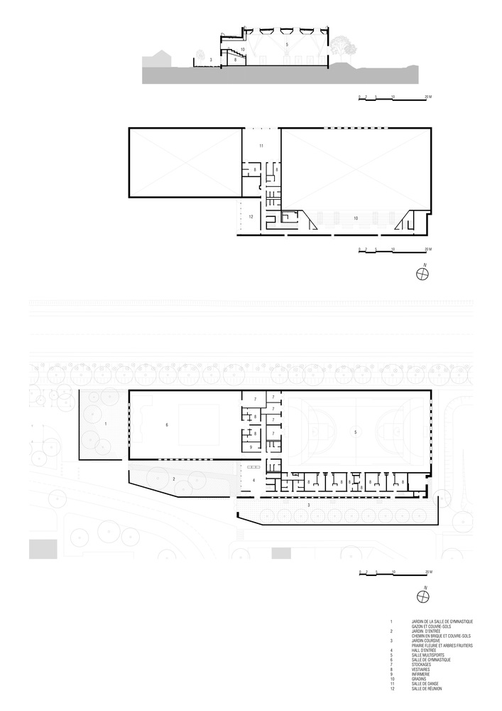
On the route from the city to this new sports centre, two little forecourts, at the scale of the surrounding residential developments, lead to the entrance. They lead first to a garden, designed as a vegetal anti-chamber to the entrance hall, which leads on from it. Placed at the centre of the complex, the entrance hall holds a strategic and central position at the intersection of the horizontal and vertical circulation. On the ground floor, it provides access to two large gyms via their changing rooms, and upstairs to a meeting room, dance studio and to tiered seating giving a birds-eye view of the sports hall.
From inside are views onto the surrounding garden, which forms enclosed spaces, with their play of light and variety of planted experiences based on local and seasonal vegetation. These provide a link to the exterior while avoiding any potentially disruptive direct connection between the gym and the surrounding houses. The large sports halls are simple, bright spaces. Diffuse, homogenous, natural light is ensured by means of roof lights adapted for sports, as well as openings onto the gardens and the plain of Versailles from the seating of the large hall.
The constructive system is based on a timber structure in glulam for the large roof spans. The walls are built in 42cm-thick hollow terracotta bricks, which provide satisfactory thermal insulation and mechanical resistance without the need for supplementary insulation. A non-hydraulic lime render is applied to the outer facades, combined with a plaster render inside (a breathable wall). The system is simple, economic, long-lasting and environmentally sustainable.
▼项目更多图片
客服
消息
收藏
下载
最近




















