查看完整案例


收藏

下载

翻译
Architects:Ruiz Larrea y Asociados
Area :15973 m²
Year :2020
Photographs :Lucía Gorostegui
Lead Architect :Antonio Gómez (RLA Partner, Director de Diseño, Passivehaus Tradeperson & Certifier)
Deign Team : César Ruiz-Larrea, Antonio Gómez, Gabriel Ruiz-Larrea, Miguel Díaz, Javier de Andrés, Margarita Álvarez
Clients : Solvia
Engineering : Lynka
Consultants : Maria Dolores Román y Monzón
Collaborators : Miguel Díaz (Breeam)
City : Madrid
Country : Spain
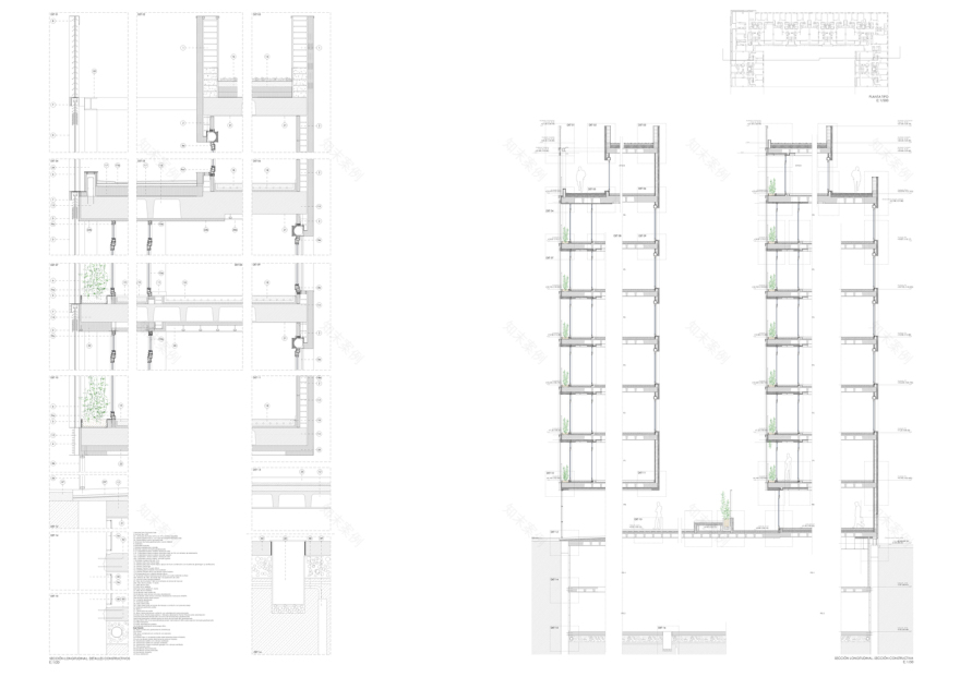
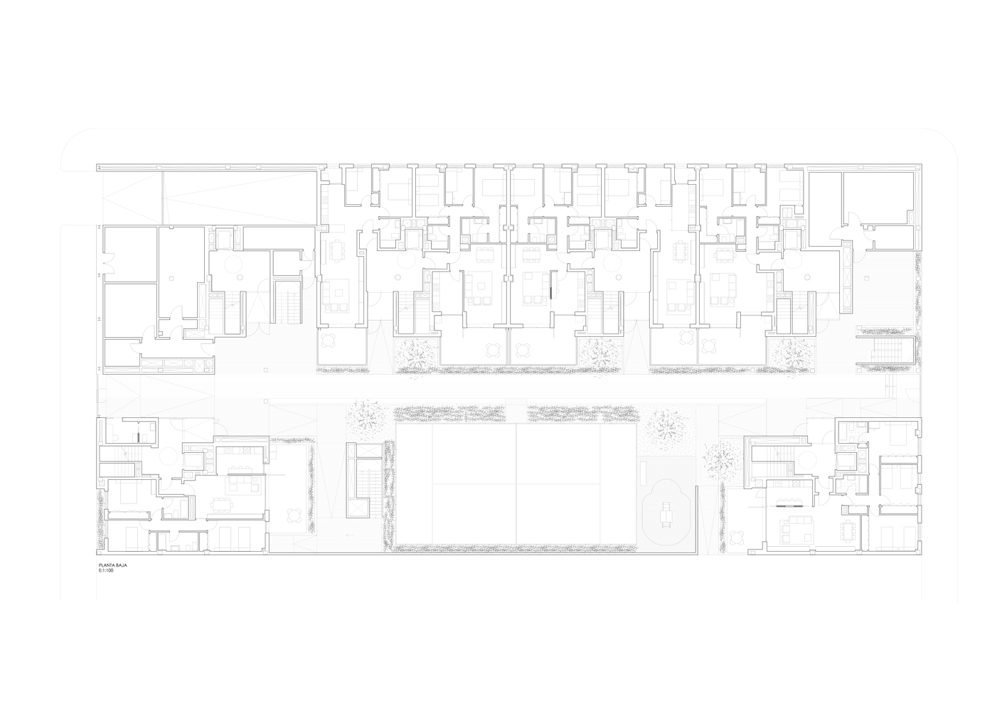
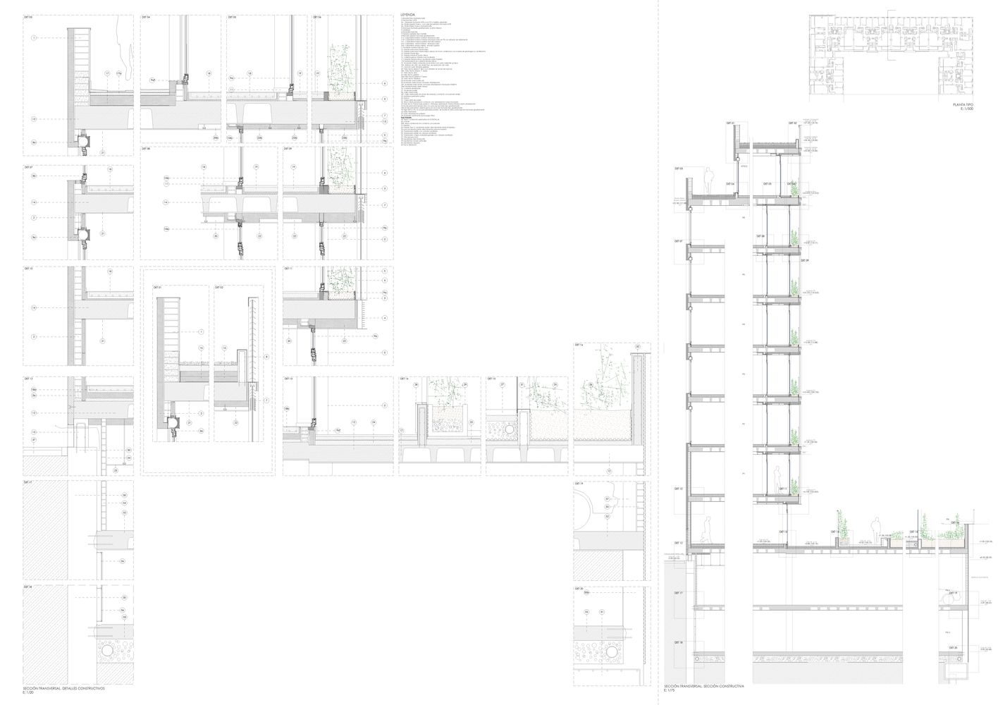
The project responds to the challenge "Madrid 0.0", launched by Solvia and the College of Architects of Madrid. 98 apartments designed for minimal energy demand and maximum comfort for users, understanding and the consequent evolution of a low-energy housing, in which the predominant idea is "My building is my home, and each housing a necessity. "
Before starting the project, we came the following question: Can you really get to build homes in Madrid with minimal need for active heating and cooling systems? The resounding answer was YES.
However, the sustainability of this project is not limited to energy consumption, but the user and their quality of life over time are totally immersed in the ideology of housing. Thus we get housing adapted to different users and adaptable over time, compatible uses with individual workspaces and shared with a maximum interior comfort assumed with almost zero energy consumption.
0.0 The Sin of Solvia projects along the lines of environmental ViveCoam and BREEAM certificates, obtaining in this last score of Very Good with V + 65.66% and of 22.08 in the ViveCoam rating.
▼项目更多图片
客服
消息
收藏
下载
最近
















































