查看完整案例


收藏

下载

翻译
Architects:moarqs
Area :470 m²
Year :2018
Photographs :Albano Garcia, Javier Agustin Rojas
Manufacturers : AutoDesk, Isover, ACINDAR, Hunter Douglas, Hydro, Loma Negra, VASAAutoDesk
Lead Architects :Ignacio Montaldo
Associate Architect : Ángel Tundis
Design Team : Jerónimo Bailat, Isabel Schmid
Engineering : Cotto-Chevez
Lighting : Veronica La Cruz
Soil Study : Eugenio Mendiguren
Sanitary Engineering : MMO. Eduardo Gamulin
Surveyor : Roberto Gieschen
City : AMV
Country : Argentina
It is a commercial and warehouse, located in the town of Caseros, Partido de Tres de Febrero, Province of Buenos Aires. It is built in a singular lot within the urban plot, which owes its shape to its location in one of the six corners formed at the intersection of Av. Alvear and Av. Bartolomé Miter with the streets Ayacucho, Puán and Castelli.
The volumetry is adjusted to the current regulations on land use that determines to leave 40% of the land free. In this way, the built volume is developed on Av. Alvear and frees a triangular courtyard on Puan Street.
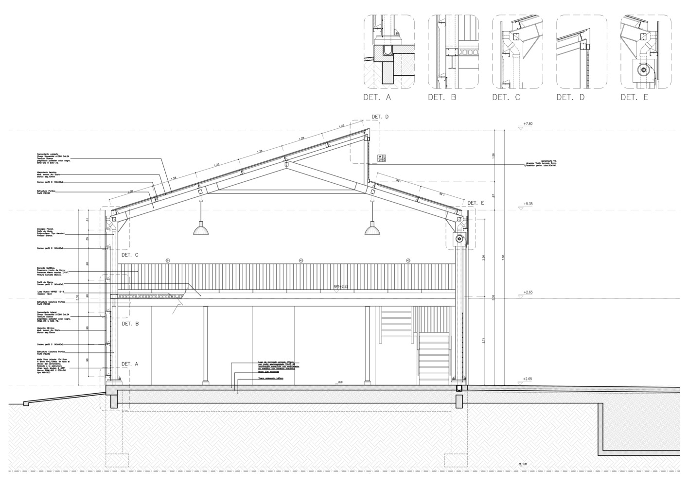
The ship was built with a unidirectional structure, with seven metal frames made of normal IPE laminated steel profiles with a pre-painted black-type Cal.24 type A1086 sinusoidal sheet from Ternium Siderar.
The walls are resolved, one by the existing dividing wall of 30cm thick masonry of common solid bricks and the other by the resolution of the corner through the turn of the structure with three porticos that rotate on the axis of the building and achieve a volumetric continuity of the building with the fence that delimits the land and the courtyard on Puan Street.
A linear skylight generated in the section of the building guarantees natural lighting and ventilation.
▼项目更多图片
客服
消息
收藏
下载
最近
































