查看完整案例


收藏

下载

翻译
Architects:Harry Gugger Studio
Area :13270 m²
Year :2019
Photographs :Florian Amoser, Daniela Burkart
Manufacturers : Eternit, Nemetschek, Zumtobel, BWB, Baltensweiler, WALO BertschingerEternit
Lead Architect :Caroline Schmidt
Project Management :TGS Bauökonomen
Engineering :EMCH + BERGER
Electrical Engineer :Jules Häfliger AG
EMP Engineer :RSP Bauphysik AG
Design Team : Harry Gugger, Franziska Cherdron, Thomas Domenger, Furio Montoli, Christian-Lars Germadnik, Salome Rätz, Ian Wiedmer
Clients : Viscosistadt AG
Tenants : Lucerne University of Applied Sciences & Arts
Project Managment : TGS Bauökonomen
Building Technology : Markus Stolz GmbH & Co KG
Sanitary Engineer : Arregger Partner AG
Facade Planner : Atelier P3
Façade Planner : Atelier P3
City : Emmenbrücke
Country : Switzerland
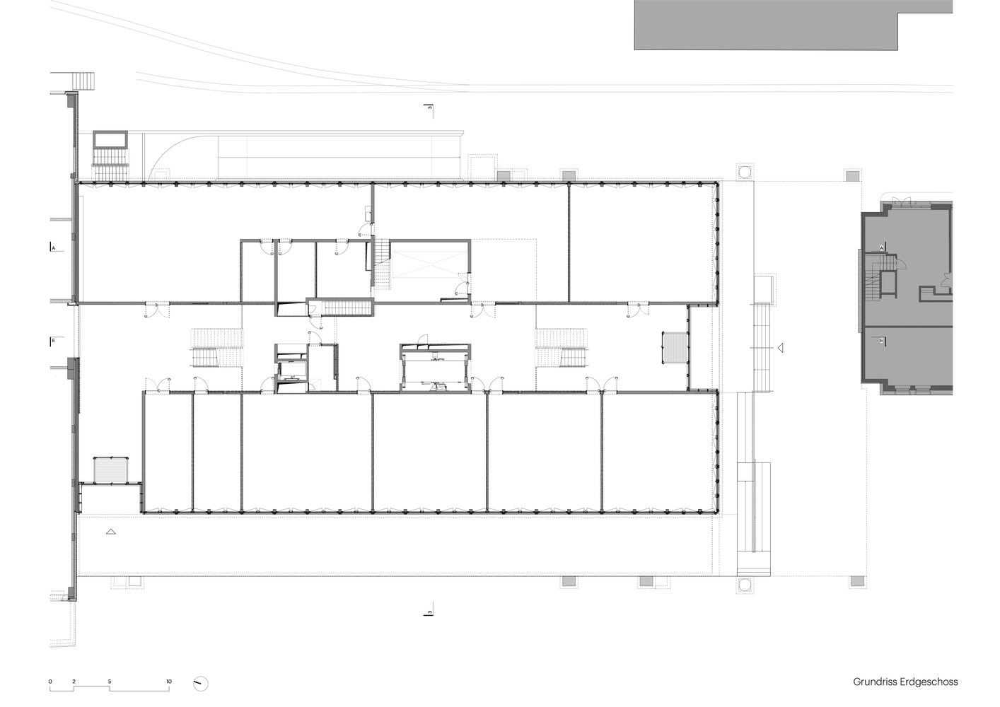
The new building for the Arts and Design Department of the University of Applied Sciences of Lucerne is built on the site of the former MonoSuisse factory the now called Viscosistadt in Emmenbrücke, located outside of Lucerne.
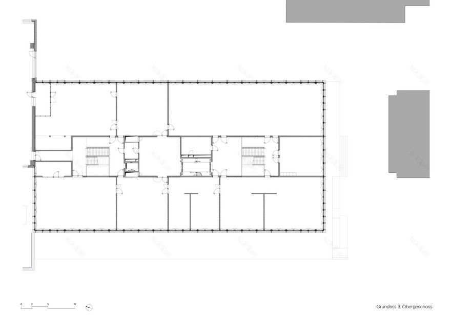
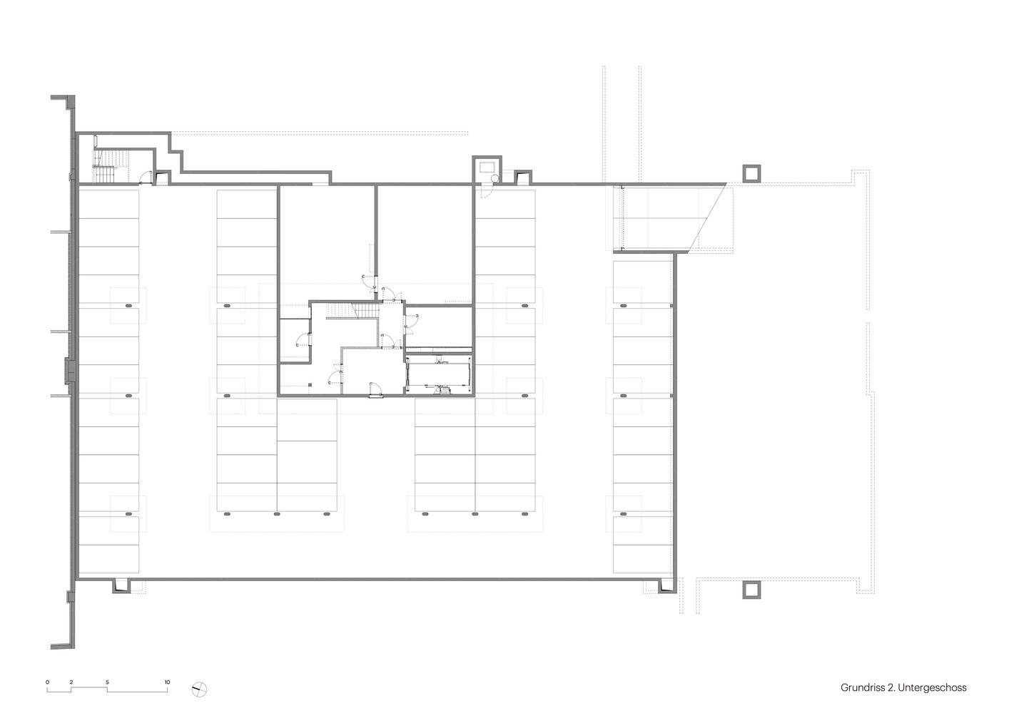
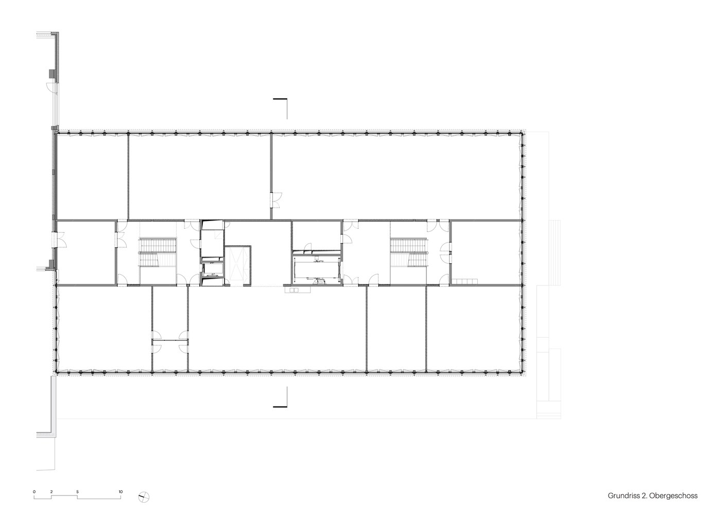
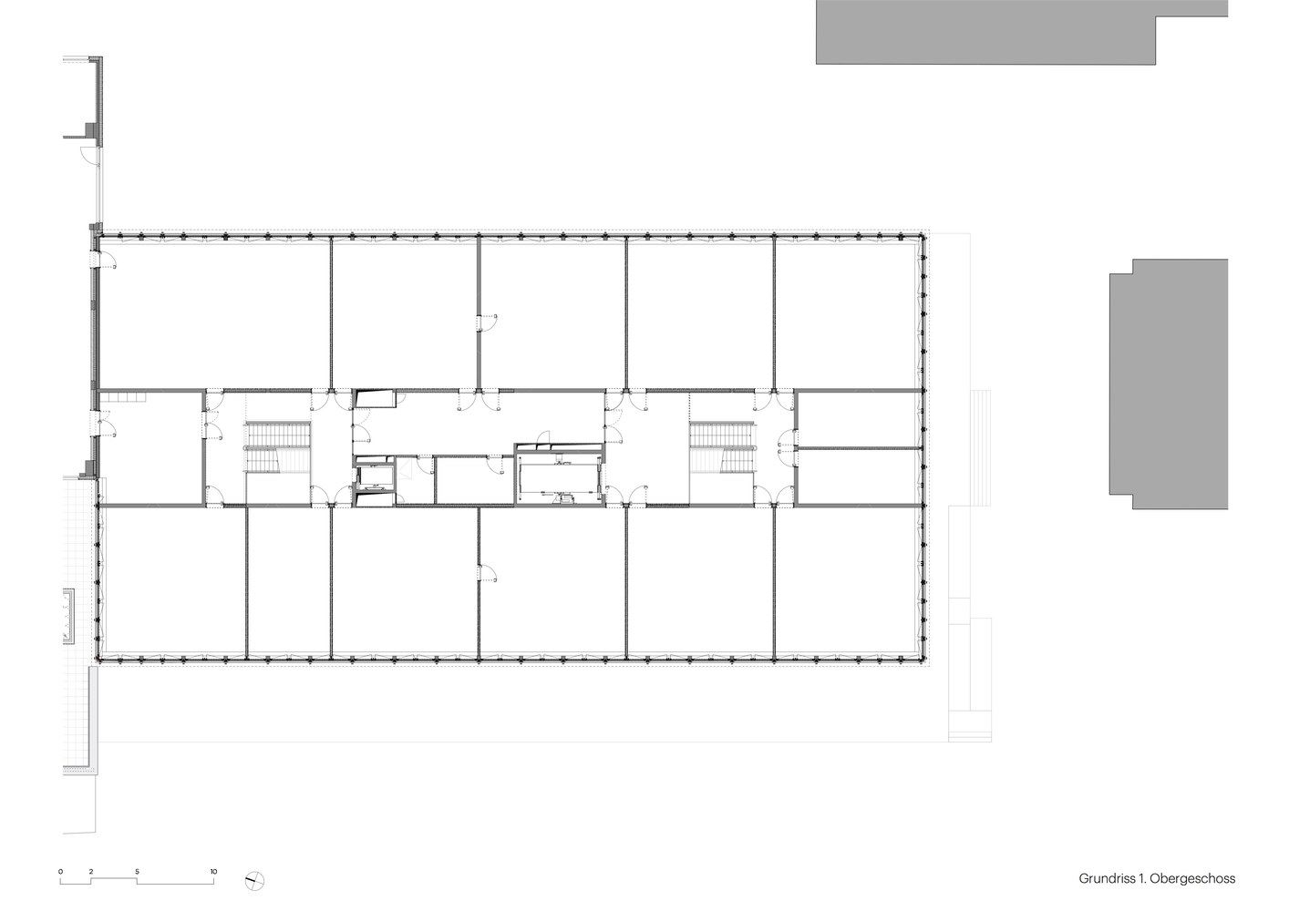
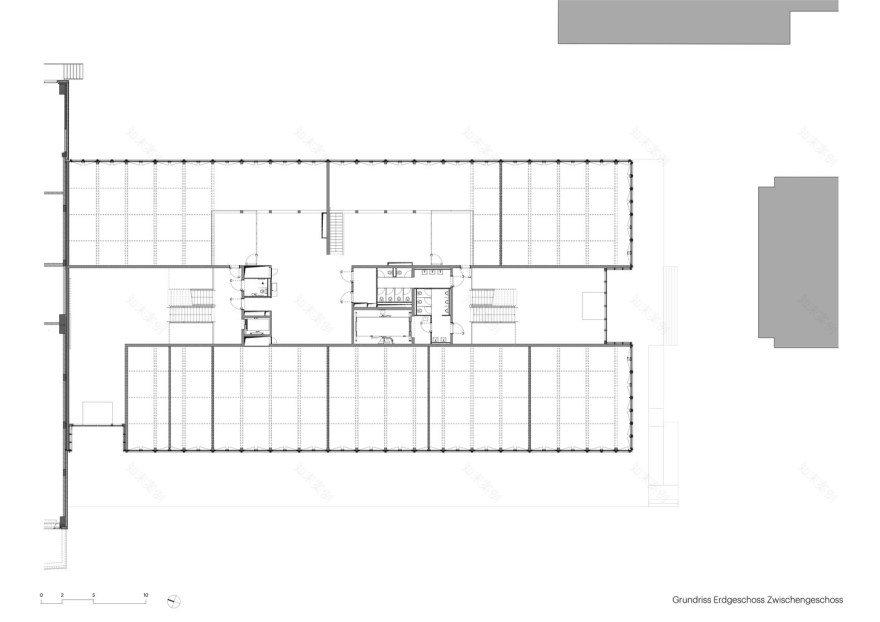
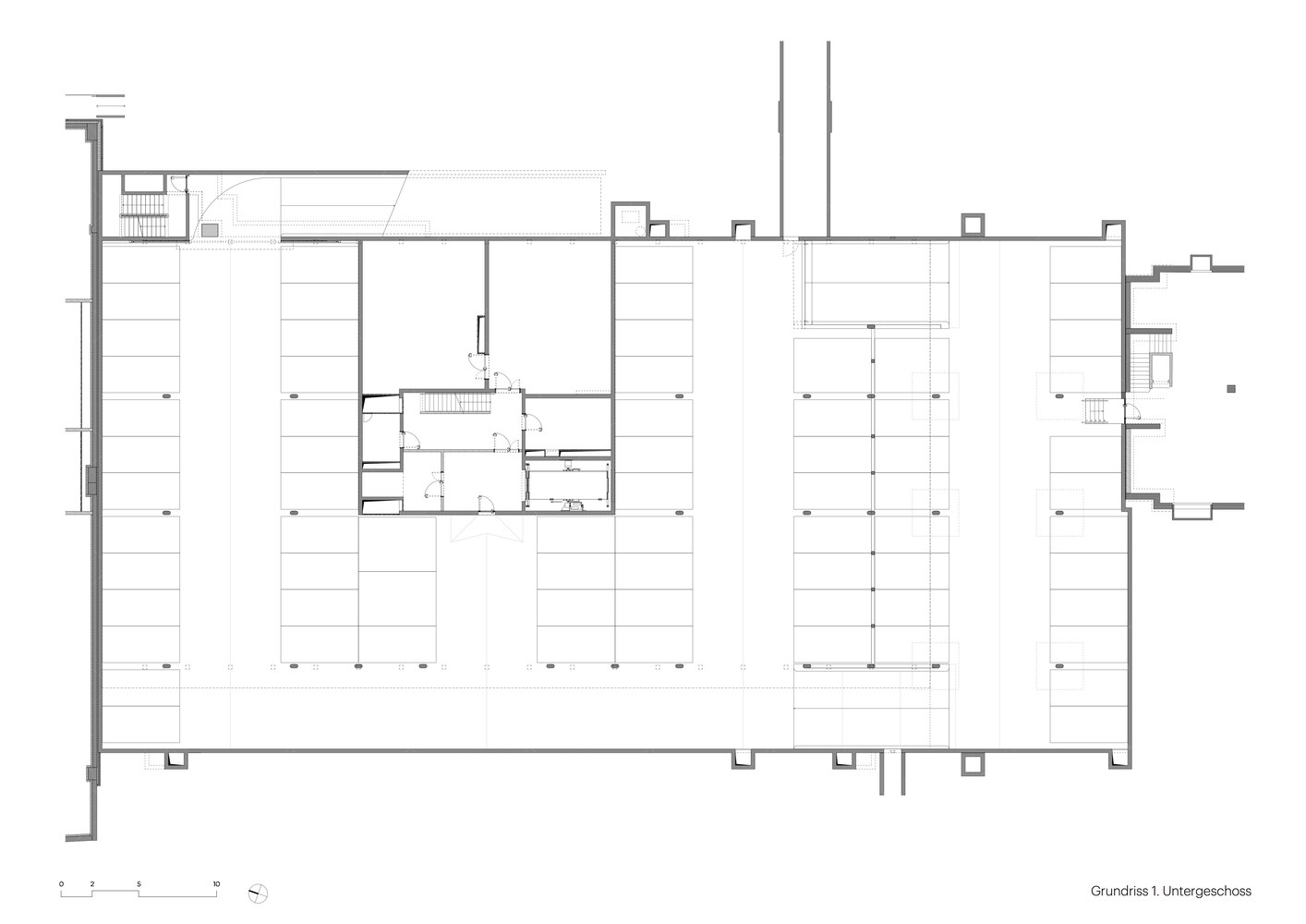
The building consists of various teaching facilities and multiple workshops ranging from fully equipped woodwork, steel work and printing ateliers to studios for design and manufacturing of jewellery as well as hi-tech facilities for computer aided manufacturing, common spaces and a publicly accessible room that houses one of the Switzerland’s largest collection of natural and synthetic pigments. The proposal for the Arts and Design Department Building for the University of Applied Sciences Lucerne, illustrates our approach to working in close collaboration with representatives of the University’s various chairs, in order to ensure that their individual spatial requirements are met and exceeded, toward successful, inspiring and innovative teaching environments.
Our proposed strategy is twofold. Besides the focus on each individual programmatic requirement for the building within it, attention is given to its wider contribution to its broader context. The facade of the building, derived by a modern interpretation of the existing industrial buildings, complements its integration to its unique, industrial setting, while certain ground level areas are made publicly accessible, exposing the function of the building to its surroundings.
▼项目更多图片
客服
消息
收藏
下载
最近


















































