查看完整案例


收藏

下载

翻译
Architects:Hiha Studio
Area :1399 ft²
Year :2020
Photographs :Pol Viladoms
Lead Architects :Bernat Ardèvol Ribalta, Jonatan Oliva Flaqué, Genís Plassa Domingo
Construction : Giropràctic Instalꞏlacions S.L.
City : Girona
Country : Spain
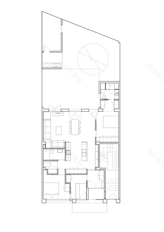
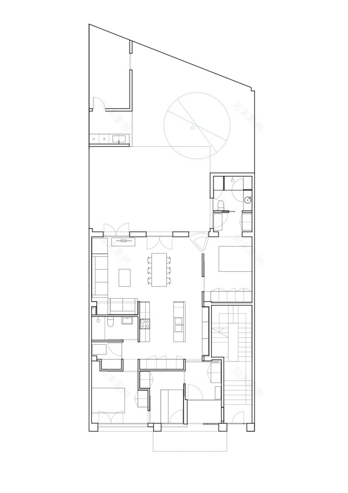
The project consists of the conversion of the ground floor of an old warehouse into an apartment. The existing warehouse was divided into 3 structural bays, parallel to the façade, and a large courtyard at the back.
The strategy for the project consisted of maintaining these 3 structural bays, which helped to organize the new proposal and to distribute the new program within apartment.
One of these structural bays is used for the living room, dining room and main bedroom, with these spaces connected to the outdoor garden in order to obtain maximum privacy and the best solar orientation. The kitchen is placed in the central bay. This position and its transparent design allows the kitchen to be a distribution element, avoiding corridors and generating different visuals and relationships between the rooms. The third bay is use to create rooms for sporadic uses, and provides access from the street. Elements in within this space are used as an acoustic and visual filter between the street and the most private part of the apartment.
A further strategy of the project is the preservation of the relationship of the 3 structural bays once the space is fragmented with the new distribution. To maintain the relationship of the 3 volumes, whilst enhancing them, a curved form is used. Using the arch form generates rhythms and spatial continuities, allowing the space to take advantage of the maximum height of the ground floor and obtain different sensations within the apartment.
Unfinished ceramic elements are used as the main material in the upper parts of the walls. These pieces generate stripes of colour that provide warmth and plasticity to the apartment, whilst also creating spatial continuity and emphasizing the geometry of the arches.
The utilization of the arch form and the ceramic material elements generates fluctuating spaces, and at the same time gives continuity and spatial solidity. The ceramic strip provides the domestic height that is required, while simultaneously enhancing the height obtained by the arch. On the facades anti-intrusion galvanized steel elements and perforated sheet metal shutters for solar protection have been introduced.
Hiha Studio with the collaboration of the young artist Kushim Mattson, has created a new series of transparent furniture. These pieces of domestic furniture adapt to the straight and curved shapes of the apartment.
▼项目更多图片
客服
消息
收藏
下载
最近


























