查看完整案例


收藏

下载

翻译
Architects:Ana Coelho Arquitectura
Year :2019
Photographs :João Morgado
Construction : Telhabel Construções – S.A.
City : Serzedelo
Country : Portugal
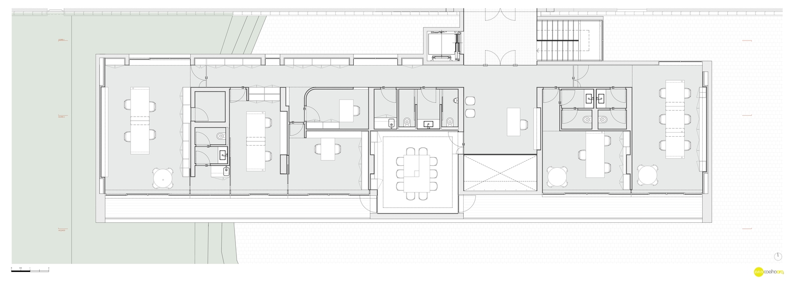
The project for the FACOL industrial building started with the rehabilitation of an abandoned and obsolete pavilion, providing it with the proper work conditions for a textile dyeing facility. The second phase of the project consisted in the addition of a new volume to the already existent factory, creating a new building where all the administrative functions would take place.
The new office building was implanted on the south face of the existent volume, detached from it and separated by a vertical garden, which isolates any disturbance noise prevenient from the factory facilities.
The new volume is partially elevated from the ground level. One of its’ extremities is supported by a natural garden slope, whereas the other one is suspended, thus allowing to create an outdoors parking lot under the building.
The interior distribution of space is organized after a central entry hall, which also connects to the factory volume (horizontally) and the ground level (vertically). The reception area connects with a corridor with openings to the vertical garden, which gives access to all the administrative offices.
All the offices are oriented South, profiting from controlled sunlight exposure and views to the surrounding landscape.
The interior design was conceived as a natural extension of the architecture, maximizing the outcome with a minimum of resources.
▼项目更多图片
客服
消息
收藏
下载
最近



































