查看完整案例


收藏

下载

翻译
Architects:UA Lab (Urban Architectural Collaborative)
Area :4100 ft²
Year :2021
Photographs :Inclined Studio
Manufacturers : AutoDesk, SketchUp, Asian Paints, Daikin, Havells, Legrand, Range liteAutoDesk
Lead Architects :Krishnakant Parmar, Vipuja Parmar
Design Team : Krishnakant Parmar, Vipuja Parmar, Parth Mistry, Bageshri Thakar
Structural Consultant : Hrushikesh Patel
Civil Work : Prashant Prajapati
City : Ahmedabad
Country : India
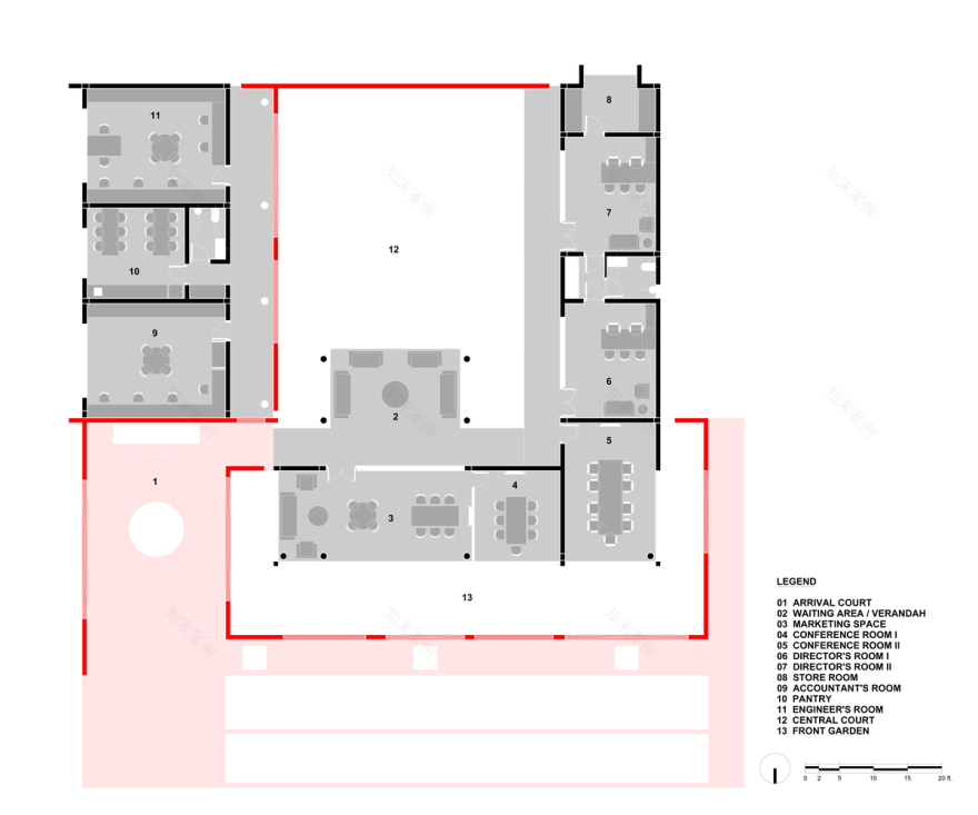
The project is a corporate office for a developer in Ahmedabad. It is surrounded by dense urban fabric. The site is located in an upcoming residential area of Ahmedabad. It has ongoing construction sites all around. Presently, the site area experiences lots of unwanted noise with the movement of heavy vehicles all around the day.
Conceptually, the project intended to create layers of spaces enveloping the main built- mass. These layers are envisioned as buffers to create climatically comfortable inner spaces. We have designed a grand entrance with free-standing walls. A double-height volume open to the sky is created at the entrance. The double-height volume contrasts with single-height internal spaces. This creates an interesting spatial disparity within the space at the entrance level.
For the external facades, the layers are modified to envelopes of brick walls open to the sky. The brick wall acts as a light edge externally. Internally, the built mass opens up into a centric courtyard. The courtyard is also enveloped or wrapped by a brick wall around. There are openings designed on the South and West sides to escape the harsh sunlight. The openings are designed as upright and inverted arches. The composition of these arches creates an interesting edge condition. Interesting patterns of light and shadow are created on the internal solid wall and on the floor of the corridor, all around the day. The play of light and shadow creates a dynamic effect in the internal spaces.
All the working spaces are then, articulated around an Internal courtyard. Each space is buffered by a slight edge on the outer side and internally, opens into a courtyard. The centric internal courtyard plays a dual role to connect the internal spaces and realize it simultaneously, connecting with the green and the sky. The courtyard and the light edge help to create a sufficient buffer for the peaceful working of the internal spaces.
The courtyard is surrounded by corridors and deep verandah spaces. The verandah space is widely used during different times of the day for informal meetings. The seating space designed in the verandah provides a respite from the heat. It also gives an interesting view of the corridor with upright and inverted arches followed by the play of light and shadow, throughout the day.
▼项目更多图片
客服
消息
收藏
下载
最近









































