查看完整案例


收藏

下载

翻译
Architects:maumstudio
Area :1004 m²
Year :2021
Photographs :Ju Yeon Lee
Projet Direction : Dalwoo Lee
Logo Design : Dalwoo Lee
Sign Design : Yoonji Lee
Space Design : Eunhye Oh, Youngbak Jeong
Motion : Hyunjin Lee
Video : N Designers
Photo : Juyeon Lee
Client : NAMYANGJU-SI
City : Namyangju-si
Country : South Korea
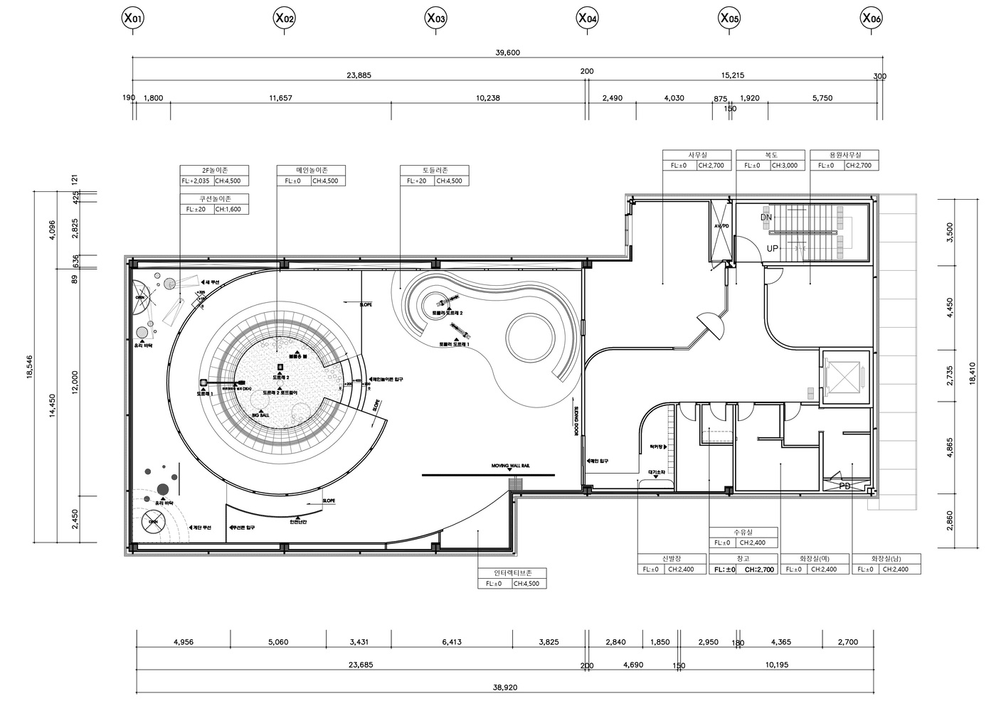
It was designed over two years and has a total floor area of 1004㎡. At the request of Namyangju City, it was built with a dedicated area of 89㎡ and three stories above the ground to commemorate Jeong Yak-yong, who built Suwon Hwaseong Fortress with heavy equipment.
The name and logo were expressed in small, round shapes of children with heavy machines and rolling sounds. The six roads between the walls that became the motif of Suwon Hwaseong Fortress are characterized by different heights and heights.
This is because they believe that children can make their own paths as much as they want, and in the end, great spirit of challenge. Inside the wall, there is a circular slide that induces natural flow. Tired of the slides that had to be ridden according to the rules, I wanted to give a positive side to active play.
The motif of Geojunggi wanted to show children who were faithful to the natural process of play rather than educational stories through Dorre. To this end, the overall spatial color is also made of white and wood. It's not space, it's for children to be the subject.
The goal of the play space "Dorr" was to create children's own play through actions that had no fixed answer and no rules for children's play. Finally, I cite Cas Holman, a play environment designer: "If you can play with children, you can live with them."
▼项目更多图片
客服
消息
收藏
下载
最近



























