查看完整案例


收藏

下载

翻译
Architects:maumstudio
Area :48 m²
Year :2022
Photographs :Ju Yeon Lee
Direction : Dalwoo Lee
Space Lead : Eunhye Oh
Space Design : Youngbak Jeong, Hanwool Kim, KyoungJin Kim
Graphic And Product Design : Yoonji Lee, Jeawon Chung, Hyunjin Lee
Client : Korea Pilot
City : Seongdong-gu
Country : South Korea
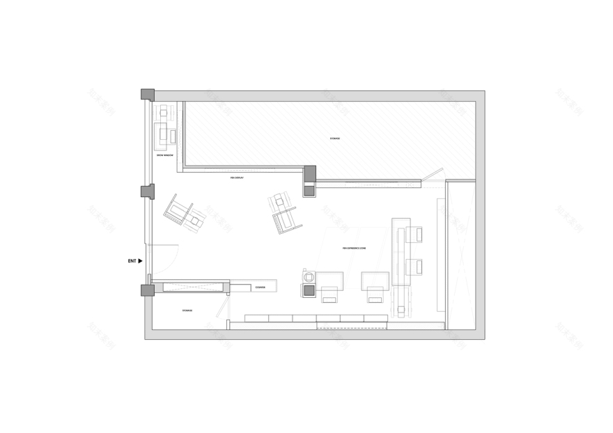
PILOT is a Japanese brand of writing equipment known for its precise and accurate processing techniques and excellent performance. The first concept store of PILOT in Korea, which made a technical partnership with PILOT in Japan in 1962 and introduced delicate and diverse writing instruments, focused on emotionally experiencing the superior technicality of the pen.
The title 'Precious Horse Collection Office' offers a variety of Penn experiences in a light cobalt-colored office space. The experienced paper provided shows various writing instruments and characteristics of the pilot, and it is designed so that you can check your preferred writing texture and color throughout the time you fill out the questions.
In addition, the crowded document locker on one side of the office suggests the importance of keeping fond memories by keeping easy-to-flow moments as important documents, such as "horses that help you when you are tired of competition" and "horses at dawn with worries."
It contains the moment of experiencing PILOT's philosophy of supporting the greatness that begins with a single stroke, the precious words of people who will color the dull daily life in a variety of colors, and the value of writing.
▼项目更多图片
客服
消息
收藏
下载
最近




















