查看完整案例


收藏

下载

翻译
Located in the Siming District of Xiamen, a bucolic coastal city in South China, Xiamen Paragon’s Lianhua Lane Complex is a mixed-use development comprising Grade-A office, luxury hotel and retail programs. The 148-metres tower houses the 245-key Waldorf Astoria Xiamen Hotel as well as Grade-A office spaces at lower levels. The hotel’s banquet facilities are placed on the 3rd floor of the 4-storey podium which extended westward to form a linear retail mall with diverse shopping and F&B offerings. The project, close to the airport, enjoying the beautiful scenery of northern Lotus Park, surrounded by low-rise residential and small-scale commercial buildings, is designed to reinforce Paragon International’s well-established hotel portfolio, as well as create a new lifestyle destination for the local residents.
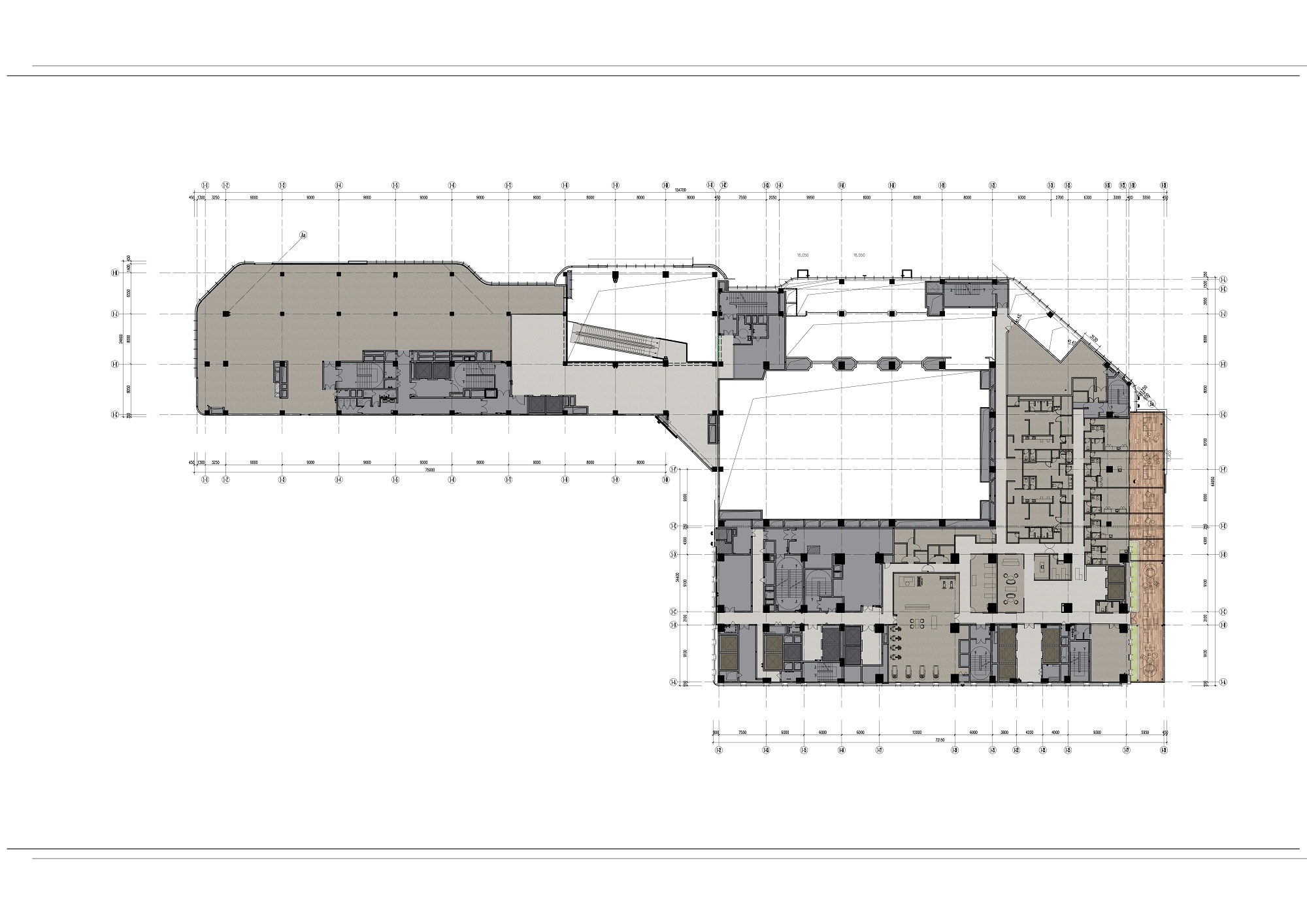
The tower is strategically located to maximize view towards the northern lotus park and the gorgeous city skyline on its south. The retail and hotel entrances are set along the north frontage to welcome visitors from the main road and nearby metro stations. A block of office parks are placed at the southern end of site with an introverted design facing the inner courtyard.
The façade of the building is chiefly composed of glass and limestone. The upright tower is designed with a delicate transparent glass curtain-wall that contrasts nicely with the solid podium while complimenting the serene pond in the adjacent Lotus Garden. The podium is stone-clad and elongated, supporting the tower above with a sturdy, rock-like outline. It is punctuated by glass boxes and open terraces for added dimension into the otherwise flat volume, creating a buoyant atmosphere. The interaction between the two materials echoes the elegance of Xiamen as well as produces a modern and vivid image.
The double height atrium in the hotel lobby is designed to align with the hotel’s prestigious reputation and create a sense of grandeur for incoming guests. Applied through the hotel’s exterior and interior design, bronze metal decoration is adopted to produce a personalized luxury environment.
The design language is applied throughout the hotel’s interiors, including the podium rooftop where views from the outdoor pool deck and Xiamen’s tropical landscape are filtered in through the boutique bar’s folding wood doors. This idea enhanced the interaction of experience between indoor and outdoor space.
The circulation network is planned thoughtfully with routes delineated for different users. Banquet goers and hotel VIPs can access the venue and lobby respectively via the shorter route directly from the main road, while the path for retail pedestrians is windier by comparison which offers more opportunity to wander along the array of storefronts. The shopfronts on the ground level of the podium is connected intimately with the outdoor pedestrian street through extensive use of folding doors.
“We hope to establish an integrated mixed-use development that would rejuvenate and contribute to the prosperity of Xiamen; Paragon Lianhua Lane Complex, accompanied by Waldorf Astoria Xiamen Hotel, is slated to be an iconic hub that achieve work-live balance, providing bracing experiences to the public.”— Aedas Executive Director Dimi Lee.
客服
消息
收藏
下载
最近


















