查看完整案例


收藏

下载

翻译
Architects:Shaun Lockyer Architects
Area :700 m²
Year :2020
Photographs :Christopher Frederick Jones
Lead Architect :Shaun Lockyer
Builder :JW Constructions
Landscape Architeture :Conlon Group
Engineering :Westera Partners
Interior Décor :Hong Henwood Design
City : Noosa Heads
Country : Australia
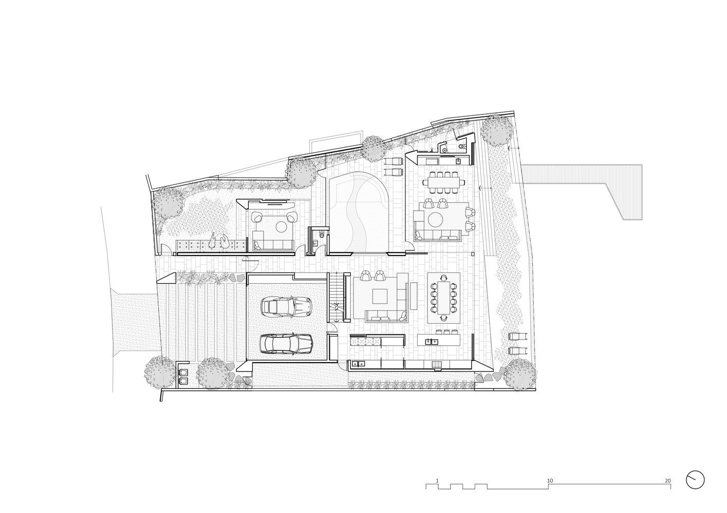
Project Description - Witta is a heavily landscaped, waterfront, courtyard house that mediates between the opportunities (and constraints) of a site that has its aspect and view on opposing edges. The “C” plan is the intuitive manifestation of this challenge, with the southern edge of the “C”, a transparent, light-filled pavilion offering a transparent and connected to the water’s edge. The concrete skeleton provides a robust base to the charred timber cap that expresses itself as a “shoji” screen to the north, while the southern edge is defined by a landscaped “fringe” that adorns the house. This is a house of two personalities, with an introverted street facade and an extroverted relationship to the Noosa River. The materials, form, skylights, and planning all center and celebrate the sense of being riverfront and how best to engage with it in a casual, enduring way.
Public and Cultural Benefits - The street facade offers a civic act of animation with the “shoji”-like screen and in so doing, looks to subvert the domestic paradigm (of cottage pains and picket fences). The house is intended to be a framework for the landscape that defines the home and its architecture, especially along the riverfront where the public engagement is with a hanging garden rather than a “house”. The house has become a stop on the Noosa River tour where the cascading planting stems conversation, telling the story of occupation in the subtropics which challenges convention in a way that is romantically embraced.
Relationship of Built Form to Context - This house is intended to offer an engaging alternative to the “mansion” vernacular that all too often defines Noosa’s water’s edge. As an antidote to stylized Tuscan and other contextually debatable forms of building, this house while bold, wishes to play small, to recede and integrate into the landscape. Adorned with minimal detail and a restrained, natural palette of materials, the house wishes to age into its surroundings, not dominate them. The predominance of landscaped elements is prioritized over the built form in a way that diminishes the sense of “house” in favor of the “natural” which is the extraordinary site.
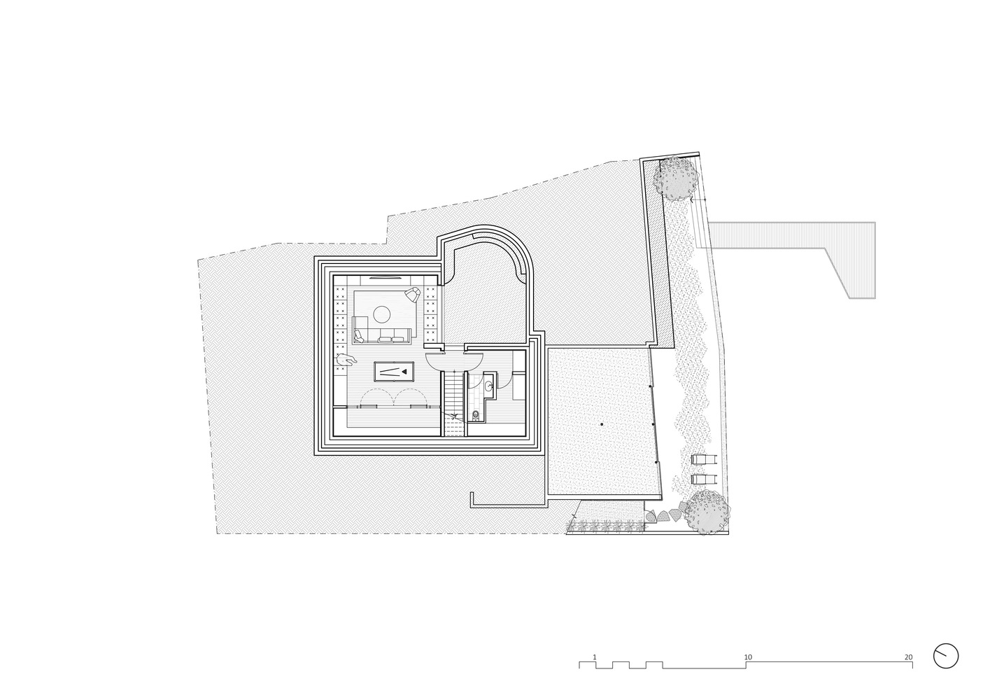
Program Resolution - The house is zoned into living areas on the ground floor, invisibly connecting to the river and opening up to the north via the internal courtyard that also houses the pool. The pool is the source of light for the basement which enjoys entertainment and wine appreciation. The first floor contains the private domain of the bedrooms with kids to the north (behind the timber screen) and parents and guests on the river. The spaces are all planned around an internal void that floods the house with natural light offering deliberate engagement with the elements outside. This is a family holiday home and is designed to embrace the casual, robust way that the house will be used, and where new memories will be made.
Integration of Allied Disciplines - This house is a collaboration of the highest order. The engineering demands on the house align with the material choice, the execution of which is all credit to the builder and his team. The landscape is seminal to the design and was considered as part of the house from the outset. The skylights that define key spaces and offer engagement with the elements are all bespoke and designed to suit specific conditions. The cabinetry (and all timber work) required alignment and coordination between the builder, suppliers, cabinet, and window manufacturers. This is a house that is very unforgiving, with little tolerance and no place to hide any mistakes.
Cost/Value Outcome - This is a complex house on a complex site built out of expensive materials, carefully crafted. In the context of this agenda, the house represents value to the owners and was built on the budget which is important to note.
Sustainability - This house is a long-term proposition meaning that its high in embodied energy but performs very well climatically and will prove to endure for a long time. Natural materials are used throughout, LED lighting is used, solar electricity is provided, and all doors are double-glazed. The materials externally require little to no ongoing maintenance.
Response to Client and User Needs - The house performs very well for a large family who also has many friends staying over, and the materials used stand up to the wear and tear of young kids at the beach. The public has embraced the building with open arms and loves the way the landscape is eclipsing the home. The feedback we have received through social media suggests this is a building that has captured the imagination of the public and has become a drawing card to visit. The home offers a romantic insight into subtropical living and the clients are ecstatic with the outcome.
▼项目更多图片
客服
消息
收藏
下载
最近


































