查看完整案例


收藏

下载
Australia Queensland mainland villa
设计方:Shaun Lockyer Architects
位置:澳大利亚 昆士兰
分类:别墅建筑
内容:实景照片
图片来源:Scott Burrows Photography
图片:35张
设计这栋内地别墅的灵感来源于场址周围的令人震惊的山脊线,也来自周围自然环境中高高耸立的桉树的垂直生长状态。别墅是一栋结实的硬木建筑,别墅使用的柔软的色调反射着山脉的颜色。长的乡村走廊和用构架支撑的内部空间一起创造了一个令人感到放松的氛围。通过对澳大利亚殖民地田园诗般的遗产进行重新诠释,这栋优雅、迷人、实利的乡村别墅同时是脆弱但又不朽的,别墅的建筑设计真实的捕捉到了这个地方的精神。
译者:蝈蝈
The Hinterland House takes its inspiration from the stunning ridge lines surrounding the site as well as the vertical rhythm of the towering eucalypts occurring naturally in the landscape.The solid hardwood construction, soft hues reflecting the colours of the mountains, the long country verandah, and the trussed internal spaces create a relaxed atmosphere allowing for effortless occupation.By embracing the legacy of the Australian colonial idyll in a contemporary reinterpretation, the elegant yet charmingly utilitarian farmhouse is simultaneously fragile and monumental, truly capturing the spirit of the place.
澳大利亚昆士兰内地别墅外部实景图
澳大利亚昆士兰内地别墅外部局部实景图
澳大利亚昆士兰内地别墅外部侧面实景图
澳大利亚昆士兰内地别墅外部夜景实景图
澳大利亚昆士兰内地别墅局部实景图
澳大利亚昆士兰内地别墅内部实景图
澳大利亚昆士兰内地别墅内部厨房实景图
澳大利亚昆士兰内地别墅内部浴室实景图
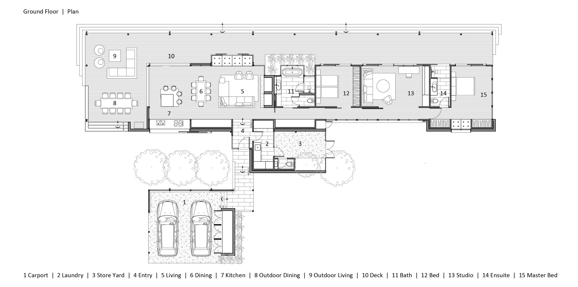
澳大利亚昆士兰内地别墅平面图
客服
消息
收藏
下载
最近





































